Two-Story 4-Bedroom Modern Farmhouse with Drive-Under Garage (Floor Plan)

Specifications:
- 3,231 Sq Ft
- 3 – 4 Beds
- 3.5 – 4.5 Baths
- 2 Stories
- 2 – 4 Cars
Let’s face it—house hunting is kind of like dating.
You’re looking for “the one.”
And while we can’t swipe right on floor plans (yet), this 2-story modern farmhouse might just be love at first sight.
With 3,231 square feet of smart design, tons of character, and enough space to actually live your life (without bumping into everyone), this home plan proves that you really can have it all—without going mansion-level massive.
Stay Tuned: Detailed Plan Video Awaits at the End of This Content!



A Main-Level Master Suite You’ll Never Want to Leave
One of the absolute highlights of this plan is the main-level master suite.
It’s the kind of space that makes you immediately envision Sunday mornings with coffee in hand and no responsibilities in sight.
We’re talking a full 5-fixture bathroom, a walk-in closet big enough to warrant its own zip code, and—get this—a private screened porch.

Yes, a porch.
Just for you.
TIP: As you plan your dream home, don’t overlook essentials like comparing mortgage rates, securing home insurance, and checking your credit score. Smart tools like interior design software can help you visualize the layout, while upgrades like solar panels, smart home systems, and energy-efficient appliances can boost both comfort and property value.
This is the kind of suite that screams “treat yourself,” but it’s also incredibly practical.
Whether you’re planning to buy this home for today or think of it as a long-term investment, having a main-level suite adds major value—both in daily comfort and future resale.
It’s a smart move whether you’re just getting started or thinking ahead to when stairs are less of a thrill and more of a challenge.

Worried about mortgage rates?
Getting a home loan pre-approval early on can help you move fast on a house plan like this before someone else scoops it up.
Vaulted Ceilings, Exposed Beams, and So Much Wow
Step into the lodge room and you’ll immediately understand the appeal.
Vaulted ceilings soar above, rustic-chic exposed beams stretch across, and natural light pours in from everywhere.

This space isn’t just a room—it’s a vibe.
Open, airy, and connected directly to a covered rear porch with an outdoor fireplace, it’s built for both entertaining and relaxing.
Whether you’re throwing a birthday bash or binge-watching your favorite guilty pleasure, this room sets the scene beautifully.
And with smart home technology, you can set the lighting, turn on the music, and adjust the thermostat without moving from your cozy blanket burrito on the couch.

It’s form, function, and a little futuristic flair.
Formal Dining and a Home Office That Actually Work
Let’s talk about rooms that don’t just sit there collecting dust.
This farmhouse includes a formal dining room that’s perfect for actual dining (imagine that!), but could easily moonlight as a stylish workspace, reading room, or even a hobby haven.
The beauty of the layout is that you make it what you want.

Right nearby is the home office.
Not a converted closet, not a tiny nook—an actual office.
Whether you’re running your empire or managing the school pickup schedule, having a designated office space is a game-changer.
And if your goal is to boost the home’s value or even use it to qualify for a home equity loan later, this kind of flex space is your secret weapon.

Pro tip: planning your layout using interior design software is a great way to bring your vision to life before you even break ground.
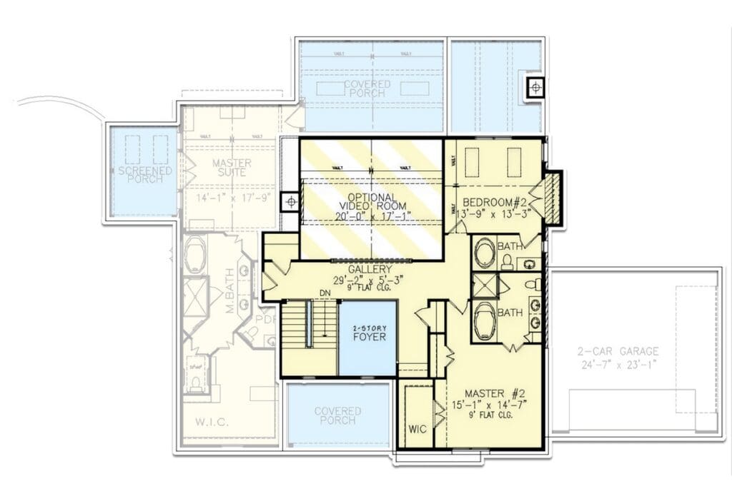
The Upstairs Retreat
The second story is where things get interesting.
Up here, you’ve got a second master suite (yes, a second one), a third bedroom, and a media room that can be closed off for privacy—or opened up to overlook the lodge room below.
It’s perfect for teens, guests, or in-laws who need their own space.

The media room could be anything you need it to be—a fourth bedroom, a playroom, a home gym, or even a yoga space where you just lie down and breathe dramatically for an hour.
If you’re thinking long-term and considering updates, this is the kind of space that plays nicely with home remodeling contractors and gives your property value a serious nudge in the right direction.
Lower Level Living
Now for the hidden gem—the lower level.

Down here, you’ll find a fourth bedroom, a second laundry room (because apparently laundry never ends), and a rec or bunk room with its own fireplace and outdoor access.
It’s basically a self-contained living suite, perfect for guests, teenagers, or turning into an epic game zone.
The tandem-style drive-under garage holds two to four vehicles, giving you plenty of room for cars, tools, bikes, and that kayak you bought during your brief “outdoorsy” phase.
And because it’s tucked below the main house, it doesn’t dominate the curb appeal.

If you’re budgeting smartly, this level is where a building cost estimator can really help you see where your investment is going—and how much value you’re getting out of every square foot.
Outdoor Spaces That Make You Want to Live Outside
Outdoor living is the new black, and this plan serves it up in style.
From the main-level covered porch with a fireplace to the master suite’s private screened retreat, this house embraces the great outdoors—without forcing you to battle the elements.

Whether you’re grilling up dinner, enjoying s’mores with the kids, or just sitting in silence because your day was a lot, these outdoor spaces offer built-in relaxation.
And when you pair them with the best home security system and smart lighting, they’re not just cozy—they’re safe and stylish too.
Want to boost your home insurance perks?
Features like enclosed porches, smart locks, and security cameras might help you score a better deal.

Designed for Life, Not Just for Looks
This plan isn’t just about being pretty on the outside.
With 3 to 4 bedrooms, 3.5 to 4.5 bathrooms, multiple living areas, and both public and private spaces, it’s built for real life.
Whether your days are filled with work meetings, toddler chaos, or retirement relaxation, the layout flexes to fit your lifestyle.

And it’s not just about now—it’s about future-proofing.
As you build equity, explore refinance mortgage options, or even think about leveraging the home with home improvement loans, this plan continues to work in your favor.
Just remember, it’s not all about square footage.
It’s how you use it—and this plan makes every inch count.
So, what do we have here?

A gorgeous, functional, 2-story modern farmhouse under 3,300 square feet with charm, character, and smart design from the ground up.
Whether you’re building for your family, your future, or a bit of both, this home plan delivers everything you need to live beautifully—and comfortably.
Thinking of buying?
Start by checking your credit score, talking to a real estate agent, and setting your budget.

From there, it’s about choosing the right plan—and this one ticks all the boxes.
You don’t need a mansion to live large.
You just need the right design, a solid plan, and maybe a few s’mores by the outdoor fireplace to remind you you’ve arrived.
Now, who’s ready to make this dream home a reality?
Designing your dream home? Make sure your financial and tech plans are just as solid as your layout. Review current mortgage rates, talk to a real estate agent, and stay on top of your credit score.
Don’t forget essentials like home insurance, warranty coverage, and future refinance options.
Boost your property value with additions like solar panels, smart home features, and energy-efficient appliances.
And when it’s time to visualize it all, let interior design software be your guide.








