Spacious 4-Bedroom 2-Story Modern Farmhouse With Wraparound Porches and Side-Entry Garage (Floor Plan)

Specifications:
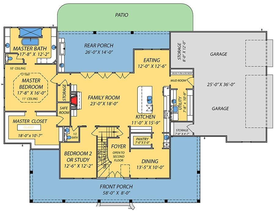
- 3,410 Sq. Ft.
- 4-5 Beds
- 3.5 Baths
- 2 Stories
- 3 Cars
This house plan isn’t just a place to hang your hat. It’s a lifestyle.
A modern farmhouse gem that checks off just about every box you didn’t even know you had.
And yes, I may or may not have fallen in love with the wrap-around porch before I even made it to the front door.
Whether you’re looking to buy your forever home or considering a clever investment, this one has all the bells, whistles, and grilling stations you could dream of.



Open Layout equal Open Heart
Let’s start with the heart of the home: the open layout.
There’s just something about walking into a home where the living, kitchen, and dining areas flow together like your favorite playlist. No more yelling down the hallway to ask what’s for dinner—just turn around.

The kitchen island sits proudly in the center, complete with a sink that lets you face forward and not the wall (because really, who wants to stare at tile while rinsing veggies?).
And let me tell you, when you’re hosting the next big game day, holiday dinner, or your in-laws (surprise!), you’ll be thankful for all that space.

It’s also the perfect excuse to test out some smart home technology—install voice-activated lighting and impress everyone when you dim the lights just by whispering “movie night.”
Fireplaces, Pantries, and Porches—Oh My!
The fireplace in the family room? Absolute perfection. It adds that warm glow in winter and gives you an ideal place to hang stockings, frame family photos, or just cozy up with a glass of wine and your favorite home improvement loans brochure .
TIP: As you plan your dream home, don’t overlook essentials like comparing mortgage rates, securing home insurance, and checking your credit score. Smart tools like interior design software can help you visualize the layout, while upgrades like solar panels, smart home systems, and energy-efficient appliances can boost both comfort and property value.

But seriously, if you’re anything like me and groceries tend to multiply in your car on the way home, you’ll love the walk-in pantry.
Even better? There’s a butler’s pantry. That’s right—two pantries.

I don’t have a butler, but it still makes me feel fancy. It also makes my interior design software very happy as I plan out storage bins and coffee stations.
Speaking of fancy, the walls of glass that lead to the outdoor porch are a literal breath of fresh air.

They flood the space with natural light and let you keep an eye on the kids, dogs, or suspicious squirrels in the backyard.
And yes, there’s a full-on barbecue porch out there just begging for summer cookouts.

A space like this practically demands the best home security system too, because we’ve got to protect the ribs and brisket, right?

Bedroom Goals and Masterpiece Suites
Every bedroom in this home gets its own walk-in closet. That’s not just good design—it’s a strategic move to maintain peace in the household.

No more sibling showdowns over shelf space. And for the master suite? Oh honey, it’s next level.

First, there’s the tray ceiling—an architectural detail that screams sophistication while keeping the vibe relaxed. It’s like the house is winking at you saying, “You’ve made it.”

There’s also private access to the back porch, which means coffee at sunrise or stargazing at night, in pajamas.

This is the kind of setup that makes a refinance mortgage actually feel like a reward instead of paperwork-induced misery.

And the walk-in closet? It’s not just walk-in—it’s walk-around. As in, you could host a small book club in there if you wanted to.

It even has an attached safe room, which gives peace of mind in case of emergencies—and gives your credit score one less thing to worry about.

Bonus Space and Big Dreams
You know how life changes and sometimes you need more room?

Maybe for a home office, an art studio, a home gym—or hey, a home theater for all those “why go out when you can stream?” nights.

That’s where the optional bonus space comes in. You don’t have to finish it right away, but knowing it’s there is like having a home equity loan built into your floor plan.

And while we’re dreaming, imagine how much fun you’ll have decorating the dormer windows upstairs.

Each bedroom up there has one, and they just scream charm. Add a window seat, throw pillow, and boom—you’ve got yourself a reading nook straight out of a magazine.

The side-load garage is another highlight, making this plan a perfect fit for a corner lot.

It’s also got extra storage space, which you’ll definitely need for holiday decorations, bikes, gardening gear, and all the treasures you’ll pick up after chatting with your real estate agent.

The Beauty of Outdoor Living
Let’s not gloss over the outdoor spaces. From the gracious wrap-around porch that’s practically begging for rocking chairs, to the big covered rear porch with a dedicated grilling station, this plan is designed to help you embrace the great outdoors. It’s Southern charm meets suburban sensibility.

That outdoor space also adds big-time value—literally. When it comes to property value, features like outdoor kitchens, fire pits, and well-designed patios offer fantastic return on investment.

And if you’re using a building cost estimator to plan out your dream home, this one checks out on both the aesthetics and the financial front.

Plus, a home like this justifies investing in a home warranty from day one.

With so many beautiful components working together—metal roof included—you’ll want that extra layer of peace of mind.

Home Sweet Smart Home
This isn’t just a house. It’s a smart home waiting to happen. Integrate everything from climate control to lighting and security cameras, and suddenly you’ve got a house that knows you.

And if you’re anything like me, that means your home turns the thermostat down before you even realize you’re sweating from folding laundry.

Before diving into this dream, it’s wise to look into home loan pre-approval.

That’ll give you a solid idea of your budget before you make the purchase, and it puts you in a strong position when you find “the one.”

This home isn’t just designed to be bought—it’s designed to be loved, lived in, and possibly passed down to future generations.

Built-In Value with Room to Grow
You know what really makes a house shine? When it’s flexible. This plan gives you that freedom to expand when you’re ready.

Want to finish the bonus space now or five years from now? Totally your call.

Need to turn a guest room into a work-from-home office because your Zoom meetings suddenly multiplied? Done. It’s like the floor plan read your mind.

And let’s talk resale. Homes with this kind of thoughtful design tend to maintain—and often increase—their property value.

All the smart layout choices, premium details, and that gorgeous wrap-around porch? Buyers love that stuff.

So even if you don’t plan to sell any time soon, you’ll sleep better at night knowing you’ve made a sound financial move. Your future self—and your real estate agent—will thank you.

Curb Appeal That Slaps
Pulling up to this house is an experience. The dynamic metal roof? Chef’s kiss.

Not only does it stand out in all the right ways, but it’s durable and energy-efficient—meaning you’ll spend less on utilities and more on that barbecue smoker you’ve been eyeing.

Metal roofs also help cut down home insurance premiums, because they’re fire-resistant and built to last.

And that side-load garage? It’s genius. If you’ve got a corner lot, it makes the entire house look like it belongs on a postcard.

It also keeps the front of the house clean and welcoming—ideal for greeting guests, delivery drivers, or, let’s be real, your DoorDash order.

If you’re doing your homework with a building cost estimator, you’ll likely find this layout hits a sweet spot. It’s big, but not massive.

Luxurious, but not outrageous. And packed with features that justify every dollar. Think of it as a home that knows how to flex without flaunting.
When you take a step back and look at everything—open floor plan, luxury master suite, smart design choices, and those dreamy porches—you realize this isn’t just another modern farmhouse.
It’s the one. Whether you’re a first-time buyer or a seasoned home investor, this plan offers the perfect blend of comfort, practicality, and long-term value.
So go ahead—make the move. Buy the dream. And maybe, just maybe, invite me over for some barbecue on that gorgeous grilling porch.
I’ll bring the lemonade.
Designing your dream home? Make sure your financial and tech plans are just as solid as your layout. Review current mortgage rates, talk to a real estate agent, and stay on top of your credit score.
Don’t forget essentials like home insurance, warranty coverage, and future refinance options.
Boost your property value with additions like solar panels, smart home features, and energy-efficient appliances.
And when it’s time to visualize it all, let interior design software be your guide.








