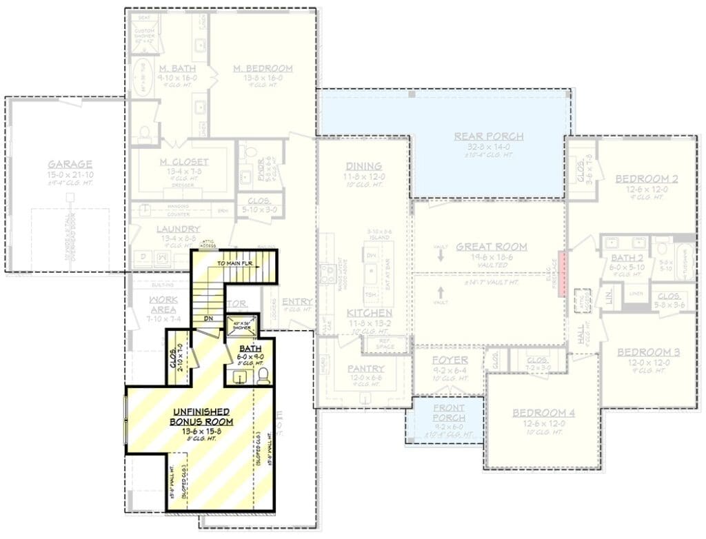
Single-Story 5-Bedroom Modern Farmhouse Ranch with Bonus Room (Floor Plan)

Specifications:
- 2,557 Sq Ft
- 4 – 5 Beds
- 2.5 – 3.5 Baths
- 1 Stories
- 3 Cars
When I first explored this modern farmhouse ranch floor plan, I immediately noticed how everything felt purposeful.
At 2,557 square feet, it’s roomy without feeling overwhelming, and every space seems to have been planned with real-life living in mind.
From the welcoming front porch to the bonus room above the garage, this layout combines style, practicality, and flexibility—exactly what I want in a home.







Front Porch and Welcoming Entry
The front porch sets the stage for the floor plan.
It’s inviting, perfect for morning coffee or greeting friends, and leads directly into the foyer.
The entry doesn’t waste any space and opens immediately into the vaulted great room, giving a sense of openness as soon as you walk in.
I love how this layout maximizes both curb appeal and functional interior space.
Thoughtful design like this contributes to property value and makes the home feel larger than its square footage suggests.
And for anyone considering a purchase, it’s a feature that makes the investment feel smarter from day one.
Vaulted Great Room with Open Flow
The vaulted great room is the heart of the floor plan.
TIP: As you plan your dream home, don’t overlook essentials like comparing mortgage rates, securing home insurance, and checking your credit score. Smart tools like interior design software can help you visualize the layout, while upgrades like solar panels, smart home systems, and energy-efficient appliances can boost both comfort and property value.
Positioned centrally, it connects directly to the rear porch, the kitchen, and the dining area, creating a natural flow that makes moving through the home intuitive.
This open design is not only visually appealing—it’s highly functional.
Furniture placement is flexible, and the space accommodates entertaining or casual daily life with ease.
Adding smart home technology here, like automated lighting or temperature control, can enhance comfort without disrupting the flow of the floor plan.
Kitchen with Island and Walk-In Pantry
The kitchen layout is one of my favorite aspects of this floor plan.
The large island serves as a prep area, dining space, or homework station, keeping the open connection to the dining area intact.
The walk-in pantry is perfectly positioned for storage, making grocery organization and meal prep efficient.
The location and design of the kitchen support both functionality and future flexibility.
Whether you’re considering upgrades through a home remodeling contractor or using interior design software to plan cabinet layouts, this space adapts easily to your needs.

Master Suite Location and Design
The master suite is placed strategically on the main floor, ensuring privacy and convenience.
Its proximity to the laundry room keeps daily chores manageable, while the spacious walk-in closet and en-suite bath create a personal retreat.
The floor plan here balances privacy with accessibility.
The suite’s location also helps maintain property value and allows room for future home improvement loans to enhance the space with luxury features, all without disrupting the rest of the home.
Split-Bedroom Layout
The split-bedroom layout is one of the smartest features of this ranch floor plan.
By separating the master suite from the other bedrooms, it ensures privacy and minimizes noise transfer.
Kids, guests, or roommates each get their own space, while the main living areas remain open and communal.
This separation enhances daily living and gives the floor plan a sense of balance.
It’s a layout that works for families, long-term residents, or anyone thinking about the investment value of a flexible, functional home.
Bonus Room Above the Garage
The bonus room above the garage is a highlight of this floor plan.
Its location provides a private area that can serve as a fifth bedroom, office, media room, or creative space.
It’s tucked away enough to feel separate from the main living areas while still being easy to access.
The room’s versatility adds value both practically and as an investment.
It could also be outfitted with smart home technology for entertainment or remote work, making the floor plan adaptable to changing needs over time.
Three-Car Garage Layout
This ranch features a unique garage design that includes a two-car side-entry section with a built-in workbench and dedicated workshop space, along with a separate one-car front-entry garage.
This layout allows for parking, storage, and hobbies without encroaching on the main house.
The garage’s design reflects thoughtful planning.

It supports functional workflow, maximizes usable square footage, and adds long-term value to the property.
For homeowners considering home improvement loans or projects with a remodeling contractor, this space offers plenty of potential.
Rear Porch and Outdoor Integration
The 355-square-foot rear porch is seamlessly connected to the great room, creating a smooth indoor-outdoor flow.
It’s ideal for relaxing, entertaining, or simply enjoying fresh air.
The floor plan positions it perfectly, so it feels like an extension of the living space rather than an add-on.
This connection enhances livability and increases property value, making outdoor living a practical part of everyday life.
Whether hosting gatherings or enjoying quiet moments, this porch integrates naturally with the home’s main floor plan.
Laundry Room Placement
The laundry room’s location near the master suite demonstrates the thoughtfulness of the floor plan.
It’s convenient for daily chores while keeping noise and clutter away from other bedrooms.
The positioning also allows for future upgrades, whether that’s adding storage solutions, enhancing appliances, or making the space more ergonomic.
From a functional standpoint, it’s a small detail with a big impact on daily life.
Efficient Flow Throughout
The flow of this floor plan is one of its strongest features.
The open-concept great room, kitchen, and dining area make everyday routines smooth, while the private areas like the master suite and split bedrooms maintain separation where needed.
Even the bonus room and three-car garage are integrated in ways that enhance the functionality of the entire layout.
Every space feels intentional, maximizing both comfort and long-term investment potential.

This modern farmhouse ranch floor plan demonstrates how a house can be both beautiful and functional.
The vaulted great room, open kitchen, master suite, split-bedroom design, bonus room, and three-car garage all work together to create a home that’s practical for everyday life while maintaining flexibility for the future.
Whether you’re thinking about a home loan pre-approval, monitoring mortgage rates, or planning future home improvement loans, this floor plan makes living, working, and entertaining feel effortless.
It’s a space that balances lifestyle and investment potential, ensuring that every square foot serves a purpose and supports a life well-lived.
Designing your dream home? Make sure your financial and tech plans are just as solid as your layout. Review current mortgage rates, talk to a real estate agent, and stay on top of your credit score.
Don’t forget essentials like home insurance, warranty coverage, and future refinance options.
Boost your property value with additions like solar panels, smart home features, and energy-efficient appliances.
And when it’s time to visualize it all, let interior design software be your guide.








