Single-Story 3-Bedroom Mountain House with Home Theater (Floor Plan)

Specifications:
- 2,822 Sq Ft
- 3 Beds
- 3.5 Baths
- 1 Stories
- 3 Cars
The first time I laid eyes on this mountain house plan, I was hooked.
With 5,147 sq. ft. of thoughtfully designed space, 3 bedrooms, 3.5 baths, and a 1,432 sq. ft. three-car garage, it balances style and functionality effortlessly.
From the moment you step in, the flow of the floor plan makes everything feel natural, inviting, and ready for both everyday living and entertaining.
Let’s take a room-by-room tour so you can see exactly why this layout works so well.


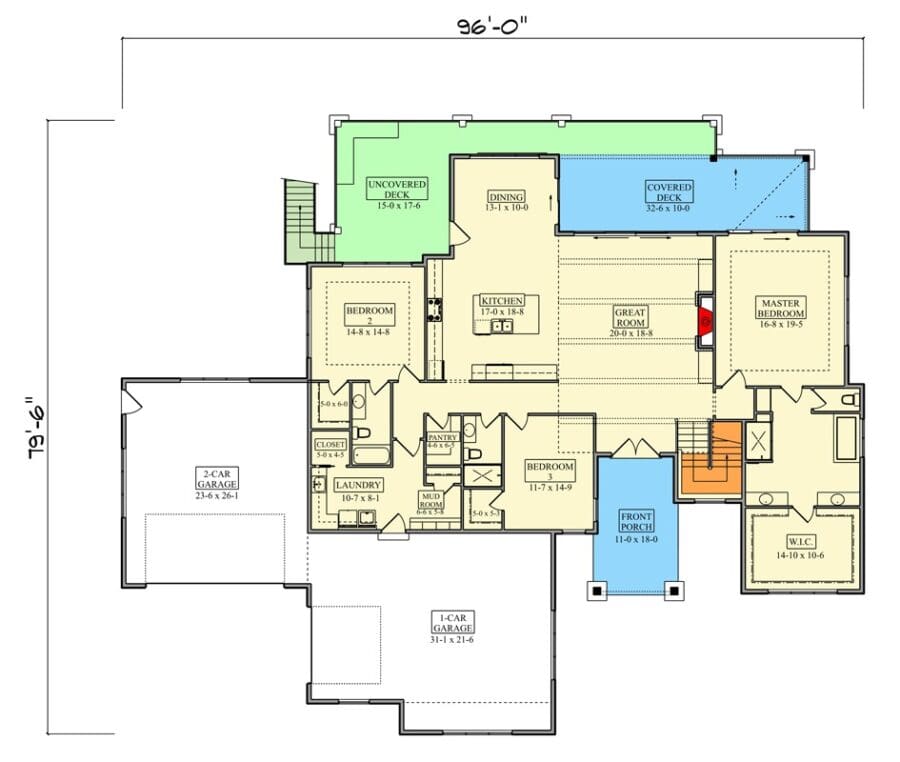
Grand Entry and Foyer Flow
Stepping through the front door, you’re greeted by a grand foyer that sets the tone for the home.
Its open connection to the great room ensures the first impression is as expansive as it is welcoming.
The foyer’s layout is practical too—close to the mudroom for managing shoes and jackets and easy access to the kitchen, making errands and daily life a breeze.
I can already imagine setting up a smart home technology panel here to control lighting and security as soon as you walk in.
And if you’re considering your mortgage rates or planning to refinance mortgage in the future, this entry sets a tone that shows your investment is in a home with thoughtful design and high property value.
Great Room and Covered Deck Connection
The great room is the heartbeat of this home.
TIP: As you plan your dream home, don’t overlook essentials like comparing mortgage rates, securing home insurance, and checking your credit score. Smart tools like interior design software can help you visualize the layout, while upgrades like solar panels, smart home systems, and energy-efficient appliances can boost both comfort and property value.
Its open layout flows seamlessly onto a covered deck, giving the illusion of even more space while connecting indoor and outdoor living.
Whether it’s a quiet morning coffee or an evening gathering, this floor plan ensures that every moment feels connected yet intimate.
Adding a best home security system here is straightforward, and it integrates beautifully with smart home technology.
From an investment perspective, the open layout increases property value and appeal, especially if you’re looking to purchase a mountain retreat.
Kitchen and Butler’s Pantry Placement
The main-floor kitchen is perfectly positioned in the floor plan for both convenience and style.
With ample counter space, modern cabinetry, and a butler’s pantry, it’s designed for efficiency and entertaining.
You can move easily between the kitchen, dining room, and great room without obstruction—a clear advantage of this layout.
For homeowners, this is a space where interior design software can come in handy if you’re planning renovations.
Using home improvement loans or a home equity loan can help upgrade appliances or add features while maintaining the integrity of the floor plan.
Formal Dining Room Design
The formal dining room sits adjacent to the kitchen, making it simple to serve meals while maintaining an elegant separation of spaces.
Its positioning within the floor plan balances accessibility with privacy, perfect for everything from casual breakfasts to formal dinners.
For buyers considering a purchase, this layout demonstrates a functional flow that enhances everyday living.
A real estate agent would likely point out that the dining room’s proximity to the kitchen is a major selling point, supporting both lifestyle and long-term investment value.
Master Suite Layout and Privacy
The master suite on the main level is designed for maximum comfort and privacy.
Its generous walk-in closet and private covered deck make it feel like a personal retreat.
The suite’s placement ensures peace while remaining conveniently connected to the rest of the home.
The floor plan anticipates modern needs, making it easy to integrate smart home technology or set up lighting and climate controls.
If you’re exploring home loan pre-approval or considering refinancing mortgage options, the master suite’s premium design is a feature that adds substantial value to the property.
Mudroom and Laundry Efficiency
The mudroom near the garage is perfectly positioned for the floor plan’s workflow.
It keeps outdoor gear and messy boots contained, while its adjacency to the laundry area ensures chores are efficient and convenient.
Upgrading this space through home improvement loans or a home remodeling contractor can enhance storage and usability without compromising the layout.
This thoughtful design makes daily life easier and demonstrates practical foresight built into the plan.

Lower-Level Game Room and Home Theater
The lower level is all about entertainment.
The game room is spacious and open, allowing multiple activities while remaining contained within the floor plan.
Adjacent to it, the home theater is designed for optimal viewing, acoustics, and comfort, ensuring that fun doesn’t interfere with the main floor’s peaceful spaces.
Investing in upgrades here, whether through a home remodeling contractor or smart home technology, is straightforward because the floor plan anticipates entertainment as a key feature.
It’s also a selling point for future buyers if this property is considered an investment.
Home Office and Covered Patio Placement
The home office on the lower level benefits from its floor plan positioning—private enough for focused work, yet close to the game room and home theater for balance.
Its placement maximizes efficiency without feeling isolated.
Next to the office, a covered patio creates additional outdoor living space.
This thoughtful integration ensures the home’s lower level functions both as a work zone and a leisure area.
Adding a best home security system or smart lighting here keeps it safe and modern, blending technology seamlessly into the layout.
Three-Car Garage Layout
The garage spans 1,432 sq. ft. and is positioned for easy access to the mudroom and main living areas.
Its size accommodates vehicles, hobbies, and storage, keeping the main living areas uncluttered.
This layout supports mountain-living needs and makes the home a solid investment.
Considering a home equity loan or exploring home improvement loans could allow upgrades to cabinetry or organizational systems, all while keeping the garage in harmony with the floor plan.
Flow and Connectivity of Spaces
A key strength of this floor plan is how every space flows into the next.
From the foyer to the great room, kitchen, dining, and outdoor areas, movement feels natural without compromising privacy.
Even the lower-level spaces maintain a balance of separation and accessibility, which is crucial for daily life and entertaining.
Prospective buyers will appreciate this flow, as it enhances functionality and demonstrates smart design.
Using a building cost estimator or consulting a real estate agent can clarify potential improvements and the impact on property value.
Outdoor Decks and Entertainment Features
The main-level covered deck and lower-level patio extend living spaces into the outdoors.
Their placement is ideal for entertaining, relaxation, or enjoying mountain views without interrupting indoor activities.
Smart home technology and security systems can be easily integrated here, enhancing both convenience and safety.
These outdoor spaces, combined with the interior layout, make the property a strong investment, blending lifestyle and functionality seamlessly.
This mountain house plan is designed for both lifestyle and investment.
Every space—from the grand foyer to the lower-level entertainment areas—is positioned for flow, comfort, and usability.
The main level balances private retreats, like the master suite, with shared areas like the great room and kitchen, while the lower level offers entertainment and work zones.
Financing options, including home loan pre-approval, home equity loans, or home improvement loans, make this floor plan accessible.
Smart home technology, interior design software, and home warranties further enhance functionality and investment potential.
Whether you’re considering a purchase, exploring refinancing mortgage options, or evaluating property for long-term value, this layout proves thoughtful design is key.
With 3 bedrooms, 3.5 baths, multiple outdoor living areas, and spaces for entertainment, work, and leisure, the floor plan is versatile, functional, and designed to maximize both lifestyle and property value.
Designing your dream home? Make sure your financial and tech plans are just as solid as your layout. Review current mortgage rates, talk to a real estate agent, and stay on top of your credit score.
Don’t forget essentials like home insurance, warranty coverage, and future refinance options.
Boost your property value with additions like solar panels, smart home features, and energy-efficient appliances.
And when it’s time to visualize it all, let interior design software be your guide.








