8-Bedroom 2-Story Modern Farmhouse With Expansive Porches (Floor Plan)

- 3,190 sq. ft.
- 8 Beds
- 6 Baths
- 2 Stories
Walking up to this modern farmhouse, you’re greeted by a wide front porch with stone-based columns and dormers perched above like little hats tipping in welcome.
Let me tell you something: some houses make you say, “That’s nice,” while others make you grab a calculator, check mortgage rates, and start dreaming about paint colors before you even set foot inside.
This 8-bedroom, 2-story modern farmhouse? It’s the second kind.
With its open layout, breezy porches, and clever mix of shared and private spaces, it’s equal parts dream home and smart investment.
It looks like a single-family home, but here’s the twist—it’s actually a duplex. Yep, two separate living spaces designed as mirror images of each other, divided by a six-foot breezeway.


First Impressions: A Farmhouse With Charm and Strategy
That breezeway isn’t just about airflow; it gives privacy, making the setup appealing for renters, multi-generational families, or anyone thinking long-term property value.
A real estate agent would probably say this house “checks every box.” And honestly, they wouldn’t be wrong.
Whether you’re considering it as a purchase for your own family or as an investment property, this farmhouse is designed to deliver flexibility and comfort in equal measure.
The Layout: Open, Bright, and Easy to Love
Inside, the design flows with the grace of a home remodeling contractor’s best Pinterest board.
The family room is anchored by a cozy fireplace, and the open kitchen lets you keep an eye on dinner while chatting with guests or helping the kids with homework.
Because the kitchen sink sits in the island, facing forward, you can finally avoid staring at a blank wall while scrubbing dishes. Small detail? Yes. Game-changer? Absolutely.
TIP: As you plan your dream home, don’t overlook essentials like comparing mortgage rates, securing home insurance, and checking your credit score. Smart tools like interior design software can help you visualize the layout, while upgrades like solar panels, smart home systems, and energy-efficient appliances can boost both comfort and property value.
The kitchen itself is a dream for anyone who loves to cook—or just loves having space for takeout containers.
You get both a walk-in pantry and a butler’s pantry, which means no more juggling canned goods and oversized appliances.
There’s even enough counter space for you to spread out with a building cost estimator while sipping coffee in the morning.
Natural light floods in through walls of glass, giving the whole space an airy, cheerful feel. And when you’re ready to step outside, you can head straight to the back porch for barbecues, morning yoga, or just enjoying the breeze.
Bedrooms Built for Comfort (and Storage)
Every single bedroom in this farmhouse gets its own walk-in closet. That’s right—no more “this one tiny closet will have to do.”
For renters or buyers alike, that feature alone raises the property value in a way that feels downright indulgent.
The master suite is particularly special, with a tray ceiling that adds elegance without pretension. You’ll also find a private door leading to the back porch, perfect for sipping late-night tea under the stars.
And the ensuite bathroom? It’s designed for relaxation, privacy, and a touch of spa-like luxury.
Because this is an 8-bedroom house plan (split across the duplex), you’ll also find that each unit’s layout offers flexibility.
Upstairs, there are additional bedrooms, a full bath, and even a linen closet that makes everyday life easier.
The setup feels balanced—enough shared spaces for family bonding, and enough private nooks for peace and quiet.

Porches, Patios, and Outdoor Living
If you’re like me, outdoor living is a must-have. Luckily, this farmhouse doesn’t just have porches—it has them everywhere.
The main covered porch out back feels like an extension of the family room. You can fire up the barbecue grill, host a birthday party, or just relax with a book while the kids play in the yard.
This kind of design also adds to the home’s investment appeal. Homes with strong indoor-outdoor connections consistently draw higher interest from buyers, and if you’re considering future resale or refinance mortgage options, that’s money well spent. Plus, porches are basically free square footage when the weather’s nice.
Smart Use of Space: Bonus Rooms and More
One of my favorite features of this plan is the optional bonus space. It’s like having a blank check in the world of home design—you can finish it when you’re ready, and turn it into whatever fits your needs.
Office? Media room? Playroom? Gym with the best home security system to protect your equipment? The flexibility makes this farmhouse truly future-proof.
And because it’s a duplex, you could finish the bonus space in one unit and leave the other as-is. That’s the kind of thoughtful planning that makes this design both family-friendly and appealing as a long-term investment.
Corner-Lot Friendly Garage
Now, let’s talk practicality. The side-load garage is designed with corner lots in mind, which means curb appeal isn’t sacrificed for functionality.
Parking is easy, access is convenient, and the overall look of the home remains charming instead of garage-dominated.
This detail may sound small, but when you’re thinking about resale value—or talking to a real estate agent about the neighborhood—it matters.
Corner lots are often premium locations, and having a garage that enhances rather than detracts from the look of the property can be the cherry on top of your purchase decision.
Everyday Comfort Meets Long-Term Value
When you combine all these features—the open layout, the walk-in closets, the outdoor living spaces, and the duplex design—you end up with more than just a pretty house. You end up with a place that’s livable, flexible, and valuable over time.
It’s the kind of home that adapts to your needs, whether you’re raising a family, housing extended relatives, or planning for rental income.
And with smart home technology easily integrated into the design, you can make it as modern and connected as you want.
Interior design software makes it easy to test out your dream décor, and a home remodeling contractor could help you tailor each side of the duplex to different styles if you’re renting.
Bottom line: this farmhouse is both beautiful and practical. It’s a home that makes you want to move in tomorrow, but also one that makes sense when you sit down with a calculator and look at the numbers.
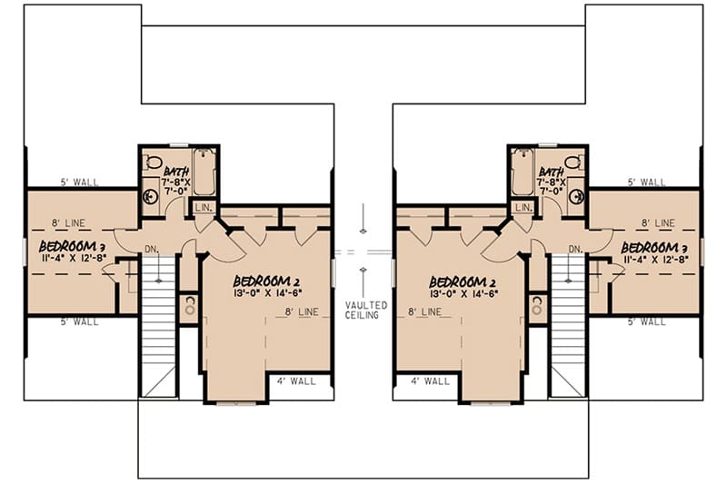
Upstairs Retreats and Bedroom Comfort
One of the standout features of this modern farmhouse duplex is how well the bedrooms are laid out.
Each unit has two bedrooms upstairs, along with a full bath and a convenient linen closet. Upstairs spaces offer privacy while still keeping everyone connected to the main living areas below.

Every bedroom has a walk-in closet, giving everyone a personal storage space for clothes, seasonal items, or even hobby materials.
The master suite on the main floor is designed to impress. A tray ceiling adds an architectural focal point, while the private door to the back porch makes stepping outside effortless.
The ensuite bath is roomy and functional, perfect for winding down at the end of the day.
This setup shows how thoughtful design turns a house into a home, making daily routines smoother and more enjoyable.
Family Room and Kitchen Flow
The open floor plan really shines in the main living areas. The family room, anchored by a cozy fireplace, seamlessly connects to the kitchen.
The kitchen island faces forward, allowing anyone at the sink to interact with guests or watch kids playing nearby. With generous counter space and an eat-at bar, meal prep and casual dining happen in style.
Connected to the kitchen is the dining area, which opens directly to the back covered porch.
This indoor-outdoor connection makes entertaining easy, whether it’s a casual barbecue or a larger gathering. The design ensures that traffic flows naturally between spaces, a hallmark of a well-thought-out floor plan.
Pantries for Every Purpose
Storage is never an afterthought in this farmhouse. Each unit features both a walk-in food pantry and a butler’s pantry.
These spaces keep kitchens organized and functional, whether you’re preparing daily meals or hosting a large family event.
The combination of pantries supports both practicality and luxury, showing that attention to detail can elevate a home from simple to exceptional.
Outdoor Living Spaces
The porches are one of the farmhouse’s defining features. The front porch welcomes guests with its stone-based columns, while the back covered porch is ideal for family gatherings or quiet relaxation.
Both units enjoy these outdoor spaces, making the duplex feel like two separate homes with plenty of room for privacy.
The outdoor areas are not just pretty—they’re functional. The breezeway separating the duplexes offers privacy between units, creating a sense of independence while maintaining a cohesive architectural look.
This careful planning highlights the thought that went into both design and livability.
Optional Bonus Space
Another versatile feature is the optional bonus space. Homeowners can finish it when the timing is right, turning it into a media room, office, or additional bedroom.
This flexibility adds value to the house plan and ensures the home can adapt to changing family needs over time.

The bonus space fits seamlessly into the overall layout, maintaining the balance of open living areas, private bedrooms, and functional storage.
Whether finished immediately or left for future expansion, it’s a feature that enhances both lifestyle and property value.
Corner-Lot-Friendly Side Garage
The side-load garage makes this farmhouse ideal for corner lots. Its design allows for convenient vehicle access while keeping the overall look of the home charming.
The garage placement also creates a natural separation between outdoor spaces and streets, enhancing both aesthetics and usability.
This garage design supports multiple lifestyle needs—parking for multiple vehicles, storage for seasonal items, or space for recreational equipment—without compromising the home’s curb appeal.
Duplex Design Advantages
The duplex layout is cleverly designed, with mirror-image units separated by a 6-foot breezeway. This setup eliminates shared walls, adding privacy for occupants and increasing the home’s appeal to renters.
Each unit is 1,595 square feet, with 1,083 on the main floor and 512 upstairs. At 30 feet wide by 48’6” deep, each unit feels spacious and well-proportioned.
This design allows families to enjoy the feel of a single-family home while still providing the option of rental income or multigenerational living. It’s an efficient use of space that doesn’t sacrifice comfort or style.
Practical Living Spaces
On the main floor, the master suite sits alongside a hall bath, another bedroom, and a stacked washer and dryer. The upper floor accommodates additional bedrooms and a full bath, along with a linen closet.
These arrangements ensure both comfort and functionality for daily living, making the house ideal for families or multiple occupants.
Every element, from the fireplaces to the open dining and kitchen areas, is designed with practicality in mind. Even small details, like the orientation of the kitchen island or the placement of pantries, contribute to an overall sense of ease and efficiency.
Light and Views
Walls of glass bring natural light deep into the home and provide views of the porches and backyard. The design emphasizes the indoor-outdoor connection, creating a bright, inviting atmosphere in both units.
Natural light enhances the feeling of space and highlights architectural details, while views of the porch and yard make everyday life more enjoyable.
The layout ensures that living areas, dining spaces, and even kitchens benefit from this light, making the house feel larger and more connected to its surroundings.
Balancing Style and Function
From the welcoming front porch to the thoughtfully designed breezeway, every aspect of this modern farmhouse blends style with function. Split bedrooms ensure privacy, while open living areas encourage interaction and togetherness.
Walk-in closets, pantries, and optional bonus rooms offer practical storage and adaptability, ensuring the home can meet changing needs over time.

By carefully balancing aesthetics and usability, this house plan provides a home that is not only beautiful but also livable and flexible. Every feature—from fireplaces to outdoor porches—works together to create a cohesive, functional environment.
This 8-bedroom, 2-story modern farmhouse duplex is a standout in design and practicality. With its open layout, split bedrooms, abundant storage, outdoor living spaces, and optional bonus rooms, it offers both comfort and flexibility.
Side-load garages, breezeways, and mirrored units make it corner-lot friendly and ideal for families or rental opportunities.
Every detail, from tray ceilings to walls of glass, reflects careful planning and thoughtful design.
This farmhouse isn’t just a house plan—it’s a blueprint for comfortable, adaptable living that combines style, functionality, and long-term value.
Designing your dream home? Make sure your financial and tech plans are just as solid as your layout. Review current mortgage rates, talk to a real estate agent, and stay on top of your credit score.
Don’t forget essentials like home insurance, warranty coverage, and future refinance options.
Boost your property value with additions like solar panels, smart home features, and energy-efficient appliances.
And when it’s time to visualize it all, let interior design software be your guide.








