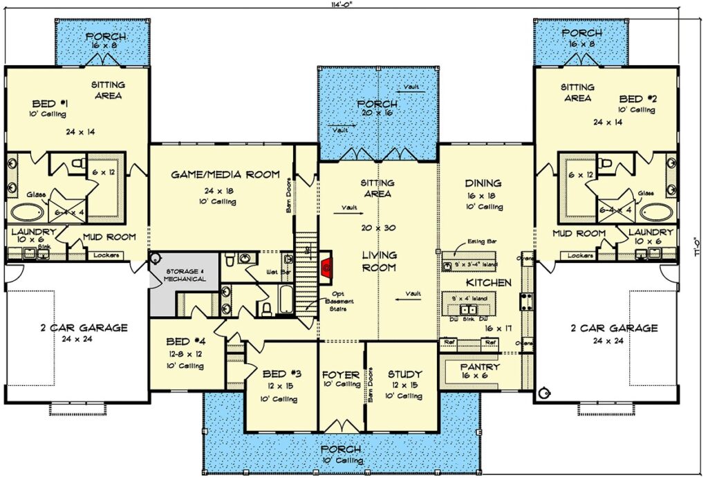
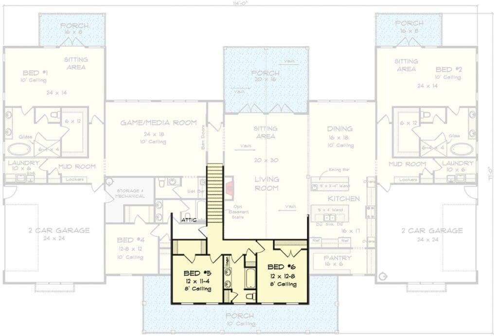
6-Bedroom 2-Story Multi-Generational Farmhouse with Split Living Wings (Floor Plan)

Specifications:
- 4,952 Sq Ft
- 6 Beds
- 4.5 Baths
- 2 Stories
- 4 Cars
If your idea of bliss is a big porch, endless laughter, and enough space for three generations to live in harmony (mostly), then you’ll love this plan as much as I do.
This sprawling country farmhouse checks every box for multi-generational living under 5,000 square feet — 4,952 to be exact.
With six bedrooms, four and a half baths, two stories, and garage space for four cars, it’s designed to be a place you buy once, protect with the best home warranty you can find, and watch your investment grow right along with your family.
Let’s take a tour — grab your sweet tea, and let’s imagine your future in this forever farmhouse.




Three Bedrooms of Privacy and Practicality
On the left side of this thoughtfully designed estate is a three-bedroom layout that’s really its own self-contained retreat.
It’s perfect for the primary family space — maybe for the kids, parents, or visiting relatives who always “just need a place to stay for a few months.” (We know how that goes.)
A dedicated laundry room and mudroom keep daily messes under control — especially helpful when muddy boots and sticky fingers come with the territory.
With mortgage rates always on your mind, it’s smart to know that this side could be rented out, used as a guest suite, or kept private.

That flexibility makes it easier to refinance your mortgage or tap into a home equity loan later if you ever want to fund an upgrade.
Keeping this wing separate also boosts the home’s value for any real estate agent trying to market it down the road — families crave privacy and togetherness, and this plan offers both.
TIP: As you plan your dream home, don’t overlook essentials like comparing mortgage rates, securing home insurance, and checking your credit score. Smart tools like interior design software can help you visualize the layout, while upgrades like solar panels, smart home systems, and energy-efficient appliances can boost both comfort and property value.
A One-Bedroom Suite for Independence
The right wing is a gem for multi-generational living: a full one-bedroom unit with its own laundry and mudroom.

Imagine the peace of mind knowing Grandma and Grandpa can live independently but still be just steps away from the heart of the family.
Having a dedicated private space like this adds big value to your purchase.
If you ever sell, buyers love the option of a separate suite for parents, boomerang kids, or even renters.
In today’s economy, that extra flexibility is like money in the bank — whether you use it to refinance mortgage terms, fund a home improvement loan, or simply enjoy the boost to your property value.

The Kitchen
Step into the heart of this farmhouse: the oversized kitchen with not one but two islands.
Yes — two islands!
For families who cook big meals or host big parties, this setup is heaven.
I can already see Thanksgiving turkeys, birthday cakes, and late-night snacks spread out here.

The kitchen flows into the open dining space, framed by big windows that fill the room with sunshine and good energy.
If you’re the kind of person who loves to play with interior design software, this is your blank canvas — farmhouse sinks, smart home technology like touchless faucets, energy-efficient appliances… all the little upgrades that protect your property value and make your investment future-proof.
And hey, when you buy quality, you won’t need a home remodeling contractor every other year.
Smart upgrades here today mean fewer headaches tomorrow — and more room in the budget to splurge on dessert.

Vaulted Living Room
From the kitchen, step into the vaulted living room — where high ceilings and a beautiful fireplace make every gathering special.
Double French doors open up to the vaulted porch, inviting fresh air and easy flow for those family reunions you secretly love (but also need to escape from sometimes).
This living room isn’t just about looks — it’s built to keep your home’s value high and your family connected.
Imagine adding smart home technology here: automated shades, lighting you control from your phone, or the best home security system to keep everyone safe.

With features like these, your real estate agent will have an easy time bragging when it’s time to sell or refinance your mortgage.
Country Charm, All Year Long
Out those French doors is the vaulted porch — 20 feet by 16 feet of pure country bliss.
It’s the perfect place for morning coffee, sunset chats, or an impromptu nap while the kids run around the yard.
Outdoor living spaces are more than “nice to have” — they’re real boosts to your property value.

If you ever decide to pull out a home equity loan for upgrades, this is where you’ll want to invest: think built-in grill, a cozy fire pit, or even a screened-in option for buggy summer nights.
Barn Doors and Endless Entertainment
Tucked away behind sliding barn doors is your new favorite spot — a game and media room with its own wet bar and a handy half bath.
Whether it’s family movie night, a kids’ sleepover, or your friends coming over to watch the big game, this space has you covered.
A flex space like this isn’t just fun; it’s smart.

It makes your home more versatile, more attractive to buyers, and a better long-term investment.
And if you ever want to remodel it — bigger screen, better soundproofing, a mini theater — you can plan it smartly with a trusted home remodeling contractor.
Four-Car Garage
Each side of the home has its own two-car garage — that’s four cars sheltered from the weather, four cars safe from hail, and four cars that keep your home insurance company happy.
A big garage isn’t just a perk — it protects your vehicles, helps keep your property value strong, and makes day-to-day life way easier.

No more jockeying cars in the driveway every morning — your sanity and your credit score thank you.
Farmhouse Heroes
Practical doesn’t always mean boring — in this farmhouse, the double mudrooms and laundry spaces are the unsung heroes.
They keep dirt out of your main living areas, give everyone a place to drop backpacks and boots, and make everyday life less chaotic.
Little details like these mean you’ll save money on repairs and cleaning over the years, which is good news for your budget and your stress levels.

And if you ever do need to refinance your mortgage or consider home improvement loans for a big upgrade, you’ll know you’ve already got the basics covered.
Build Smart, Buy Smarter
Before you break ground, run the numbers with a good building cost estimator.
Get your home loan pre-approval lined up and shop for the best mortgage rates.

Protect your dream with the right home insurance and a solid home warranty to cover the surprises you know will come with a big family house.
Work with a real estate agent who knows country properties and multi-generational trends — they’ll help you buy smart and sell smart, too.
And when you’re ready, smart home technology can keep your energy costs down and your property value up.
This 4,952-square-foot country farmhouse isn’t just a building — it’s a blueprint for family life, financial security, and happy memories.

It’s where parents, kids, grandparents, and guests can share everyday life while still having their own spaces to recharge.
From the double islands in the kitchen to the vaulted living room, the barn-door game room to the porch swing waiting for sunset chats — every square foot is a promise that your investment is worth it.
So gather your family, check that credit score, find your best mortgage rate, and get ready to buy the home you’ll love for generations.
This farmhouse plan is ready when you are — all you need is the keys and a rocking chair for that porch.
Designing your dream home? Make sure your financial and tech plans are just as solid as your layout. Review current mortgage rates, talk to a real estate agent, and stay on top of your credit score.
Don’t forget essentials like home insurance, warranty coverage, and future refinance options.
Boost your property value with additions like solar panels, smart home features, and energy-efficient appliances.
And when it’s time to visualize it all, let interior design software be your guide.








