5-Bedroom Dual-Story Traditional House with Bonus Over Garage (Floor Plan)

Specifications:
- 3,277 Sq Ft
- 4 – 5 Beds
- 4.5 Baths
- 2 Stories
- 3 Cars
Some house plans just get it right.
This 3,277-square-foot traditional home nails the balance between classic curb appeal and smart functionality.
With 4 to 5 bedrooms, 4.5 bathrooms, two well-laid-out stories, and a spacious 3-car garage, this plan blends beauty, comfort, and flexibility.
Whether you’re a growing family or simply someone who wants a home that adapts to your lifestyle, this floor plan covers all the bases—and then some.


Sweeping Front Porch That Makes an Impression
Let’s start with that jaw-dropping front porch.
It’s not just a pretty face—it’s a space that welcomes guests, offers shade on sunny days, and practically begs for a pair of rocking chairs.
It also boosts curb appeal big time, which can pay off when you’re thinking long-term about property value and investment.
And yes, it’s the kind of porch that makes neighbors slow down just to get a better look.
If you’re looking to buy a house that checks the charm box from the curb, this plan earns top marks.
Open Foyer with Clear Sightlines
Step inside and the layout wastes no time showing off.
TIP: As you plan your dream home, don’t overlook essentials like comparing mortgage rates, securing home insurance, and checking your credit score. Smart tools like interior design software can help you visualize the layout, while upgrades like solar panels, smart home systems, and energy-efficient appliances can boost both comfort and property value.
The open foyer gives you a straight shot through to the family room at the back.
There’s a fireplace flanked by built-ins waiting to anchor your living space, and the whole area feels cohesive and inviting.
The open view makes the home feel even bigger than its square footage, and if you’re considering how design choices influence things like resale or home equity loan potential, that sense of spaciousness is a big plus.
Centrally Located Kitchen with Outdoor Connections
This kitchen is no afterthought—it’s right where it should be.
Centrally placed, it connects easily to the formal dining room, the casual breakfast area, and the screened porch out back.
That means whether you’re hosting a holiday dinner or flipping pancakes on a random Tuesday, the kitchen keeps you at the heart of the action.
Even better, it overlooks the backyard, making it easy to keep an eye on kids, pets, or just admire the landscaping.
Oh, and did I mention the outdoor kitchen?
It extends your cooking space into the fresh air—without inviting the bugs, thanks to that screened porch.
Add a touch of smart home technology here and you’ve got an entertainer’s paradise.
Main Floor Master Suite with Outdoor Access
Now let’s talk about the master suite.
Positioned on the main floor for extra privacy, this bedroom comes with beautiful double tray ceilings that elevate the space (literally and stylistically).
You also get not one, but two walk-in closets.

So yes, you can finally stop arguing over closet space.
The ensuite bathroom is spacious and luxurious, but the real star?
Direct access to the covered rear terrace.
Imagine early mornings with a cup of coffee or late-night stargazing—your own little escape.
A suite like this not only makes everyday life more comfortable, it can also enhance home insurance considerations and long-term mortgage rates value thanks to its high-end features.
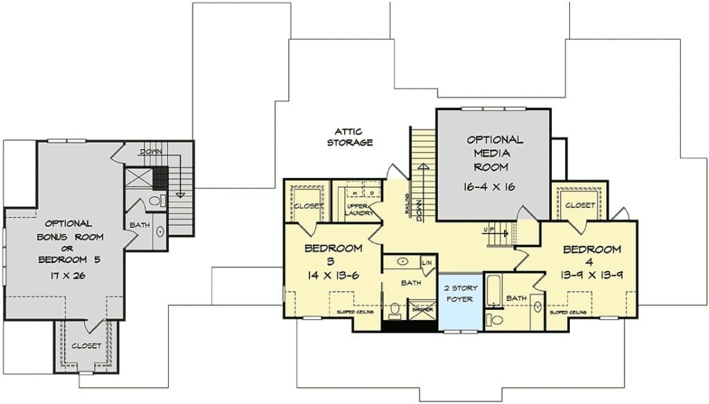
Upstairs Bedrooms with a Bonus Room Twist
Head upstairs, and the layout continues to impress.
You’ll find two bedrooms, a media room, and an optional third bedroom—perfect for family, guests, or a home office setup.
Whether you’re working from home or managing a busy household, this layout adapts easily to changing needs.
Need even more space?
Over the garage, there’s a bonus room that can become a fifth bedroom, playroom, or studio.
This type of flexibility adds significant investment value and makes the house feel like it can grow with you.
If you’re in the process of home loan pre-approval, this kind of adaptability is exactly what makes a floor plan go from “nice” to “must-have.”
Three-Car Garage with High Ceilings and Wide Doors
Garage space isn’t usually exciting—until you realize how well-designed this one is.
With room for three cars, 9-foot ceilings, and oversized doors (9′ wide and 8′ tall), it can handle SUVs, storage racks, sports gear, and even a workshop setup without breaking a sweat.
A garage like this also makes moving in and out a breeze, especially if you’re working with a home remodeling contractor to customize your space after purchase.
And yes, it makes a difference when it comes to refinance mortgage potential and maximizing your home’s building cost estimator value.
Rear Terrace and Screened Porch for Comfortable Outdoor Living
One of this plan’s standout features is its rear outdoor living area.
The covered terrace connects seamlessly to the master suite, while the screened porch is just off the kitchen and breakfast area.

It’s a setup that supports year-round outdoor enjoyment.
And let’s not ignore that outdoor kitchen again—it’s begging for grill nights, weekend brunches, and impromptu summer parties.
Whether you’re just moving in or planning long-term upgrades with home improvement loans, this space is already optimized for entertaining.
Efficient Flow from Room to Room
The strength of this house plan lies in how naturally everything connects.
From the foyer to the kitchen, family room to porch, the layout is smooth and intentional.
Traffic patterns make sense, and no space feels wasted.
This kind of efficient design can actually affect your credit score positively over time—indirectly, of course—by keeping you from overspending on unnecessary renovations.
When a house is laid out this well from the beginning, your energy (and dollars) can go toward personalization instead of corrections.
Smart Use of Square Footage
Every square foot in this 3,277-square-foot home is thoughtfully used.
The balance between shared and private spaces is perfect for both family living and entertaining.
You’ve got flexibility upstairs, privacy downstairs, and welcoming outdoor areas that tie it all together.
If you’re using interior design software to map out furniture or create mood boards, you’ll find the room dimensions friendly and adaptable.
This plan supports everything from casual everyday living to upscale entertaining—all without feeling overdone.
A Floor Plan That’s Built to Support Your Future
This traditional home isn’t just about today—it’s built for tomorrow too.
Whether you’re working with a real estate agent to find your next home, or already eyeing ways to purchase a property that offers long-term value, this plan delivers.
From the flexibility in bedroom count to the well-placed garage and outdoor living spaces, every feature is designed to enhance your daily life and long-term financial goals.
It’s the kind of home that makes smart planning easy—and buying even smarter.
This 4 to 5 bedroom, 4.5 bathroom traditional house plan brings more than charm to the table.

It’s a blueprint for real living—offering smart design, flexible spaces, and thoughtful details that stand the test of time.
Whether you’re raising a family, building equity, or setting down roots, this home plan is the perfect foundation.
If you’re navigating changing mortgage rates, considering refinance mortgage options, or simply trying to make the best investment for your future, this home provides a solid, stylish solution.
It’s a traditional plan—but with modern sensibilities built right in.
Designing your dream home? Make sure your financial and tech plans are just as solid as your layout. Review current mortgage rates, talk to a real estate agent, and stay on top of your credit score.
Don’t forget essentials like home insurance, warranty coverage, and future refinance options.
Boost your property value with additions like solar panels, smart home features, and energy-efficient appliances.
And when it’s time to visualize it all, let interior design software be your guide.








