5-Bedroom 2-Story Modern House with Secret Ladder Retreat (Floor Plan)

Specifications:
- 3,155 Sq Ft
- 4 – 5 Beds
- 3.5 – 4.5 Baths
- 2 Stories
- 2 Cars
You know those house plans that feel like they were made just for you?
That’s this one.
It’s got four bedrooms, a hidden loft, and even a home office you’ll actually want to work in.
With 3,155 square feet of smart, stylish design, this modern home isn’t just a place to live—it’s a place to thrive, play, and maybe even show off just a little.
Let’s take a tour through a plan that blends practical design with surprising (and delightful) extras.



Built to Embrace a Sloped Lot
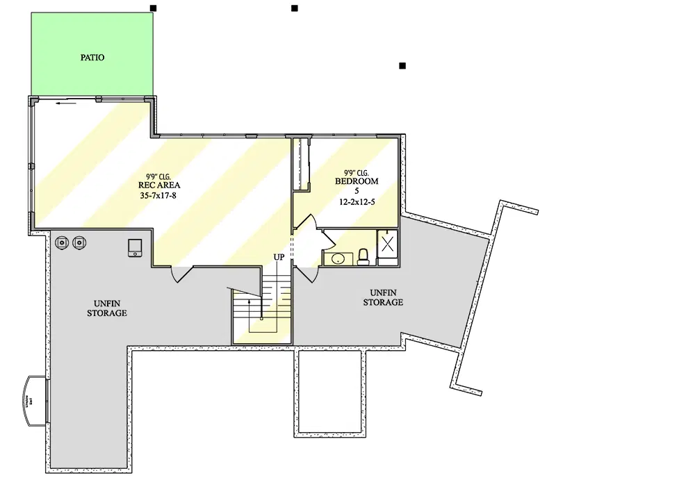
This modern beauty was crafted specifically for a lot that slopes toward the back, which means the lower level isn’t dark, damp, or dreary.
Instead, it’s a walkout basement full of possibilities.
The rec area opens up with sliding glass doors, making it feel more like a bonus floor than a basement.
Whether you’re planning to purchase your first dream home or thinking of making an investment, this kind of layout adds livable square footage that boosts property value in a big way.
And if you’re already watching mortgage rates like a hawk (aren’t we all?), finding a plan with potential like this helps stretch your dollar further.
TIP: As you plan your dream home, don’t overlook essentials like comparing mortgage rates, securing home insurance, and checking your credit score. Smart tools like interior design software can help you visualize the layout, while upgrades like solar panels, smart home systems, and energy-efficient appliances can boost both comfort and property value.
Bright, Open, and Ready for Real Life
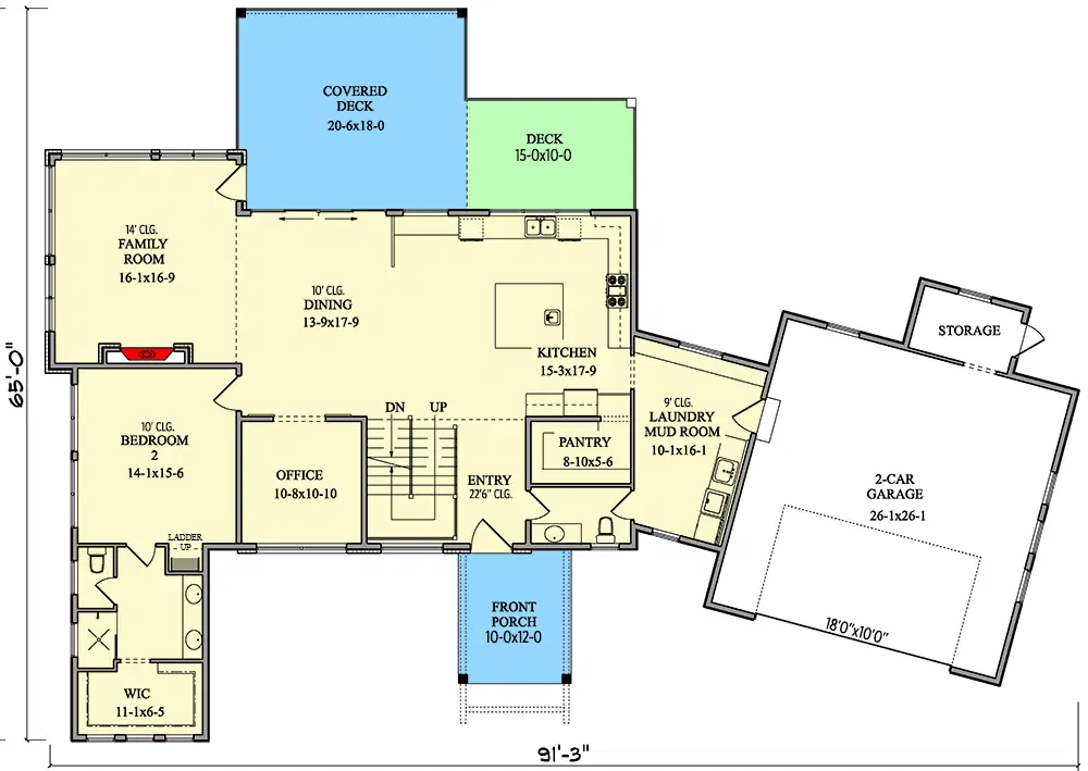
On the main floor, the house opens up into a family room that feels anything but ordinary.
Two walls lined with oversized windows make the space feel bright, open, and airy.
It’s the kind of room where you want to host movie nights, take afternoon naps, or do absolutely nothing—which, let’s be honest, is the dream.
And right next to it?
A dining room that connects directly to the covered back deck.
It’s ideal for everything from laid-back brunches to evening dinners with friends.
With so many homes today focusing on indoor-outdoor living, this house delivers the goods.

If you’re budgeting for furnishing the space, using interior design software can help you visualize your setup before the first box of décor arrives.
Planning to upgrade some finishes or add custom touches?
You can always explore home improvement loans or partner with a trusted home remodeling contractor to bring your ideas to life.
A Kitchen That Works As Hard As You Do
We can all agree: the kitchen is the true heart of the home.
And this one is designed for serious functionality.
There’s plenty of counter space, storage galore, and a walk-in pantry big enough to make Costco runs a breeze.
Tucked behind the kitchen is a huge mudroom—because when you’ve got a house full of people (and shoes, and backpacks, and sports gear), you need a place to drop it all before entering your calm, clean kitchen zone.
This kind of thoughtful layout is what makes a home feel livable from day one.
And if you’re planning long-term finances, whether you’re looking to refinance your mortgage or tap into a home equity loan to personalize your space, it’s smart to consider how much use you’ll get out of a high-functioning kitchen like this.
Work-From-Home Just Got an Upgrade
Gone are the days of trying to be productive from the corner of your couch.
This house includes a dedicated home office on the main floor—private, quiet, and perfectly positioned.
Whether you’re deep in work mode, handling a virtual meeting, or just checking your credit score for fun (no judgment), this space supports it all.
The office also gives you a front-row seat to natural light, not just a wall full of sticky notes.

It’s a great setup if you’re working remotely or running a business from home, and it can even double as a study area or craft room if you’re feeling inspired.
This kind of versatility not only supports your lifestyle but boosts your home’s overall property value and appeal down the line.
The Secret Ladder Room—A Kid’s Dream (or Yours)
Now, let’s talk about Bed 2.
And let me tell you—this room steals the show.
It’s a junior suite with two vanities, a walk-in closet, and wait for it… a secret ladder.
Yup, a real, climbable ladder that leads to a finished loft space above the room.
Honestly, if I’d had this growing up, I’d still be bragging about it.
Whether it becomes a quiet reading nook, a hideout for a teen, or a creative workspace, this bonus loft adds unexpected magic to an already fantastic room.
Features like this are exactly the kind of thing that make a house feel like a purchase you’ll never regret—and if you decide to sell down the road, it’ll make your listing stand out from the crowd.
A Master Suite That Feels Like a Getaway
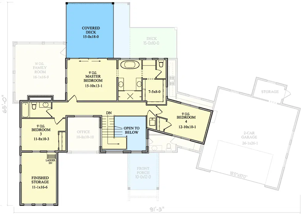
Upstairs, the master suite is exactly what you’d hope for: spacious, serene, and slightly indulgent.
You’ll find a beautiful bathroom, large walk-in closet, and—best of all—access to your own private covered deck.
Whether you’re sipping coffee before the world wakes up or enjoying a late-night breeze, this private escape is a daily reminder that your home should feel like your favorite place on earth.

It’s the kind of retreat that makes you forget all about daily stress… or at least makes checking your home insurance bill a little more pleasant.
More Bedrooms, More Comfort
The second story also includes two additional bedrooms that share a well-designed full bathroom.
These rooms are perfect for kids, guests, or even a second office or hobby space if needed.
Every room is designed with ease and comfort in mind, and the upstairs layout ensures everyone has their own corner of calm—without being too far from each other.
With four official bedrooms (and potential for a fifth downstairs), this house grows with you, whether you’re starting a family or expanding your space for long-term living.
A World of Possibilities
Downstairs, the optional finished lower level adds 955 square feet of heated living space—and there’s an additional 964 square feet of unfinished space, just waiting for your imagination (and maybe your building cost estimator) to go to work.
From a home theater to a guest suite or even a teen hangout space, this walkout level lets you customize the home to match your life.
It’s a great way to add value and functionality over time, especially if you’re planning a phased approach with the help of a home remodeling contractor.

And if you’re thinking long-term, finishing the lower level is a smart way to grow into your space while increasing your home’s future investment value.
Smart, Safe, and Future-Proof
This modern home is also the perfect candidate for incorporating the best home security system and the latest in smart home technology.
From smart thermostats and video doorbells to app-controlled lighting, this layout is ideal for tech upgrades that bring convenience and peace of mind.
Of course, it’s always wise to protect your investment with a solid home warranty, especially if you’re finishing additional spaces later on.
A warranty can cover unexpected issues while you focus on making the house feel like home.
From the angled garage to the secret loft, this 4-bedroom modern house plan packs in everything a contemporary household needs—and then some.
It’s functional, flexible, and full of character.
Whether you’re planning to buy your first home, looking for a smart investment, or simply dreaming of a space that checks every box, this plan deserves a spot at the top of your list.
With room to grow, space to breathe, and a few delightful surprises, it’s more than just a house.

It’s the foundation for your future.
So go ahead—run the numbers, check those mortgage rates, talk to your real estate agent.
And when you’re ready?
This house plan is ready for you.
Designing your dream home? Make sure your financial and tech plans are just as solid as your layout. Review current mortgage rates, talk to a real estate agent, and stay on top of your credit score.
Don’t forget essentials like home insurance, warranty coverage, and future refinance options.
Boost your property value with additions like solar panels, smart home features, and energy-efficient appliances.
And when it’s time to visualize it all, let interior design software be your guide.








