5-Bedroom 2-Story House with Steeply Pitched Gables and Upstairs Bonus Room (Floor Plan)

Specifications:
- 3,651 Sq Ft
- 4 – 5 Beds
- 3 Baths
- 2 Stories
- 3 Cars
Some house plans are nice.
Some are practical.
But then… some are the architectural equivalent of a mic drop—and this 3,651-square-foot, 4-bedroom beauty is just that.
With its steeply pitched gables, charming board and batten siding, and a layout that actually understands what families need, this plan isn’t just functional—it’s fabulous.
Whether you’re daydreaming with Zillow open or ready to buy and build, let me take you on a tour of your future home.
Spoiler: you’re going to want to move in by the end of this article.


Gables, Grandeur, and Glorious First Impressions
First off, let’s just appreciate that this house looks like it should have its own Instagram page.
The steeply pitched gables?
Dramatic in all the right ways.
The board and batten siding?
TIP: As you plan your dream home, don’t overlook essentials like comparing mortgage rates, securing home insurance, and checking your credit score. Smart tools like interior design software can help you visualize the layout, while upgrades like solar panels, smart home systems, and energy-efficient appliances can boost both comfort and property value.
Farmhouse-chic without going full silo.
This is the kind of home that makes you hit the brakes when you drive past it—and then slowly reverse for a second look.
But it’s not just pretty on the outside.
Those large window groupings flood the interior with natural light and boost your home’s property value.
If you’re already thinking about long-term investment potential, this timeless curb appeal gives you a serious head start.
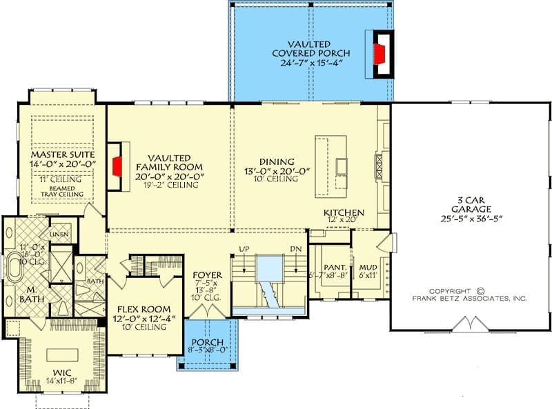
Open Concept That Actually Works
We’ve all seen those “open concept” homes that feel more like open chaos.
This house?
It gets it right.
Walk in, and the kitchen, dining area, and living room greet you like they’ve been waiting for you—airy, connected, and ridiculously inviting.
It’s the kind of space where holiday dinners, movie nights, and spontaneous dance parties all feel equally at home.
Got a big family?
This layout makes hosting easy.
Want your kitchen to be a statement?
Plan your layout with interior design software to make it personal and Pinterest-worthy.
And with mortgage calculators showing solid returns, it’s a wise move whether you’re buying your forever home or just upping your investment game.
A Kitchen That’s Big on Space (and Snacks)
Let’s not pretend we don’t all judge a house by its kitchen.
Luckily, this one earns a standing ovation.
There’s enough room to cook, gather, and lose your kid under the island cabinets (don’t worry, they resurface at dinner).
With expansive countertops and a pantry that can handle your weekly grocery haul without a meltdown, it’s designed for real life.

Need more sizzle?
Over time, a home equity loan or home improvement loan can help you upgrade appliances or add smart lighting.
And with rising mortgage rates, now might be a good time to lock in and build before prices climb higher.
Or consider a refinance mortgage later to rework the numbers if you’re already in the game.
Luxury at Ground Level
Tucked away on the main floor is your new favorite room: the master suite.
The en-suite bathroom feels like it belongs in a boutique spa—think soaking tub, oversized shower, and dual vanities that mean no more morning elbow wars.
The walk-in closet?
Let’s just say it’s more “wardrobe wing” than closet.
This isn’t just luxury—it’s strategic.
A ground-floor master suite increases your home’s longevity for aging in place and makes it more attractive to a wider range of future buyers.
Good news for your credit score and your future self.
Flex Room
Need a home office?
A nursery?
A home gym you’ll actually use for more than hanging laundry?
The flex room—located just a few steps from the master suite—is here for all of it.
It’s that extra slice of square footage that makes the home your home.
And since so many of us are working remotely now, adding some smart home technology can make this flex space a productivity powerhouse.
Throw in a few connected devices and boom—you’re working smarter and impressing your coworkers on Zoom.
Mudroom
There’s nothing glamorous about wet boots and school bags, but this house makes even the chaos look organized.
The mudroom off the garage is generously sized, offering hooks, shelves, and enough space to store the chaos of real life.
Let’s be honest—having a tidy drop zone reduces clutter, makes mornings smoother, and can even help you avoid unfortunate insurance claims involving slippery floors.
Your home insurance policy thanks you in advance.
The Covered Rear Porch You Didn’t Know You Needed
Imagine sipping coffee in the morning chill, or relaxing by the crackling outdoor fireplace on a crisp fall night.
That’s what the covered rear porch delivers.
It’s not just an outdoor space—it’s an all-season sanctuary.

Whether you use it for grilling, reading, or marathon board game sessions, it adds serious livable square footage.
Pro tip: add some outdoor smart lighting (hello again, smart home technology) and you’ll never want to go back inside.
Room for Everyone (and Then Some) Upstairs
Head upstairs and you’ll find three additional bedrooms, each large enough to avoid sibling turf wars.
There’s also a lofted common area—perfect for homework, game night, or building blanket forts (we don’t age out of those, right?).
And let’s not forget the bonus room.
This space is so massive, you might consider charging rent.
Whether it becomes a home theater, guest suite, yoga studio, or all three, it adds flexibility—and resale value.
You can always call in a home remodeling contractor if you want to go all-out with custom features.
Financially Smart, Emotionally Satisfying
Now for the brass tacks.
If you’re getting serious about this dream home, you’ll want to check your credit score, explore home loan pre-approval, and use a building cost estimator to budget accurately.
Good news: the layout, amenities, and size of this house make it an incredibly strong investment for the long term.
Already a homeowner?
This plan could be your upgrade.
Use a refinance mortgage to lower your interest rate, or tap into your current home equity loan to build this beauty.
Either way, it’s a smart financial move with serious lifestyle benefits.
And when it’s time to protect your investment, make sure you’ve got solid home insurance, a good home warranty, and—of course—the best home security system money can buy.
This house plan isn’t just about having four (or five!) bedrooms and three bathrooms.
It’s about thoughtful design, long-term comfort, and a touch of “wow” in every corner.
From the steeply pitched gables outside to the massive bonus room upstairs, this is the kind of home that doesn’t just work—it wows.
You get the open-concept layout you want, the flexible rooms you need, and features that make everyday living feel extraordinary.
Whether you’re getting ready to purchase your first home, planning to buy and build your forever one, or making a smart real estate investment, this plan gives you space to live, love, grow—and maybe even throw that dinner party you’ve been talking about since 2021.

Just don’t be surprised when your guests ask for the blueprint.
Or when you start referring to your house as “The One.”
Because, honestly?
It is.
Designing your dream home? Make sure your financial and tech plans are just as solid as your layout. Review current mortgage rates, talk to a real estate agent, and stay on top of your credit score.
Don’t forget essentials like home insurance, warranty coverage, and future refinance options.
Boost your property value with additions like solar panels, smart home features, and energy-efficient appliances.
And when it’s time to visualize it all, let interior design software be your guide.








