5-Bedroom 1-Story Modern Farmhouse With Bonus Room & Expansive Porches (Floor Plan)

Specifications:
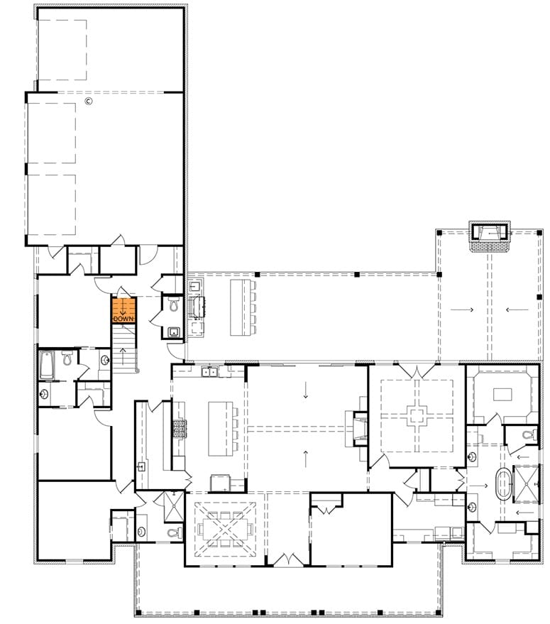
- 3,292 Sq. Ft.
- 4-5 Beds
- 3.5 + Baths
- 1 Stories
- 3 Cars
There’s something about a modern farmhouse that just feels right.
Maybe it’s the blend of timeless charm with all the tech-forward bells and whistles.
Or maybe it’s the fantasy of sipping sweet tea on the porch while pretending we aren’t panicking about mortgage rates.
Either way, this one-story beauty ticks all the boxes—and then some.
Let me walk you through a home that’s more than just a house.
It’s a full-blown lifestyle upgrade, one smartly designed square foot at a time.



First Impressions That Last
Before you even step inside, this home makes a statement.
Between the exposed rafter tails, mixed material façade, and a roofline so sharp it could cut through your latest home insurance policy , the curb appeal is off the charts.
It’s like your Pinterest board came to life and hired a real estate agent who actually gets your taste.
And the front porch? It’s not just a place to drop Amazon packages.
TIP: As you plan your dream home, don’t overlook essentials like comparing mortgage rates, securing home insurance, and checking your credit score. Smart tools like interior design software can help you visualize the layout, while upgrades like solar panels, smart home systems, and energy-efficient appliances can boost both comfort and property value.
It’s your personal welcome mat to 3,292 square feet of cozy, functional, and oh-so-fabulous living space.

One Story, Endless Possibilities
Single-story homes are having a moment, and for good reason. They’re convenient, accessible, and easier to clean when your home improvement loan only covers part of the deep-cleaning service.
With four bedrooms and three and a half bathrooms, there’s plenty of room for family, friends, or your future in-laws who “just need to stay until their refinance mortgage is processed.”
Each bedroom gets its own walk-in closet, which means no more shoving winter coats under the bed or bribing kids to share hangers.
And the master suite? Let’s just say if your credit score were as high as that tray ceiling, you’d have a private banker on speed dial.
Kitchen Goals: Activated
I’m not saying this kitchen will turn you into a gourmet chef overnight, but with the island sink facing the family room fireplace, you’ll at least look good burning dinner.

And let’s be honest: in the age of smart home technology, the real question is whether your fridge can remind you to buy milk and flirt with the oven.
The walk-in pantry is the real MVP—think Costco run without the garage-shelf disaster.
And there’s also a butler’s pantry, which adds a layer of elegance even if your “butler” is just you at 10 p.m. sneaking cookies.
Whether you’re prepping holiday meals or just hiding from your responsibilities, this kitchen has your back.
Open Layout, Wide Open Feels
An open floor plan isn’t just trendy—it’s practical. Especially when you’re juggling kids, dogs, or a home remodeling contractor who refuses to stick to the schedule.

Here, the kitchen flows right into the dining and family room spaces, making entertaining seamless and Sunday mornings a breeze.
Massive glass walls invite in natural light and tranquil backyard views. It’s the kind of setup that makes even doing your taxes feel a little more pleasant.
And while we’re on it: yes, natural light can increase your property value.
No, we can’t promise your teenager will close the curtains when they should. It’s a trade-off.
Outdoor Living for the Win
Remember that dream of barbecue nights and porch hangs? This house brings it to life with an expansive back porch—perfect for grilling, lounging, or telling yourself you’ll start that garden next spring.

The barbecue porch is basically your new best friend. It’ll make you forget you ever considered buying a second freezer for your garage.
And speaking of garages—this one’s a side-load, 3-car setup, making it a perfect fit for corner lots. It’s practical and polished. Like wearing yoga pants with designer sunglasses.
Study, Sweet Study
Work from home? Kids need a quiet place to study? You just want a room to hide in with snacks and pretend you’re in a Zoom meeting?
This plan’s got you covered with a home office that’s both stylish and secluded.
You can even test out that interior design software you downloaded but never used—just don’t blame me when you spend three hours rearranging digital furniture.

Having a dedicated space like this adds serious function and flexibility.
Plus, with smart home technology at your fingertips, you can automate everything from lighting to temperature while impressing your boss on that 9 a.m. call.
Bonus Room equal Bonus Life
Optional bonus room? Yes, please. This 612-square-foot space above the garage is your blank canvas.
Game room? Home theater? Extra guest suite for your friends visiting after their home loan pre-approval goes through? The sky’s the limit.
It even includes the option to add another half bath, which, let’s be real, is a huge selling point if you have teenagers or just drink a lot of coffee.

Adding this space doesn’t just give you more room—it’s an investment in your lifestyle.
Home Sweet Smart Home
Let’s talk tech. With the best home security system installed, smart thermostats, and voice-activated lighting, you’re not just living in a home—you’re running a digital fortress.
Whether you’re checking cameras from your phone or adjusting the AC while still in bed, the smart home features here make your life easier and your utility bills (hopefully) lower.
And since tech-savvy upgrades boost your resale potential, they’re also a smart move if you ever decide to buy, sell, or rent.
Just another reason this home is more than a pretty face.

Bonus Room Potential, Flex Space That Pays Off
Perched above the 3-car garage is the 612-square-foot optional bonus room, and let me tell you—it’s basically the Swiss Army knife of spaces.
Want a guest suite, game room, home theater, or a studio where you can finally start that candle-making business? This room says, “Yes, and.”
If you’re not ready to finish it right away, that’s okay. With the main level already offering a generous 3,292 heated square feet, you’ve got time.
But if you do opt to finish it later, it could easily raise your property value, and even help with future refinance mortgage opportunities or a home equity loan if you decide to cash in on the added square footage.
Room for Everyone: 4 or 5 Bedrooms With Walk-In Closets
Whether you need four bedrooms or want to bump it up to five, this house plan’s got you covered.

The layout places bedrooms strategically around the home, making it ideal for privacy and easy everyday living.
Each bedroom includes a walk-in closet, which is basically a grown-up version of a dream come true.
No more negotiating for shelf space or hiding shoes under the bed. For families, that means less clutter and more breathing room.
And more breathing room means fewer arguments over laundry baskets—scientific fact.
It’s details like this that also make the home a great investment from a resale standpoint.

If you decide to buy now and sell later, potential buyers will be just as wowed by the closet game as you were.
A Master Suite Worth Showing Off
Let’s talk about the master suite. First of all, there’s a tray ceiling that adds dimension and elegance—basically the architectural version of wearing a tailored suit.
The room has private access to the back porch, which means you can slip outside with your morning coffee without waking the rest of the house.
And yes, the en suite bathroom and large walk-in closet feel straight out of a design magazine.

The space balances luxury and practicality, which is perfect whether you’re planning to purchase this as your forever home or use it as a stepping stone in your real estate journey.
Plus, having a master like this makes it easier to qualify for a higher-end home insurance policy—and that can come with perks like better rates and stronger coverage.
Functional Home Office With Style
The study in this plan isn’t an afterthought—it’s a fully functional room ideal for working remotely, running a small business, or hosting your next Zoom quiz night.
If you’ve been relying on your dining table for “office hours,” this will feel like a serious upgrade.

Outfitting this space with the latest smart home technology or the best home security system also future-proofs the home.
It makes day-to-day tasks more efficient and can increase the home’s long-term property value.
And hey, if you ever need to stage a real estate listing video or use interior design software to plan your office furniture, the natural lighting and spacious layout here will make you look like a pro.
Entertain Outdoors Like Never Before
The back porch and barbecue area are the real MVPs when it comes to lifestyle.

This isn’t a tiny slab of concrete where you hope a folding chair will fit—this is a full-blown outdoor living zone.
Host a summer BBQ, relax in the shade, or add a fire pit for cozy fall nights.
You can even build out a full outdoor kitchen down the line using funds from home improvement loans or a home equity loan—that’s how versatile this space is.
It’s also worth noting that having a well-designed outdoor living area adds significant resale appeal.
And if you’re into grilling while the kids run around the yard, it’s basically paradise.

The Kitchen and Pantry Combo We All Deserve
First off, the walk-in food pantry is big enough to stockpile for a year—and maybe even sneak in a snack break mid-meal prep.
Then there’s the butler’s pantry, which adds a layer of organization and elegance.
Whether you’re stashing party supplies, setting up a coffee station, or hiding your “emergency” chocolate stash, it’s your secret weapon for keeping the main kitchen spotless.
With the island sink facing the family room fireplace, the layout keeps you connected with guests or family while you cook.

It’s these details that truly define modern living—and could help impress any visiting home remodeling contractor with how well-thought-out this floor plan really is.
Side-Load Garage: Corner Lot Perfection
Let’s give a round of applause for the side-entry 3-car garage. Not only does it boost your curb appeal , but it’s also perfect for corner lots.
The garage doesn’t dominate the front elevation, which allows your stunning exterior—board and batten, stone accents, and exposed rafter tails—to truly shine.
This setup also gives you better driveway access, improved yard space, and more flexibility with landscape design.

And if you’re building new, this garage configuration works beautifully when budgeting with a building cost estimator.
Pro tip: If you’re ever planning to sell, buyers love the corner lot + side garage combo. It’s one of those subtle design features that screams value without saying a word.
This modern farmhouse isn’t just a pretty face. It’s an architectural love letter to smart planning, flexible living, and future-proofing your lifestyle.
With thoughtful features like a dedicated study, luxury master suite, high-function kitchen, split-bedroom layout, expansive porches, and the bonus space of dreams, it gives you space to grow—financially, physically, and emotionally.
From credit score boosts via responsible borrowing, to opportunities for refinance mortgage savings, to increasing your property value with strategic upgrades, this house plan sets you up for the best kind of success.
So if you’re in the market to buy, build, or invest, keep this one on your radar. It’s not just a place to live—it’s a blueprint for living well.
Designing your dream home? Make sure your financial and tech plans are just as solid as your layout. Review current mortgage rates, talk to a real estate agent, and stay on top of your credit score.
Don’t forget essentials like home insurance, warranty coverage, and future refinance options.
Boost your property value with additions like solar panels, smart home features, and energy-efficient appliances.
And when it’s time to visualize it all, let interior design software be your guide.








