5-Bedroom 1-Story European Farmhouse With Bonus Room and Barbecue Porch (Floor Plan)

Specifications:
- 3,277 Sq. Ft.
- 5 Beds
- 3.5 Baths
- 1 Stories
- 2 Cars
I recently laid eyes on this modern farmhouse plan, and let me tell you—it’s not just a house.
It’s a lifestyle upgrade disguised in barn-chic vertical siding and a front porch that practically begs for a rocking chair and a glass of sweet tea.
If a house could do your taxes and make you breakfast, this one would.
So, buckle in, because we’re diving into all the dreamy nooks and crannies of this 5-bedroom barndominium-inspired beauty that blends luxury and comfort with a side of sizzling barbecue porch.


First Impressions & Front Porch Dreams
You know what they say—you never get a second chance to make a first impression. But this house doesn’t need one. The barn-style curb appeal immediately stops you in your tracks.
That massive covered front porch? It’s practically a love letter to lazy Sunday mornings. With long vertical siding giving it a crisp, fresh feel, this house plan effortlessly balances timeless charm and modern flair.
And yes, it’s corner-lot friendly thanks to its side-load garage, which is both practical and Instagram-worthy.
Before you even step inside, you can already feel the investment potential humming in the air.
You just know this is the kind of property that could boost your property value over time—especially with today’s mortgage rates being more unpredictable than a toddler in a toy store.
If you’re planning to buy, now’s a great time to look into a home loan pre-approval to get ahead of the game.
TIP: As you plan your dream home, don’t overlook essentials like comparing mortgage rates, securing home insurance, and checking your credit score. Smart tools like interior design software can help you visualize the layout, while upgrades like solar panels, smart home systems, and energy-efficient appliances can boost both comfort and property value.
Open Layout Magic & a Kitchen that Performs
Now, once you step through the front door, prepare to have your breath taken away—and not just because you’re holding a tray of snacks from the porch barbecue.
Thanks to a stunning open layout, the sightlines stretch from the foyer to the great room, straight into the kitchen.
And speaking of the kitchen: it’s what food-lovers, entertainers, and coffee-dependent zombies dream of.
Picture this: a huge island with a forward-facing sink, so you can whip up your world-famous mashed potatoes while chatting with guests lounging in front of the fireplace.

That fireplace, by the way, is nestled in the cozy family room, radiating enough warmth to make even your credit score feel a little better.
Add in a walk-in food pantry and a separate butler’s pantry , and you’ve got storage space that could easily support a Costco-sized shopping spree.
Trust me, the only thing you’ll be refinancing is your love for cooking here.
Glass Walls, Natural Light, and Spaces That Breathe
One of my favorite features? The walls of glass that flood the space with natural light.
Not only does this create a sense of openness and calm, but it also keeps your plants alive with minimal effort.
And if you’re anything like me, that’s a small miracle.
All this light means your interior design software dreams can come true—whether you’re into sleek neutrals, moody darks, or farmhouse whites, everything looks stunning with a bit of sunshine and strategic layout.
Plus, those same walls of glass give you views straight onto the back porch and into your yard. Perfect for supervising kids, pets, or making sure your neighbor returns your lawnmower.
Bedroom Bliss & Barn Door Goals
Let’s talk bedrooms. This house has five of them—enough for family, guests, and maybe even that long-lost cousin who just “happens to be in town.”
Each bedroom comes with its own walk-in closet, which means the days of fighting over closet space are officially behind you.

The master suite is where things get especially dreamy. First, a tray ceiling adds a lovely touch of elegance.
Second, there’s a door that opens straight onto the back porch—imagine sneaking out with a cup of coffee at sunrise or sipping wine under the stars.
And third? Barn doors. So many barn doors. They’re functional, space-saving, and let’s face it—adorable.
You’ll find them in the great room and the master suite, sliding open to reveal spaces worthy of an HGTV reveal.
Inside the master, there’s room for a seating area, a vanity, or a cozy home office setup.
In the bathroom, you get a tiled shower, separate whirlpool tub, dual vanities, and not one, but two walk-in closets.
That’s right—double the storage, double the fashion freedom.
Split Bedrooms for Peace, Quiet, and Sanity
The four additional bedrooms are strategically placed across the home, giving the master suite a welcome buffer zone.
This split-bedroom design is perfect for privacy and peaceful nights, especially if you’re living with teenagers, toddlers, or talkative in-laws.
Each pair of bedrooms shares a Jack-and-Jill style bathroom—an efficient setup that makes mornings less chaotic and more civilized.

There’s even a shared living space nearby that can become a game room, reading nook, or home school zone.
And yes, if you’re thinking long-term, this layout is also fantastic for maintaining home value and resale appeal. Real estate agents eat this stuff up.
The Workhorses: Mudroom, Laundry & Bonus Spaces
If you’re someone who believes in function just as much as form, you’re going to love what’s tucked in the back of the house.
There’s a shotgun-style entry that leads into a spacious mudroom and laundry room.
It’s the kind of space that quietly keeps your house from descending into chaos.
Think lockers for backpacks, hooks for dog leashes, and maybe even a little bench for unlacing muddy shoes.
This spot is practical, organized, and a silent MVP in your daily routine.
Plus, it makes a compelling case when you’re considering home insurance policies—because well-thought-out spaces like these reduce wear, tear, and clutter.
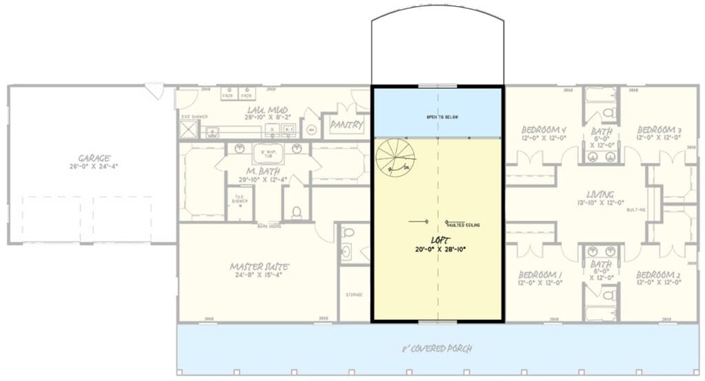
And just when you thought the fun was over, there’s an optional loft space above the great room.
You can finish it out whenever your budget allow. Think game room, second office, yoga studio, or nap cave—this house is all about options.

Backyard Bliss & the Barbecue Porch of Dreams
Alright, let’s step outside—because if the inside of this house is a Pinterest board come to life, the backyard is where it throws a party.
Let’s start with the barbecue porch. It’s not just a slab of concrete with a grill. Oh no, this is a full-on outdoor living experience.
Covered for shade, spacious enough for lounge seating, and perfectly positioned to keep an eye on the kids , it’s like your favorite vacation spot moved into your backyard.
This porch has “investment” written all over it—not just for resale value, but also in terms of quality of life.
You can host birthday parties, family dinners, or lazy Saturday cookouts without stepping foot off your property.
I even know someone who installed the best home security system just to keep the neighborhood from crashing their barbecue. True story.
Corner Lot Friendly Equal Instant Curb Appeal
Now, let’s talk about how this house fits on the land—because not every lot is a perfect rectangle. This plan is designed with a side-load garage, making it ideal for a corner lot.
Not only does this add a sleek architectural line to the front of your home, but it also boosts your curb appeal, which in turn boosts—say it with me—your property value.
And for the DIY enthusiasts out there, using a building cost estimator before purchase can help you price out materials, upgrades, and fancy garage door hardware .

Just make sure to factor in potential home improvement loans if you’re planning to go all-out with upgrades from the get-go.
The Smartest Farmhouse on the Block
In this tech-forward world, even farmhouse charm has gone digital. This home plan accommodates smart home technology like a pro.
You’ve got plenty of outlets, strategic Wi-Fi-friendly layouts, and room to integrate thermostats, lighting, and security systems.
Whether you’re asking Alexa to play your cooking playlist or using an app to control your sprinklers, your home’s IQ just went through the roof.
Not to mention, integrating these modern touches can increase your home’s desirability and appraised value. It’s not just about convenience—it’s about making an investment that’s future-proof.
And yes, when you talk to your real estate agent, be sure to mention the smart features.
That kind of detail can bump your listing from “nice” to “we need to buy this now.”
So here we are, 2,000 words deep into farmhouse fantasy land, and honestly? I’m still swooning.

This house plan delivers on charm, practicality, and long-term benefits in a way that’s hard to beat.
It’s the kind of place where you can chase toddlers, host dinner parties, age in place, or even retire to with your dog and a wine fridge.
It’s smart, stylish, secure, and full of features that support both everyday life and long-term financial strategy.
From barbecue porches to barn doors, from interior design dreams to financial flexibility, this house is more than a home—it’s the definition of a modern lifestyle built right.
And whether you’re looking to buy, build, refinance, or invest, one thing’s for sure: this modern farmhouse isn’t just a house plan. It’s a plan for living well. 🏡
Designing your dream home? Make sure your financial and tech plans are just as solid as your layout. Review current mortgage rates, talk to a real estate agent, and stay on top of your credit score.
Don’t forget essentials like home insurance, warranty coverage, and future refinance options.
Boost your property value with additions like solar panels, smart home features, and energy-efficient appliances.
And when it’s time to visualize it all, let interior design software be your guide.








