4-Bedroom Two-Story Shingle House with Large Home Office with Fireplace (Floor Plan)

Specifications:
- 5,887 Sq Ft
- 4 Beds
- 4.5+ – 5.5+ Baths
- 2 Stories
- 4 Cars
Some house plans whisper, but this one speaks in a confident, welcoming tone: “Come on in, stay awhile — or forever.”
With 5,887 square feet of beautiful Shingle Style design, four bedrooms, a sweeping curved staircase, and a main floor home office so grand it has its own fireplace and deck, this plan is not just a blueprint — it’s a lifestyle.







A Commanding Curved Staircase for Grand Living
Walk through the front door and you’re instantly greeted by the home’s showpiece: a stunning curved staircase that reaches three levels of living space.
It’s the kind of staircase you see in movies — elegant, eye-catching, and setting the tone for the entire home.
This elegant touch hints at the thoughtfulness behind every corner of this plan.
Not only does this staircase make an unforgettable first impression, it’s a reminder of what you’re investing in.

With today’s mortgage rates and the importance of maintaining good credit, buying a home like this is more than a purchase — it’s a smart investment in comfort, value, and lifestyle.
A Vaulted Great Room Designed for Togetherness
At the heart of this plan is a vaulted and beamed great room that opens to the foyer, kitchen, and dining area.
Its spaciousness encourages family gatherings, movie nights, and holiday celebrations — all within view of the covered back patio.
Natural light streams through tall windows, adding warmth and highlighting the home’s timeless Shingle Style character.
TIP: As you plan your dream home, don’t overlook essentials like comparing mortgage rates, securing home insurance, and checking your credit score. Smart tools like interior design software can help you visualize the layout, while upgrades like solar panels, smart home systems, and energy-efficient appliances can boost both comfort and property value.

It’s a reminder that good design and practicality go hand in hand — and that a comfortable living space can boost your property value as much as your enjoyment of it.
And with smart home technology, adjusting the lights or checking your best home security system is just a tap away.
Who knew “home sweet home” could feel so high-tech?
A Kitchen and Dining Space Made for Real Life
This plan connects the kitchen and dining area directly to the great room, so conversations never skip a beat while dinner simmers.

You’re always part of the moment, whether you’re prepping a family meal or hosting a dinner party that spills onto the covered patio.
With today’s building cost estimator tools and interior design software, customizing this space to match your taste is easy.
And if you ever decide to refinance your mortgage or pull out a home equity loan for an upgrade, this kitchen and dining space is where you’ll see the returns.
Talk about good planning!

The Ultimate Main Floor Home Office
Let’s face it — working from home is here to stay.
That’s why this plan’s spacious, sunken home office is such a standout.
A beamed ceiling, cozy fireplace, and private deck give you a space that feels separate yet connected — a peaceful spot to focus, take calls, or sip coffee between emails.
It’s more than an office — it’s a personal headquarters.

Need to check your credit score?
Apply for a home improvement loan?
Chat with your real estate agent about the market?
You’ll do it here, surrounded by comfort and style.
And when the day’s done, step out onto your private deck and remind yourself why you bought this home in the first place.

Bedrooms That Make Every Night Feel Like Vacation
Upstairs, this Shingle Style plan gets even better.
Four spacious bedrooms each have walk-in closets and private bathrooms — so everyone gets a suite of their own.
No waiting for the shower.
No fighting over storage.

It’s civilized living at its best.
The master suite is a retreat within your retreat, with a circular sitting area perfect for morning coffee or winding down at night.
And the walk-in closet?
It’s massive — bigger than some bedrooms in other homes.
That means extra space for everything from seasonal wardrobes to hidden holiday gifts.

One of my favorite details is the curved window wall in the front-facing bedroom.
A built-in window seat framed by shelves makes this space feel cozy and custom — like a reading nook straight out of a magazine.
A layout like this is why it’s smart to get your home loan pre-approval lined up early — when you see this plan, you won’t want to wait.
A Playroom With Shelving for Days
If you have kids (or plan to), the upstairs playroom is a total win.

Shelves line three walls, giving you built-in storage for toys, books, art supplies — you name it.
No more stepping on stray action figures or LEGO pieces at midnight.
And when the kids outgrow the playroom?
It’s ready to evolve into a study area, craft room, or second lounge.
A flexible space like this adds value and saves money on future remodels.

Pair that with a reliable home warranty and the best home insurance, and you’ve got peace of mind built right in.
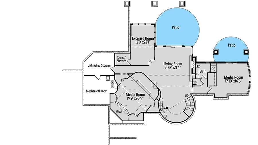
An Optional Lower Level That’s Next-Level
Just when you think this plan has it all, there’s an optional finished lower level that transforms this house into an everyday resort.
Imagine two media rooms — one with a stage for movie nights, karaoke, or family performances.
There’s also a dedicated exercise room and a sauna for winding down after a workout.

A lower level like this means no more gym memberships or weekend spa splurges — your personal wellness retreat is just downstairs.
With smart financing, like a home equity loan or refinancing your mortgage, it’s easy to bring this bonus level to life.
And it’s an investment that adds real value for resale down the line.
Covered Patio and Outdoor Living
This Shingle Style plan blends indoor and outdoor living beautifully.

The great room and dining area flow directly to a covered back patio — the perfect place to fire up the grill, unwind with friends, or just enjoy your morning coffee in the fresh air.
Adding features like outdoor lighting, built-in seating, or a smart home security system to keep everything safe is easy when you’ve got a plan this well thought out.
Little touches like these turn your backyard into a year-round haven.
Built for Today and Tomorrow
Building a home this grand isn’t just about square footage — it’s about smart choices that protect your investment.

From using a building cost estimator to planning your budget, to finding the right home remodeling contractor for finishing touches, every step adds value.
And when it’s time to buy, your credit score, mortgage rates, and home loan pre-approval matter just as much as the finishes you choose.
A Shingle Style home this spacious is more than a purchase — it’s your family’s next big investment.
This Grand Shingle Style House Plan isn’t just another floor plan — it’s the kind of home that makes every day feel a little bit more special.

Whether you’re curled up in the master suite, working by the office fireplace, watching a movie downstairs, or grilling on the patio — you’re living your best life.
So, if you’re ready to buy, talk to your real estate agent, check those mortgage rates, and get that home loan pre-approval ready.
This is the kind of home that makes you excited to invest, build, and live — exactly as you’ve always dreamed.
Designing your dream home? Make sure your financial and tech plans are just as solid as your layout. Review current mortgage rates, talk to a real estate agent, and stay on top of your credit score.
Don’t forget essentials like home insurance, warranty coverage, and future refinance options.
Boost your property value with additions like solar panels, smart home features, and energy-efficient appliances.
And when it’s time to visualize it all, let interior design software be your guide.








