4-Bedroom Two-Story Contemporary Scandinavian House with Bonus Room (Floor Plan)

Specifications:
- 4,557 Sq Ft
- 4 Beds
- 4.5 Baths
- 2 Stories
- 3 Cars
The first time I explored this Contemporary Scandinavian house plan, I was hooked.
With 4,557 square feet, four bedrooms, 4.5 bathrooms, and a three-car side-entry garage, it’s spacious but still feels cozy.
The floor plan perfectly balances open living spaces, private retreats, and flexible areas, making it ideal for families, entertaining, or simply relaxing.
The optional bonus room adds even more possibilities for customization.


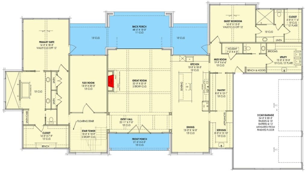
Welcoming Entryway
Walking into the home, the entryway immediately catches your eye with its impressive 10-foot ceiling.
I love how it opens up into the two-story great room, creating a sense of airiness and grandeur.
This layout allows for smooth traffic flow throughout the main level and sets the tone for the rest of the home.
Visualizing furniture placement and decor here is easy with interior design software, and it’s also a feature that boosts property value for potential buyers or future investment.
Two-Story Great Room
The great room is the heart of the home, with soaring ceilings and large windows that bring in natural light.
It’s perfect for entertaining, relaxing, or simply enjoying the open space.
TIP: As you plan your dream home, don’t overlook essentials like comparing mortgage rates, securing home insurance, and checking your credit score. Smart tools like interior design software can help you visualize the layout, while upgrades like solar panels, smart home systems, and energy-efficient appliances can boost both comfort and property value.
I can easily picture cozy evenings here with a home warranty in place for added peace of mind, knowing that the space is protected.
Smart home technology can control lighting and climate here, making this central hub both stylish and functional.
Kitchen with Butler Walk-In Pantry
The kitchen flows seamlessly from the great room and is designed for both family meals and larger gatherings.
The butler walk-in pantry is ideal for storing essentials, gourmet ingredients, or even small appliances, keeping the main kitchen area clean and organized.
This kitchen is also a prime spot for smart home technology integration, from automated lighting to appliance controls.
Planning a remodel here could be a great use of a home improvement loan or home equity loan to maximize both comfort and property value.
Formal Dining Room
Adjacent to the kitchen, the formal dining room is perfect for special occasions.
The layout ensures that guests feel connected to the main living areas while maintaining its own space.
For anyone looking to purchase a home, having a dedicated dining area adds both functionality and elegance, which can positively affect property value.
Even small updates like lighting or furniture placement using interior design software can enhance the room’s appeal.
Main-Level Primary Suite
The primary suite on the main floor is a true retreat.

Vaulted ceilings, a spacious layout, and a luxurious bath create a private sanctuary.
I love how the suite is tucked away from the guest bedrooms, offering maximum privacy.
Installing a best home security system or using home insurance coverage here can protect your investment, while a home remodeling contractor can help customize the space for ultimate comfort.
This layout is a feature that adds significant long-term value to the home.
Guest Suite
The first-floor guest suite ensures visitors have a comfortable, private space.
It’s close to a full bathroom, making it ideal for friends or family who stay overnight.
The suite’s location on the floor plan highlights thoughtful separation from the main living areas, enhancing both privacy and flow.
For those thinking about buying or purchasing, the guest suite adds versatility that can appeal to future buyers, making it a smart property investment.
Flex Room
The flex room is one of my favorite features because it adapts to nearly any need.
Whether it’s a home office, hobby area, or additional living space, the room allows homeowners to adjust as their needs change.
Integrating smart home technology here is easy, whether for climate control, lighting, or even remote working setups.
Planning improvements with a home improvement loan or discussing options with a home remodeling contractor can make this room truly personalized.
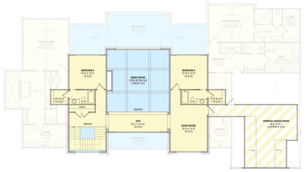
Game/Rec Room
The upstairs game or rec room provides a dedicated area for entertainment.
I can imagine family game nights, movie marathons, or a quiet retreat for kids.
The space complements the main living areas while keeping active play or media separate, which is especially useful when hosting guests.
Optional upgrades here could be funded with a home equity loan, helping enhance the room’s functionality and appeal.
Optional Bonus Room
One of the most exciting features is the optional 440-square-foot bonus room.
This versatile space can be transformed into a home theater, extra guest suite, gym, or hobby room.
Its placement on the floor plan allows for flexible use without disrupting the flow of the home.
Using interior design software, you can experiment with furniture, lighting, and décor, while a home remodeling contractor can help make the vision a reality.

The bonus room also adds value, making it a smart long-term investment.
Front and Rear Porches
The combined 710 square feet of front and rear porches extend the living space outdoors.
Whether it’s morning coffee, casual dining, or evening relaxation, these areas are perfectly integrated into the floor plan.
Smart home technology can automate porch lighting, while a best home security system ensures safety.
Outdoor living areas like these also contribute to property value and make the home feel connected to nature.
Three-Car Side-Entry Garage
The three-car garage provides ample space for vehicles, storage, and hobbies, while maintaining the home’s clean exterior design.
Its side-entry placement enhances curb appeal and complements the overall floor plan, making it both functional and visually appealing.
For anyone considering a home purchase, garage space is a key feature that adds practicality and long-term property value.
Layout and Flow
What makes this Scandinavian floor plan truly impressive is its thoughtful flow.
The main living areas, primary suite, guest suite, and flex spaces are all strategically positioned for convenience and privacy.
Even the upstairs bonus and game rooms feel connected without intruding on the main living areas.
Considering mortgage rates, home loan pre-approval, and potential refinance mortgage options can help ensure that investing in this home aligns with both lifestyle and financial goals.
This Contemporary Scandinavian house plan is a perfect example of how floor plan design enhances everyday living.
With four bedrooms, 4.5 bathrooms, a bonus room, guest suite, and three-car garage, it balances style, function, and flexibility.
Every space, from the vaulted entryway to the expansive porches, is thoughtfully designed to make life easier and more enjoyable.
For those looking to buy or purchase a home, the floor plan’s smart design, combined with features like smart home technology, home insurance, home warranties, and flexible spaces, ensures comfort and long-term value.

Optional upgrades like a bonus room or personalized interiors via a home remodeling contractor make this home adaptable to your lifestyle.
Even financing options, including home improvement loans or home equity loans, can help maximize the potential of this space.
This house plan isn’t just about the size or style—it’s about how each space works together, providing an investment in both lifestyle and property value.
The combination of open living areas, private retreats, and flexible bonus spaces makes this Scandinavian home a dream for modern living.
Designing your dream home? Make sure your financial and tech plans are just as solid as your layout. Review current mortgage rates, talk to a real estate agent, and stay on top of your credit score.
Don’t forget essentials like home insurance, warranty coverage, and future refinance options.
Boost your property value with additions like solar panels, smart home features, and energy-efficient appliances.
And when it’s time to visualize it all, let interior design software be your guide.








