4-Bedroom One-Story French Country House with Bonus Expansion (Floor Plan)

Specifications:
- 4,270 Sq Ft
- 4 Beds
- 4.5 Baths
- 1 Stories
- 4 Cars
If you’ve ever dreamed of owning a home that combines refined elegance with everyday comfort, this French Country-style house plan is about to make your heart skip a beat.
With 4,270 square feet of beautifully crafted space, four spacious bedrooms, 4.5 baths, and an angled 4-car garage, this home offers a timeless design that’s as livable as it is luxurious.
Let’s take a full tour of what makes this one-story plan so exceptional.



Classic French Country Architecture with Unmatched Curb Appeal
This home’s charming French Country exterior sets the tone before you even step inside.

The small covered front porch provides a warm, welcoming touch—perfect for seasonal décor or a couple of cozy chairs.

The combination of traditional rooflines, subtle stone detailing, and the large, angled 4-car garage gives the facade a sense of elegance that never feels overdone.

It’s a home that not only feels prestigious but one that enhances the property value of your lot from the moment it’s built.

Plus, its aesthetic appeal adds a layer of investment security, especially important when considering the future resale market or applying for a home equity loan down the road.

Expansive Great Room with Elegant Features
At the heart of this home is a great room that lives up to its name.

A raised ceiling instantly elevates the space—both literally and stylistically—while the fireplace, flanked by custom bookcases, adds warmth and sophistication.
TIP: As you plan your dream home, don’t overlook essentials like comparing mortgage rates, securing home insurance, and checking your credit score. Smart tools like interior design software can help you visualize the layout, while upgrades like solar panels, smart home systems, and energy-efficient appliances can boost both comfort and property value.

Whether it’s family movie night or a quiet evening by the fire, this room is the central gathering point, designed to handle it all.

Natural light floods the space and flows right into the covered rear patio through oversized windows and doors.

Entertaining here is effortless, and with features like smart home technology, you can create the perfect atmosphere with the touch of a button.

Kitchen Designed for Everyday Living and Entertaining
A great kitchen does more than look good—it makes life easier.

This one features a generous central island that anchors the room and provides plenty of workspace for everything from holiday feasts to after-school snacks.

The kitchen flows effortlessly into the breakfast room and overlooks the family room, creating an open-concept layout that supports both functionality and connection.

With the butler’s pantry leading to the formal dining room, this layout ensures you’re always prepared for gatherings—planned or spontaneous.

Whether you’re using this space daily or envisioning future upgrades using home improvement loans, this kitchen is built for long-term use and timeless style.

Cozy Breakfast Room with Access to a Private Patio
Just off the kitchen is the breakfast room, a bright and cheerful space that invites you to start your day right.

And here’s the bonus—it has its very own covered patio!
Morning coffee, weekend brunch, or casual evening dinners all feel extra special when enjoyed in a semi-private outdoor nook.

Having multiple patios increases your outdoor living options while also enhancing your home’s footprint—great news for home insurance coverage assessments and future upgrades planned with a home remodeling contractor.

Master Suite Retreat with Private Outdoor Access
The master suite is where this home’s luxury truly shines.

With a raised ceiling and ample space for a sitting area, this bedroom feels more like a private retreat than just another room.

Patio access lets you enjoy peaceful outdoor mornings or quiet nighttime stargazing without leaving the comfort of your suite.

Dual walk-in closets eliminate the usual battle for closet space, and the large ensuite bathroom offers the kind of spa-like experience that turns everyday routines into moments of calm.

When you’re planning to buy a home for the long haul, this master suite ticks all the boxes.

Private Study with French Doors Off the Foyer
Ideal for remote work, study sessions, or even a home library, the private study located near the foyer comes with beautiful French doors that offer both openness and privacy.

With the rise of hybrid work and home-based businesses, having a space like this is more than a luxury—it’s a necessity.

This study makes excellent use of square footage and could be a deciding factor when securing a home loan pre-approval, especially for those emphasizing a home’s functionality in today’s competitive market.

Spacious Secondary Bedrooms for Family or Guests
This home includes three secondary bedrooms thoughtfully distributed across the floor plan.

One bedroom is located near the master suite—perfect for a nursery or guest room—while the other two sit on the opposite side of the home, each with access to its own bathroom.

This creates a balance of closeness and privacy for families, multi-generational living, or visiting friends.

With modern finishes and space to grow, these rooms also contribute to a well-rounded home evaluation when working with a real estate agent or assessing options for a refinance mortgage in the future.

Cathedral-Ceilinged Family Room with Fireplace
Adjacent to the kitchen is another standout space: the family room.

The cathedral ceiling adds vertical space that makes the room feel expansive and open, while the second fireplace adds character and warmth.

Whether you use it as a more casual lounge or a formal sitting area, the family room is flexible and stylish.

A space like this could also be the perfect backdrop for experimenting with new layouts using interior design software, especially if you love refreshing your interiors seasonally.

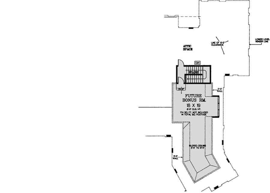
Bonus Room Above the Garage for Customization
One of the smartest features in this house plan is the 774 sq. ft. bonus room above the garage.

This area offers the freedom to expand as needed—whether that means creating a home gym, guest suite, art studio, or even a media room.

This space provides real value, especially when using a building cost estimator to weigh options.

It adds usable square footage without complicating the single-story layout and gives your home the ability to grow with your lifestyle.

Four-Car Angled Garage for Maximum Utility
The angled 4-car garage does more than accommodate your vehicles—it offers space for hobbies, storage, and more.

It’s ideal for car enthusiasts, families with multiple drivers, or anyone who dreams of a built-in workshop.

Add in a best home security system, and you’ve got the kind of secure and functional garage that boosts both practicality and peace of mind.

For those with plans to purchase luxury vehicles or store recreational gear, this garage answers the call.

A One-Story Layout That Prioritizes Comfort
The beauty of a one-story home lies in its simplicity and accessibility.

This French Country-style plan eliminates the need to climb stairs while maintaining architectural elegance throughout.

Every room feels connected, and the thoughtful flow between living areas makes it easier to enjoy every inch of the 4,270 square feet.

Plus, if you’re monitoring mortgage rates or checking your credit score before buying, knowing that this home is designed for long-term livability only strengthens your case for smart homeownership.

This home isn’t just about square footage—it’s about creating a space that supports every chapter of your life.
From the elegant master suite and open-concept kitchen to the bonus room above the garage and flexible bedroom layouts, every detail serves a purpose.
Whether you’re securing financing, protecting your home with a home warranty, or planning your next big upgrade, this house plan offers the ideal foundation.
It’s not just where you live—it’s where you grow, entertain, relax, and invest in the life you’ve always wanted.
Designing your dream home? Make sure your financial and tech plans are just as solid as your layout. Review current mortgage rates, talk to a real estate agent, and stay on top of your credit score.
Don’t forget essentials like home insurance, warranty coverage, and future refinance options.
Boost your property value with additions like solar panels, smart home features, and energy-efficient appliances.
And when it’s time to visualize it all, let interior design software be your guide.








