4-Bedroom One-Story Contemporary Modern House with Home Office (Floor Plan)

Specifications:
- 3,167 Sq Ft
- 3 – 4 Beds
- 3.5 Baths
- 1 Stories
- 2 Cars
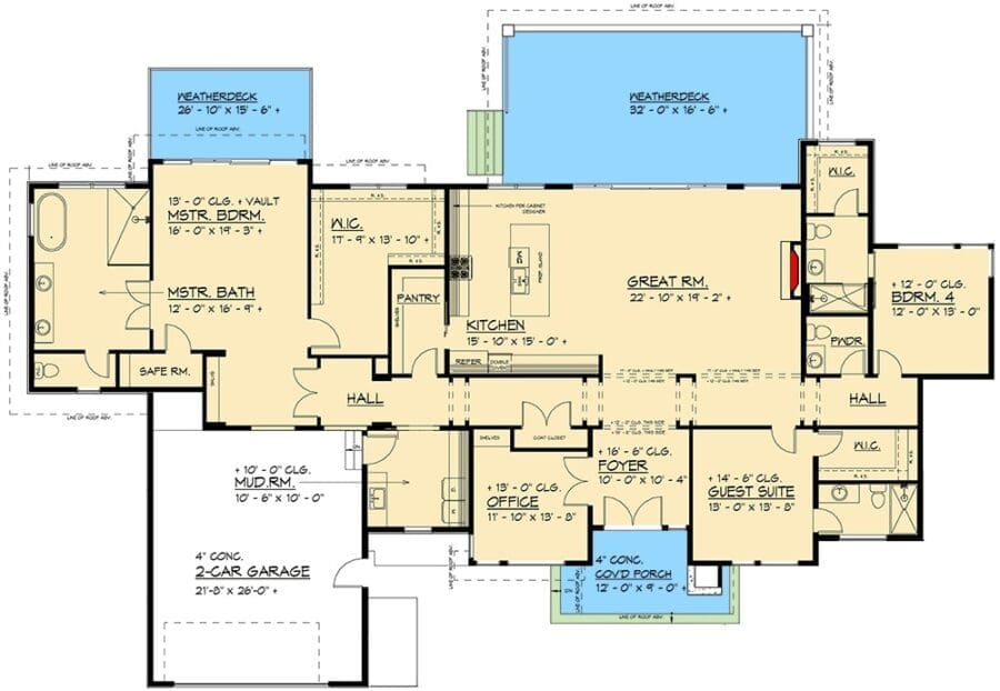
If you’ve ever walked into a house and instantly thought, “Yep, this is the one,” get ready to feel that again—except this time, it’s a floor plan doing the talking.
This 3,167 square foot one-story contemporary home isn’t just another drawing on paper.
It’s a beautifully laid-out living space that balances elegance, comfort, and function so well, you might start calculating your credit score halfway through this article.
With 3 to 4 bedrooms, 3.5 bathrooms, and more thoughtful touches than you can count, this home layout delivers everything today’s buyer could want, and then some.

A Welcoming Entry That Opens Up Possibility
The charm begins the moment you step onto the front covered porch, which sets the tone with clean symmetry and plenty of space to style it up with planters or porch swings.
Once you step through the front door, the foyer greets you with volume—literally.
The high ceilings and open view toward the main living area create a sense of arrival that feels polished yet homey.
To the left of the entryway is a quiet office space, perfectly situated for those who work from home, manage a household, or simply like a place to escape with a good book.
With built-in shelving and its location away from the main living zones, this office gives you the privacy you need to manage your day—or to search for the best home security system during your lunch break.
An Open Great Room That Defines Everyday Luxury
As you move through the foyer, your eyes are immediately drawn to the massive great room.
TIP: As you plan your dream home, don’t overlook essentials like comparing mortgage rates, securing home insurance, and checking your credit score. Smart tools like interior design software can help you visualize the layout, while upgrades like solar panels, smart home systems, and energy-efficient appliances can boost both comfort and property value.
This isn’t just a place to toss your keys and crash on the couch.
It’s a beautifully proportioned living space designed for gatherings, cozy nights in, and everything in between.
The open connection between the great room, kitchen, and dining area makes this layout incredibly functional and social.
It feels like the kind of place where memories will be made—Sunday dinners, birthday parties, and the occasional “let’s refinance our mortgage” conversation.
The great room also has large windows overlooking the rear weatherdeck, which floods the room with natural light and provides a gorgeous view of the backyard.
It’s not just aesthetically pleasing—it adds to your property value, too.
The strategic positioning of this space means you’re never far from the action, whether you’re cooking in the kitchen or stepping outside for a breath of fresh air.
A Kitchen Designed to Support Real Life
Let’s talk about this kitchen.
With an impressive footprint and a central island that could double as a hangout spot, buffet station, or homework hub, this kitchen is built for busy days and big weekends alike.
There’s more than enough counter space to prep, serve, and style your meals like you’re a contestant on a cooking show—even if dinner is just spaghetti again.
The walk-in pantry is tucked away neatly and offers plenty of storage for snacks, ingredients, and emergency chocolate.
Better yet, the kitchen layout flows directly into the great room, allowing you to cook while staying part of the conversation.
It’s the kind of everyday luxury that makes you pause and think, “Yes, I could live here. I should live here. Should I apply for a home equity loan?”
Tempting, right?
A Master Suite That Brings Peace and Privacy
Now let’s wander over to the left wing of the house, where the master suite waits like a private retreat.
This room doesn’t just offer space—it offers serenity.
The vaulted ceiling adds vertical drama, while the oversized layout provides ample room for a king-sized bed, seating area, or even a treadmill you’ll use once and then drape with laundry.
Connected to the bedroom is a spacious master bath that could pass for a boutique spa.
A soaking tub, separate shower, and dual vanities make this space both beautiful and practical.
And then there’s the walk-in closet—it’s massive, which means fewer fights over hanger space and more room for impulse buys.
Plus, there’s even a built-in safe room.

Whether you use it for storing important documents, jewelry, or rare action figures, it’s a thoughtful addition that blends security and function.
Guest and Family Bedrooms That Offer Flexibility
On the opposite end of the house, you’ll find a layout that works wonders for families, guests, or long-term visitors.
A dedicated guest suite includes a private bath and walk-in closet, making it feel like its own little apartment within the home.
It’s perfect for when the in-laws visit—or when you want to keep your real estate agent extra happy during walkthroughs.
Two additional bedrooms, located near a shared full bath and convenient powder room, round out the sleeping spaces.
These rooms are generously sized and can easily flex as a nursery, hobby room, or even a home gym if you’re not using all four bedrooms.
This level of flexibility is part of what makes this plan such a smart buy.
If you’re planning ahead for family changes or considering your home as a future investment, having a design that adapts with you is key.
A Garage and Mudroom That Simplify Life
Let’s take a quick trip to the garage, because yes, even the 2-car garage here deserves a little love.
With 618 square feet of space, there’s room for two vehicles, tools, and all the odds and ends that make suburban life function.
You might even squeeze in a few storage shelves or finally unbox those holiday decorations you forgot about.
Right off the garage is a spacious mudroom with its own exterior door, creating the perfect drop zone for coats, shoes, backpacks, and sports gear.
This area flows directly into the kitchen, making grocery hauls and school mornings significantly less chaotic.
It’s small touches like this that make a big difference—and may even save your floors from muddy disasters.
A thoughtful floor plan like this could make a compelling case when applying for a home improvement loan or comparing building cost estimators.
Dual Weatherdecks That Extend Your Living Outdoors
One of the most exciting features of this home isn’t even inside—it’s the dual weatherdecks that stretch across the back of the house.
Off the master suite, you’ll find a private deck ideal for morning yoga, coffee, or simply enjoying the quiet of early mornings.
The larger deck, connected to the great room, offers ample space for outdoor dining, grilling, and even a few potted plants if you’re feeling green-thumbed.
Outdoor living is one of the top ways to boost your home’s appeal, whether you’re enjoying it yourself or planning to sell down the line.
And with enough square footage to entertain a crowd or just kick back with a glass of wine, this setup brings both lifestyle and value to your home.
A Floor Plan That Works As Hard As You Do
One of the best things about this layout is how easily it flows.
You don’t need to be an expert in interior design software to appreciate how efficiently the rooms connect and support your everyday routine.
It’s the kind of home where everything has its place, from storage solutions to entertaining spaces, making it ideal for busy lives and big dreams.
The single-level design is great for accessibility, and the way each space opens into the next makes the home feel even larger than its 3,167 square feet.
Whether you’re exploring your options with a home loan pre-approval, looking for a solid property to invest in, or simply ready to buy something truly special, this home has the layout, the location, and the long-term livability to back up your decision.
When you factor in everything this floor plan offers—the space, the function, the seamless design—you start to realize this isn’t just a house.
It’s a home built for living well.

From the smart use of square footage to the practical positioning of every room, this layout is the perfect foundation for your future.
And while you’re keeping an eye on mortgage rates or talking to a remodeling contractor about possible upgrades, just know that this home already checks off more boxes than most.
Whether you’re planning to live here forever or simply looking for your next investment, this plan offers style, security, and serious staying power.
Let the house hunting end here—because you may have just found “the one.”
Designing your dream home? Make sure your financial and tech plans are just as solid as your layout. Review current mortgage rates, talk to a real estate agent, and stay on top of your credit score.
Don’t forget essentials like home insurance, warranty coverage, and future refinance options.
Boost your property value with additions like solar panels, smart home features, and energy-efficient appliances.
And when it’s time to visualize it all, let interior design software be your guide.








