4-Bedroom Dual-Story House with Two Story Great Room (Floor Plan)

Specifications:
- 4,225 Sq Ft
- 4 Beds
- 3.5 Baths
- 2 Stories
- 4 Cars
Some homes are designed to be lived in, and others feel like they’re designed for living well.
This 4,225-square-foot, two-story, four-bedroom plan is the kind that checks both boxes.
From the welcoming front porch to the vaulted outdoor living space, every detail is about combining practicality with comfort.
Let’s take a closer look, room by room, to see what makes this house stand out.


Entryway and Foyer with Dining and Study
The first thing you’ll notice stepping through the front porch is how the foyer sets a balanced tone.
To the left, a formal dining room is ready for everything from weeknight pasta to Thanksgiving dinner.
To the right, a study provides privacy and focus, whether for working from home, paying bills, or simply enjoying a quiet reading nook.
This front-of-house design is both welcoming and functional.
If you’re already thinking about home loan pre-approval or mortgage rates, this is one of those spaces that adds immediate appeal for both living and future property value.
And if you’re planning to purchase with an eye on investment, the elegant symmetry here gives the home lasting charm.
TIP: As you plan your dream home, don’t overlook essentials like comparing mortgage rates, securing home insurance, and checking your credit score. Smart tools like interior design software can help you visualize the layout, while upgrades like solar panels, smart home systems, and energy-efficient appliances can boost both comfort and property value.
Central Gathering in the Great Room
Continue through the foyer, and the great room greets you with soaring two-story ceilings.
Natural light fills the space, while the fireplace adds warmth and atmosphere.
The great room isn’t just large—it’s memorable, the kind of space where celebrations, movie nights, and even quiet mornings feel extra special.
The open connection to the loft above keeps the upstairs and downstairs visually linked.
Families appreciate this feature for togetherness, and real estate agents often highlight such a design when showing potential buyers because it creates both drama and comfort.
Homes with central living spaces like this often hold stronger investment value, which can pay off later if you decide to refinance your mortgage or tap into a home equity loan for upgrades.
Kitchen with Double Pantries
To the left of the great room, the kitchen becomes the heart of the home.
At its center is an island that comfortably seats up to five—perfect for casual meals, after-school homework, or just gathering with friends.
But what really sets this kitchen apart is the pantry setup.
The first pantry handles day-to-day storage, while the hidden secondary pantry offers direct access to the outdoor grill and vaulted porch.
This smart design makes entertaining effortless, and it keeps clutter neatly tucked away.
Planning upgrades?
A space like this is ideal for experimenting with interior design software or even calling in a home remodeling contractor.
And if you’re using home improvement loans down the line, the kitchen is always a wise place to invest.
Vaulted Porch and Outdoor Connection
Beyond the kitchen, the vaulted porch provides a seamless extension of indoor living.
With its height and open-air design, it’s perfect for dining outdoors or simply enjoying a relaxing evening.
The direct connection to the hidden pantry makes it easy to move food and supplies outside without crossing the entire kitchen.
Outdoor living areas like this don’t just add convenience—they add measurable property value.
Many homeowners even install smart home technology outdoors for lighting or entertainment, which pairs perfectly with the best home security system to keep everything safe.
Mudroom and Laundry Solutions
Heading back inside, you’ll find the mudroom strategically located between the kitchen and the garages.
With two separate two-car garages, this mudroom becomes the natural landing zone for everything—coats, bags, shoes, and more.
Nearby is the laundry room, where the magic of this plan’s laundry chute comes into play.
From upstairs, clothes drop directly into the laundry area, saving time and keeping clutter out of sight.
Families especially love this feature—it turns a daily chore into something simple, and maybe even fun.
And because practicality matters, this part of the home benefits from smart planning when it comes to home insurance and even a solid home warranty, protecting both function and value.

Main-Level Master Suite
The master suite occupies the right wing of the first floor, giving it privacy and convenience.
It includes two large walk-in closets and a spacious ensuite bathroom.
Whether it’s winding down at night or rushing through a busy morning, this suite balances luxury and practicality.
Having the master on the main floor also makes sense for long-term living.
If you ever need to avoid stairs, this design has you covered.
For buyers thinking about investment potential, accessibility features like this often rank highly on lists of long-term benefits.
Pair it with a strong credit score and competitive mortgage rates, and you’ll have peace of mind both in lifestyle and finances.
Guest Bedroom with Nearby Bath
Also on the main level is a guest bedroom with its own adjacent bath.
It’s a thoughtful placement, giving visitors comfort and privacy without disturbing the flow of the rest of the house.
Whether you use it for family, friends, or even as a flex room for hobbies, this additional bedroom adds value.
And if you’re planning ahead for purchase as an investment, spaces like this expand the home’s versatility.
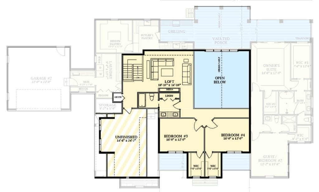
Upstairs Loft with Overlook
Climb the stairs, and the loft greets you with an open overlook into the great room.
This is one of those architectural details that makes the home feel expansive and connected.
It’s perfect for a small library, homework corner, or even a secondary lounge.
Loft spaces like this often inspire homeowners to bring in home remodeling contractors or use interior design software to create a unique look.
And with home equity loans or home improvement loans, it’s an easy space to customize over time.
Additional Bedrooms and Shared Bath
Two more bedrooms upstairs share a bathroom, making this level practical for kids or long-term guests.
The layout ensures everyone has their own corner while still keeping close to shared spaces.
It’s a floor plan that prioritizes family comfort.
If you’re working with a real estate agent, they’ll often emphasize how these kinds of layouts keep families connected while still offering privacy.
And for anyone focused on investment, additional bedrooms are always a plus when it comes to resale or rental opportunities.
Bonus Room for Flexible Living
Rounding out the upstairs is a large bonus room.
This space is truly flexible: it could become a playroom, gym, home theater, or office.
The beauty of a bonus room is that it changes with your needs—perfect for families planning to stay long term.
For homeowners thinking about financing projects, this is a space where a building cost estimator comes in handy.
And whether you fund improvements with a refinance mortgage or a small home improvement loan, this room has unlimited potential.
Altogether, this 4,225-square-foot plan offers thoughtful flow, useful details, and plenty of style.
From the dramatic two-story great room to the clever laundry chute, from the outdoor vaulted porch to the bonus room upstairs, every feature is designed to make daily life smoother and more enjoyable.
It’s also a smart choice for the future.
Whether you’re planning your first purchase, considering investment potential, or simply enjoying the day-to-day convenience of a well-planned home, this design adapts with you.
With the right home insurance, home warranty, and maybe even a little help from smart home technology, this house doesn’t just feel like a dream—it feels like a smart decision.
Designing your dream home? Make sure your financial and tech plans are just as solid as your layout. Review current mortgage rates, talk to a real estate agent, and stay on top of your credit score.
Don’t forget essentials like home insurance, warranty coverage, and future refinance options.
Boost your property value with additions like solar panels, smart home features, and energy-efficient appliances.
And when it’s time to visualize it all, let interior design software be your guide.








