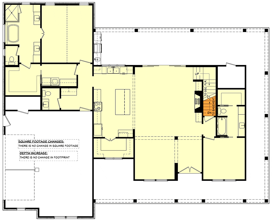
4-Bedroom 2-Story Modern Farmhouse with Optionally Finished Bonus Room (Floor Plan)

Specifications:
- 2,392 Sq Ft
- 4 Beds
- 3.5 Baths
- 2 Stories
- 2 Cars
Every once in a while, a house plan comes along that makes you say, “Yep, that’s the one.”
This 4-bedroom modern farmhouse with 3.5 baths and 2,392 square feet feels like it was designed for real living—not just magazine spreads.
Add in the option for a 268-square-foot bonus room, and suddenly you’ve got flexibility baked right into the design.
Let’s step inside and see why this plan is more than just walls and a roof—it’s a smart, long-term investment in comfort.



The Grand Entrance
When you step into this home, the two-story foyer greets you with a sense of openness that makes you pause.
The height creates an instant wow factor, and the natural light flowing in adds to that feeling of fresh beginnings.
It’s not just a pretty face, either.
A well-designed foyer has real influence on property value, which is great news whether you’re planning to stay long-term or eventually buy and sell for investment.
Imagine walking through this space with your real estate agent during the purchase—your credit score glowing after that hard-won home loan pre-approval—and knowing you’ve chosen well.
The Great Room with Fireplace
Just past the foyer, the great room stretches out with a cozy fireplace as the centerpiece.
TIP: As you plan your dream home, don’t overlook essentials like comparing mortgage rates, securing home insurance, and checking your credit score. Smart tools like interior design software can help you visualize the layout, while upgrades like solar panels, smart home systems, and energy-efficient appliances can boost both comfort and property value.
This isn’t just a spot for family photos—it’s the kind of room where stories are told, holidays are celebrated, and naps are unapologetically taken.
The open-concept layout means the kitchen is right there, making it easy to entertain or keep an eye on kids while dinner simmers.
From a financial angle, features like this are timeless, which helps protect your investment against fluctuating mortgage rates or future refinance mortgage scenarios.
A buyer down the road will love this space as much as you do.
The Kitchen and Walk-In Pantry
If the great room is the heart, the kitchen is command central.

The massive 4-foot by 7-foot island is perfect for baking sprees, group projects, or simply laying out takeout on a Friday night.
Behind it, an 11-foot by 5-foot 4-inch walk-in pantry solves the eternal “where do I put all this?” problem.
A kitchen like this can be customized endlessly.
With interior design software, you can play with layouts before making upgrades, and if you ever bring in a home remodeling contractor, you’ll see that this open plan is ideal for future improvements.
Want to add smart home technology, like app-controlled lighting or appliances?
Easy.
Even better, those upgrades can improve energy efficiency and long-term property value.
The Main Bedroom Suite with Vaulted Ceiling
On the first floor, the main suite is a retreat worth bragging about.
The vaulted ceiling climbs to 14 feet 7 inches at its peak, creating an airy feel that instantly relaxes you.
The bathroom is oversized, making mornings less chaotic and evenings more spa-like.
The walk-in closet isn’t just big—it’s connected directly to the laundry room.
This little design decision is pure genius, eliminating the dreaded “haul the hamper” routine.
It’s these practical details that not only make daily life easier but also add weight to your home warranty coverage and home insurance value.

A suite like this isn’t just a luxury; it’s a smart buy.
Upstairs Bedrooms with Plenty of Storage
Upstairs, you’ll find two additional bedrooms.
Each comes with its own walk-in closet, which means no one’s fighting over space.
They share a full bathroom, conveniently placed to minimize morning traffic jams.
What makes the upstairs shine, though, is the foyer overlook.
Instead of feeling boxed in, the second floor feels connected to the downstairs, maintaining that open, modern farmhouse character.
And with 9-foot ceilings, the rooms feel larger and more inviting than typical upstairs layouts.
If you’re looking at long-term flexibility—whether to refinance, use a home equity loan, or simply consider your purchase an investment—features like these make the house stand out in the market.
The Bonus Room That Changes Everything
Now, let’s talk about the 268-square-foot optional bonus room.
It’s basically the choose-your-own-adventure space of this floor plan.
Want a home office with smart home technology?
Done.
Need a gym with streaming workouts?
Easy.

How about a media room with the best home security system integrated for peace of mind?
Absolutely.
This room adds versatility that grows with you.
As families evolve or needs change, this space adapts.
From an investment standpoint, finishing the bonus room increases livable square footage, which means your property value could climb.
It’s the kind of option that pays dividends down the road—whether through resale or tapping into a home equity loan.
The Two-Car Garage
A good garage is like an unsung hero, and this one is no exception.
With space for two cars, it keeps vehicles protected and provides storage for everything else: tools, bikes, and holiday decorations.
For homeowners who buy with future improvements in mind, garages also open the door to creative uses like workshops.
Adding smart features here—like motion lighting or an app-controlled opener—can be part of a larger home improvement plan funded by home improvement loans.
Security-wise, connecting it with the best home security system makes sure this part of the house is as protected as the living spaces.

Laundry Access That Simplifies Life
It may not sound glamorous, but laundry access in this plan deserves applause.
The fact that the main suite’s closet connects directly to the laundry room is one of those details you’ll appreciate every single week.
It saves time, reduces clutter, and just makes sense.
A home remodeling contractor couldn’t design it better.
Even if you ever refinance mortgage for upgrades, this is one of those features you’d never want to change.
A Floor Plan Built for Today and Tomorrow
What ties this whole farmhouse together is how well it balances beauty and practicality.
The foyer sets the tone, the great room and kitchen create connection, the main suite brings luxury, and the upstairs with its bonus room ensures long-term flexibility.
And let’s not forget the practical side: with good home insurance, a solid home warranty, and thoughtful planning, this house is more than a purchase—it’s a smart investment.
Whether you’re protecting it with the best home security system, budgeting with a building cost estimator, or planning upgrades with home improvement loans, this farmhouse is ready for both today’s life and tomorrow’s goals.

At 2,392 square feet, with 4 bedrooms, 3.5 baths, and an optional bonus room, this modern farmhouse offers a blend of style, space, and smart design choices.
Every feature, from the soaring foyer to the laundry connection, has been planned with real families in mind.
So whether you’re ready to buy now, purchase as an investment, or simply dream about future possibilities, this plan has all the right ingredients.
With the flexibility to adapt, the comfort to enjoy daily, and the financial wisdom to hold long-term value, it’s the kind of home you’ll never regret walking into—especially when the fireplace is glowing and dinner’s waiting on that oversized kitchen island.
Designing your dream home? Make sure your financial and tech plans are just as solid as your layout. Review current mortgage rates, talk to a real estate agent, and stay on top of your credit score.
Don’t forget essentials like home insurance, warranty coverage, and future refinance options.
Boost your property value with additions like solar panels, smart home features, and energy-efficient appliances.
And when it’s time to visualize it all, let interior design software be your guide.








