4-Bedroom 2-Story Luxury Farmhouse With Loft, Bonus Space, and Courtyard Garage (Floor Plan)

- 5,260 sq. ft.
- 4 Beds
- 4.5 Bath
- 2 Stories
- 3 Cars
You know how some houses just feel like home the moment you lay eyes on them? This is one of those.
From its welcoming wraparound porch to its mountain-retreat vibes with stone, shakes, and siding, this modern farmhouse isn’t just a structure—it’s a statement.
It says, “Kick off your shoes, pour a cup of coffee (or wine—we don’t judge), and stay a while.”
With an open layout, split bedrooms, multiple office spaces, and enough walk-in closets to make a department store jealous, this home delivers on functionality, warmth, and a touch of luxury.
Let me walk you through it—just imagine we’re sipping iced tea on the back porch while we dream about building this beauty



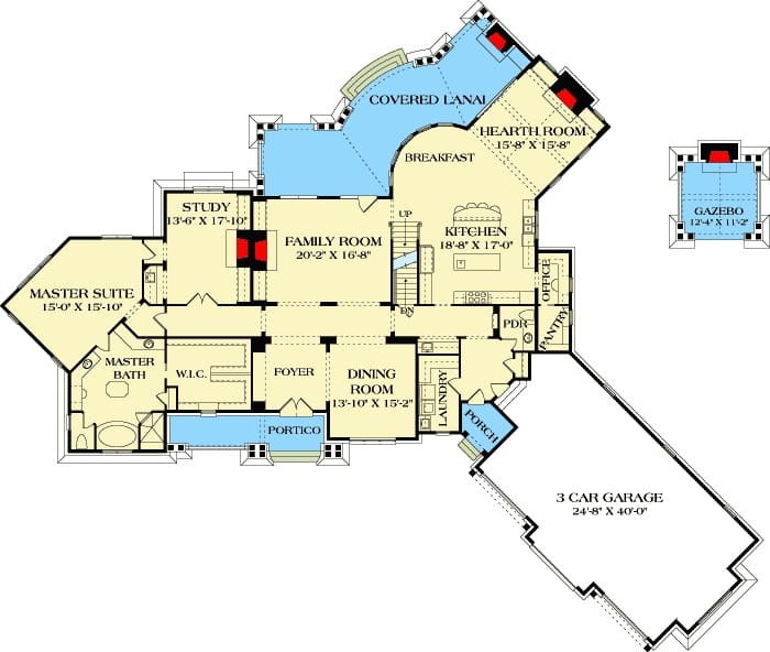
An Open Layout That Flows Like a Dream
Step inside, and boom—you’re hit with a feeling of space and light. It’s not magic, it’s design. The open-concept floor plan ensures that the kitchen, family room, and dining area blend together seamlessly.
If you’re like me and prefer shouting “dinner’s ready” from one room and actually being heard in another, you’ll love this setup.
The kitchen is the true heart of the home here. The island isn’t just for show—it’s got the sink, the prep area, and a view of the cozy family room fireplace.
Yes, you can sauté onions and watch the flames flicker without missing a beat.
The smart placement also means you can chat with guests without turning your back, a key element of modern smart home technology design.
And with walls of glass lining the back of the house, natural light pours in, spotlighting every inch of that gleaming island.
TIP: As you plan your dream home, don’t overlook essentials like comparing mortgage rates, securing home insurance, and checking your credit score. Smart tools like interior design software can help you visualize the layout, while upgrades like solar panels, smart home systems, and energy-efficient appliances can boost both comfort and property value.
Need a place to stash the Costco haul? No worries. There’s a walk-in pantry big enough to stockpile for the zombie apocalypse, plus a butler’s pantry for elegant storage and serving needs.
This kitchen has you covered whether you’re prepping pancakes or throwing a holiday bash.
Living That Indoor-Outdoor Dream
Let’s talk porches. Plural. Because one porch is never enough for a house like this. Off the back, you’ve got your ultimate outdoor living setup—space for lounging, grilling, even napping on a breezy day.
The dedicated barbecue porch means you can fire up the grill without smoking out the dinner guests or setting off the best home security system.
The family room, thanks to those floor-to-ceiling windows, connects visually with this space, giving you that wide-open mountain retreat feel.
Seriously, whether you’re buying this as your forever home or planning a smart investment, this level of indoor-outdoor harmony does wonders for your property value.
Master Suite Goals, Achieved
Now, let’s tiptoe into the master suite. We’re talking tray ceiling elegance, private porch access, and yes—his and hers walk-in closets so big, you could play hide-and-seek in them. The real kicker?
The suite connects to a quiet study that features built-ins, a fireplace, and even a wet bar. Whether you’re writing the next great novel or just trying to improve your credit score in peace, this space delivers solitude and style.
And if you’re the kind of person who enjoys a little planning ahead (hello, home loan pre-approval crew), know this: the master’s placement on the first floor is not only luxurious—it’s practical, making future aging-in-place considerations a breeze.
Split Bedrooms for Sanity’s Sake
Across the house, two additional bedrooms await. Each one boasts its own walk-in closet (yes, each), and thanks to the split-bedroom design, they’re separated from the master. That means privacy for you, independence for the kids or guests, and peace for everyone.
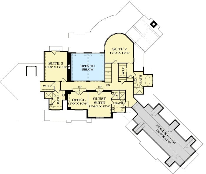
Need space for the in-laws, teens, or surprise guests who turn a weekend into a week-long visit? No problem. Upstairs offers another bedroom and a second office—perfect for remote work or homeschooling.
They’re raised a few steps above the main level, which adds both charm and separation. Every room here feels like a purchase you made intentionally, not a filler space you don’t know what to do with.
Functionality That Flexes
It’s the little touches that make a house truly livable. There’s a pocket office near the kitchen—tucked away but easily accessible for checking emails or paying bills.
There’s even a mudroom coming in from the side-load garage, so you can shed shoes and gear without trailing mess into the house.

And speaking of that garage: it’s perfect for a corner lot and hides your vehicles like a magician with a top hat.
Oh, and if you’re a serial renovator or dreamer of home improvement loans, the upstairs bonus room over the three-car garage is the blank canvas you’ve been craving.
Media room? Gym? Craft haven? You choose. A home remodeling contractor would have a field day with this space.
Upstairs: Where Creativity and Comfort Collide
Let’s climb the stairs (but not too many—it’s a manageable rise) to the upper level, where thoughtful elevation design adds both practicality and character. Here, you’ll find a second home office perched just a few steps above the main level.
If you work from home or run a side hustle (or need a quiet place to finally write that novel), this space gives you privacy without total disconnection from the heart of the house.
Just down the hall? A stylish and secluded guest bedroom with—drumroll—its own private bathroom and walk-in closet.
If your friends or in-laws have ever dropped hints about overstaying their welcome, this setup might be why. It’s the kind of space that makes guests feel like royalty… or like they should maybe start paying rent.
This level turns convenience into an art form. The bathrooms are laid out to avoid any awkward hallway dashes, and there’s enough room for your guests to settle in without feeling like they’re crashing your space. This level doesn’t just accommodate—it impresses.
The Bonus Room: Future Flexibility, Now
Tucked above the three-car garage is an enormous bonus room just waiting to fulfill your dreams. Need a home theater with surround sound and stadium seating? Done.
A game room with ping pong and a popcorn machine? Absolutely. Or maybe a gym with space for yoga, weights, and your “I swear I’ll use it this time” Peloton? You bet.
And here’s the beautiful part—because it’s optional, you can choose to finish it when you’re ready. Maybe that’s right after you purchase the home, or maybe it’s after a couple of years and a solid home equity loan.
Either way, this flexible space is your ace in the hole. It can evolve with your family, your hobbies, or even your business plans (because who wouldn’t want a dance studio or photography suite upstairs?).
A seasoned home remodeling contractor would likely suggest wiring it for the latest tech and maybe adding a half bath.
Either way, the sky’s the limit—and the property value boost that comes with a smartly finished bonus room? Chef’s kiss.
Budget Smart, Live Smarter
We all know mortgage rates can feel like a rollercoaster ride, but the great thing about this house is how much value is packed into every square foot.
Whether you’re running numbers through a building cost estimator or sitting down with your real estate agent to map out your home loan pre-approval, this plan makes financial sense.
And let’s talk protection. A home warranty is your new best friend—especially in a home with built-in appliances, multiple water heaters, and all the smart home technology your heart desires.
You’ll want coverage for those systems because even the sleekest setup can throw you a curveball when you least expect it.
Meanwhile, home insurance here is more than a checkbox—it’s a crucial layer of peace of mind. The layout’s fire-safe materials and up-to-code wiring should keep premiums manageable.
Plus, the inclusion of the best home security system—complete with remote surveillance and motion-activated lights—could score you a juicy discount.
Making the Move: Is This the One?
At this point, if your heart is racing a little—don’t worry. Mine is too. Because this house plan doesn’t just meet expectations; it crushes them with a smile and a firm handshake. You’ve got everything from family-first design and modern flair to tech-ready systems and financial sensibility.

Buying a home is more than a transaction—it’s an emotional, practical, and (let’s be honest) occasionally stressful journey. But when you find a home like this, it all becomes worth it.
Whether you’re on your first purchase, upgrading after a decade, or adding to your investment portfolio, this floor plan supports every phase of your journey.
And hey, even if your credit score isn’t perfect, the layout is. So that’s something, right?
Final Thoughts: A Forever Home with Options
In the end, what makes this modern farmhouse unforgettable isn’t just the aesthetic charm or clever features. It’s how livable it is.
Every room, every closet, every porch—it’s all designed to make life smoother, cozier, and better.
You’ll laugh here. You’ll host holidays here. You’ll watch kids grow up, dogs nap in sunbeams, and maybe even sneak away to that bonus room to binge your favorite show guilt-free.
So, whether you’re dreaming, planning, or signing the dotted line, keep this house in mind. It’s a little rustic, a little modern, and a whole lot of “welcome home.”
Now—who’s bringing the porch swing?
Designing your dream home? Make sure your financial and tech plans are just as solid as your layout. Review current mortgage rates, talk to a real estate agent, and stay on top of your credit score.
Don’t forget essentials like home insurance, warranty coverage, and future refinance options.
Boost your property value with additions like solar panels, smart home features, and energy-efficient appliances.
And when it’s time to visualize it all, let interior design software be your guide.








