4-Bedroom 2-Story European House with Pet Lodge (Floor Plan)

Specifications:
- 6,867 Sq Ft
- 4 Beds
- 4.5+ Baths
- 2 Stories
- 6 Cars
Some houses whisper elegance, but this one sings it.
With 6,867 square feet, 4 bedrooms, 4.5+ baths, two stories, and a garage that fits 6 cars, this luxury European house plan is everything you’d expect from a castle-inspired home.
Stone, turrets, arched windows—it’s all there.
And yet, beyond the grandeur, the floor plan delivers modern practicality, comfort, and even a special place for pets.






A Towering Foyer and Curved Staircase
Step through the front doors, and the 24-foot high foyer greets you with a sense of awe.
To the right, a curved staircase sweeps upward with a flourish, connecting the two levels in true storybook fashion.
Across from it, the circular formal dining room creates symmetry and adds drama to the entry.
This combination of soaring space and graceful design isn’t just a visual treat—it sets the tone for everything that follows.
It’s a foyer built to impress, but also to welcome, balancing majesty with warmth.
Dining in a Circle
The formal dining room deserves its own spotlight.
TIP: As you plan your dream home, don’t overlook essentials like comparing mortgage rates, securing home insurance, and checking your credit score. Smart tools like interior design software can help you visualize the layout, while upgrades like solar panels, smart home systems, and energy-efficient appliances can boost both comfort and property value.
Positioned right at the entrance, its circular layout makes every meal feel significant.
The design naturally brings people together, creating an atmosphere where conversations flow just as easily as the wine.
It’s not every day you find a dining room with this much presence.
Whether for holiday gatherings or quiet dinners, this room elevates the act of dining into something memorable.
Family Room Open to the Kitchen
Move past the foyer, and you find the heart of the home: a family room drenched in natural light.
Large windows open the space to outdoor views, while high ceilings make the room feel expansive yet cozy.
Just steps away, the gourmet kitchen blends seamlessly with the living area.
This open connection makes daily life flow smoothly.
Whether you’re preparing meals, hosting friends, or simply relaxing, the family room and kitchen create a central hub that feels both functional and inviting.
A Master Suite with Retreat Features
On the main level, the master suite becomes a sanctuary within the house.
The trey ceiling lends subtle elegance, while direct access to the outdoor lounge expands the suite into nature.
Morning routines here begin with fresh air and quiet surroundings.
Inside, the master bath continues the sense of retreat.
Five fixtures provide complete convenience, while dual closets ensure plenty of storage.
A safe room adds both practicality and reassurance, blending seamlessly into the luxurious layout.
Study with Spiral Staircase to the Library
A home of this caliber needs a study, and this one doesn’t disappoint.
Quietly positioned on the main floor, the study is more than just a workspace—it’s an architectural gem.
A spiral staircase leads directly to the upstairs library, creating a link between function and design.
The study balances privacy and inspiration.
Whether it’s used for work, reading, or creative pursuits, its connection to the library makes it one of the most unique and thoughtful features of the plan.
Main-Level Extras, Including the Pet Lodge
Alongside the master suite and study, the main level offers additional practical spaces: a second family bedroom, a large laundry room, and yes—the pet lodge.
This dedicated space for pets turns everyday care into an organized part of life.

Unlike homes where pets are squeezed into unused corners, this plan acknowledges them as family members.
The pet lodge provides a place that’s functional and comfortable, reminding us that true luxury includes everyone.
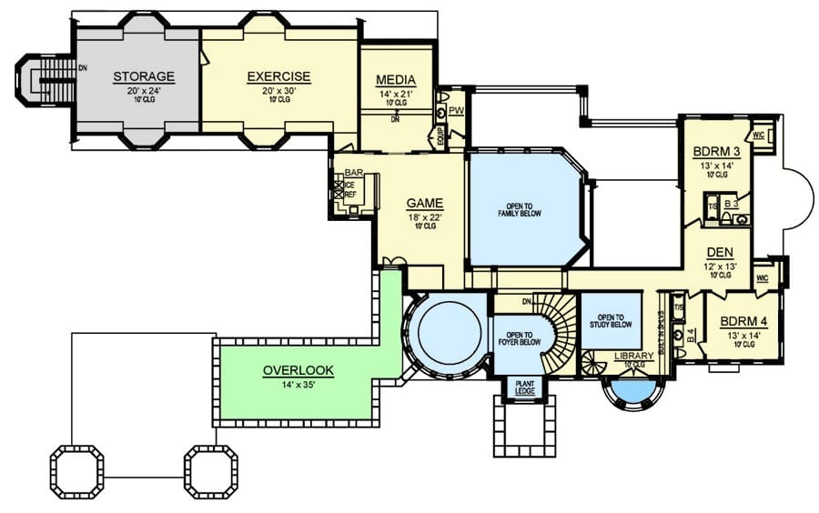
Upstairs Bedrooms with a Shared Den
The second level introduces two more bedroom suites, each with its own private bath.
Between them rests a den, offering a shared common space that brings balance to the upstairs.
The layout ensures privacy for each bedroom while keeping a central spot for gathering.
It’s perfect for children, guests, or long-term visitors, making the upstairs both flexible and welcoming.
Game Room, Media Room, and Exercise Space
Entertainment takes center stage upstairs as well.
A spacious game room, complete with a wet bar, creates the perfect setting for fun and gatherings.
Next door, a media room provides a cinematic retreat for movie nights.
Above the garage, an exercise room completes the upstairs offerings.
Fitness, leisure, and recreation are built directly into the home’s design, ensuring that relaxation and activity are always just steps away.
Six-Car Garage with Castle-Like Portico
Garages often go unnoticed in house plans, but not here.
With space for six cars, the design caters to large households or car enthusiasts.
The four-car garage connects with a double garage through a portico, making entry practical and elegant.
Above the portico, a lookout enhances the castle-like aesthetic.
It isn’t just a decorative flourish—it completes the European character of the home, giving it both personality and presence.
Outdoor Living Spaces
The connection to the outdoors is carefully considered in this plan.
The master suite, family room, and other spaces open directly to rear outdoor lounges, creating an easy flow between inside and outside.
These lounges expand living space and provide areas for both relaxation and entertaining.
They ensure that the grandeur of the home isn’t limited to the indoors but extends naturally into the open air.
A Floor Plan Designed for Lifestyle
Every corner of this home reflects the same philosophy: luxury should meet function.
The soaring foyer, circular dining room, pet lodge, spiral library staircase, and expansive garage all serve different purposes, but together they create a home that feels whole.
The floor plan doesn’t rely only on its size—it thrives on details.
Each feature is carefully placed, ensuring that the house isn’t just impressive to look at but also enjoyable to live in.
At 6,867 square feet, this Luxury European House Plan with Pet Lodge is a castle for modern living.

Its two stories contain four bedrooms, multiple entertainment spaces, a private master suite, a dedicated study, and a lodge for pets—all wrapped in stone, turrets, and arched windows that give it timeless character.
From the curved staircase in the foyer to the lookout above the portico, every feature of the design is intentional.
It balances elegance with practicality, grandeur with livability.
In the end, this isn’t just a home—it’s a carefully crafted lifestyle, one where every detail is meant to inspire and endure.
Designing your dream home? Make sure your financial and tech plans are just as solid as your layout. Review current mortgage rates, talk to a real estate agent, and stay on top of your credit score.
Don’t forget essentials like home insurance, warranty coverage, and future refinance options.
Boost your property value with additions like solar panels, smart home features, and energy-efficient appliances.
And when it’s time to visualize it all, let interior design software be your guide.








