4-Bedroom 2-Story Country House with Bonus Room (Floor Plan)

Specifications:
- 3,680 Sq Ft
- 4 Beds
- 4.5 Baths
- 2 Stories
- 2 Cars
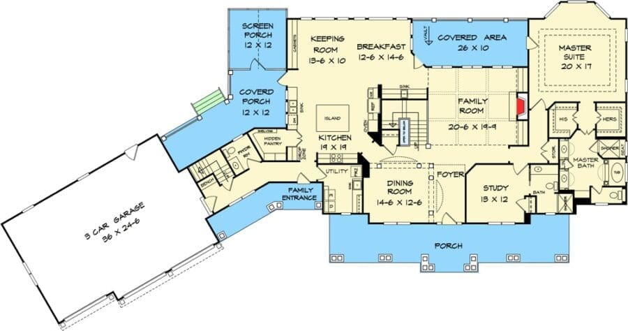
One of the first things you notice about this country house plan is the welcoming front porch.
It stretches across the front of the home, making the entrance feel inviting and warm.
I can already imagine rocking chairs, potted plants, and quiet mornings here.
The angled three-car garage sits to the side, keeping the porch visually prominent while providing practical access to vehicles.
This layout immediately signals balance and symmetry, showing how well the plan considers both aesthetics and daily function.


Entering Through the Foyer
Step inside, and the foyer opens up to a clear view through the family room to the rear covered porch.
The sightlines here make the house feel larger and more connected than its square footage alone would suggest.
To the left, the formal dining room is framed by stately columns, creating a subtle separation without closing off space.
It’s the kind of thoughtful design that makes moving from one room to the next feel effortless, while also enhancing the home’s overall flow.
The Family Room at the Heart
The family room sits at the center of this plan, making it the heart of the home.
TIP: As you plan your dream home, don’t overlook essentials like comparing mortgage rates, securing home insurance, and checking your credit score. Smart tools like interior design software can help you visualize the layout, while upgrades like solar panels, smart home systems, and energy-efficient appliances can boost both comfort and property value.
Anchored by a fireplace and flanked by built-ins, it’s designed for both comfort and function.
Windows along the rear wall flood the room with natural light, making it a perfect spot for everyday living or entertaining guests.
Its placement also allows easy access to the kitchen, dining room, and back porch, making it a highly connected space that anchors the home’s layout.
A Kitchen Designed for Life
The kitchen is positioned perfectly to serve both casual and formal meals.
It overlooks the backyard, making it easy to keep an eye on children or simply enjoy the view.
The breakfast nook offers a cozy spot for daily meals, while the dining room nearby is ideal for larger gatherings.
The flow from the kitchen to the family room and porches makes entertaining seamless.
It’s a smart setup, showing how a floor plan can support the way families actually live while keeping everyday routines simple.
The Main-Level Master Suite
On the main floor, the master suite is a true retreat.
Double tray ceilings add elegance, while a bay window creates a sun-filled nook perfect for reading or relaxing.
His-and-her walk-in closets provide ample storage, and private access to the rear porch offers a quiet outdoor escape.
Its location ensures privacy without isolation, balancing comfort and convenience.
The design of this suite demonstrates how a thoughtful floor plan can maximize livability while adding a touch of luxury.
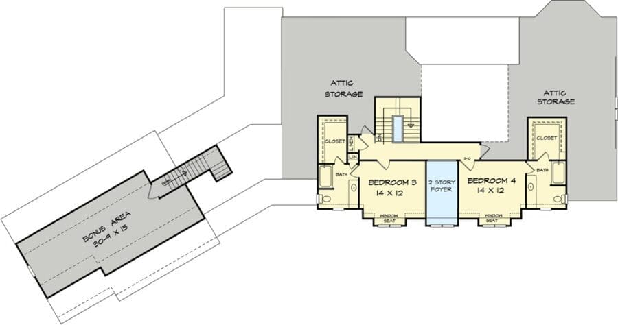
Upstairs Bedrooms with Private Baths
Upstairs, two bedrooms each include their own walk-in closet and private bathroom.
This design gives everyone their own space and ensures privacy without feeling disconnected from the rest of the home.
These rooms are versatile, perfect for children, guests, or even a home office.
Their location above the main level allows the bedrooms to feel separate from daily activity, making the floor plan both functional and adaptable to changing family needs.
The Bonus Room Above the Garage
Above the garage, the bonus room offers flexible space that can be adapted to a variety of uses.
Whether it becomes a media room, a gym, a guest suite, or an office, its location keeps it separate from the main living areas while still being easily accessible.
This kind of space shows the foresight of the floor plan—giving homeowners options for the future without requiring structural changes.
It’s a space that can grow with the family and serve multiple purposes over time.
Rear Porches that Extend Living Space
At the back of the house, three covered porches connect seamlessly with the interior.
Accessible from the family room, breakfast nook, and master suite, they extend living areas outdoors.
These porches are perfect for dining al fresco, relaxing, or hosting gatherings.
Their integration into the floor plan highlights the home’s versatility, showing that every square foot, indoors and out, has been carefully considered to enhance daily life and entertainment opportunities.
The Flow Between Rooms
What makes this floor plan truly appealing is the way it balances openness with privacy.
Open spaces like the family room and kitchen allow for easy movement and interaction, while private spaces like the master suite, upstairs bedrooms, and bonus room provide retreats when needed.
The arrangement of rooms ensures smooth traffic patterns and creates natural connections between spaces.
It’s a layout that functions as well as it looks, which is exactly what a thoughtful floor plan should do.
Everyday Practicality in the Design
Every corner of this plan serves a purpose.
Storage is integrated throughout, circulation is logical, and each area has clear function.
The design allows for both daily routines and special occasions, making the home feel effortless to live in.
With the front porch, foyer, family room, kitchen, master suite, and bonus room all laid out in harmony, the house supports real-life living from morning coffee to evening relaxation.
This is a plan that anticipates how families use their space while keeping everything comfortable and inviting.
Why This Floor Plan Stands Out
With 3,680 square feet of living space, four bedrooms, four and a half baths, and versatile areas like the bonus room and multiple porches, this country house plan strikes a perfect balance.
The main level encourages connection and comfort, the upstairs provides privacy and independence, and the outdoor spaces extend the home’s functionality.
Every feature is strategically placed to maximize livability, showing that good design is not just about beauty—it’s about how well the home supports life as it’s actually lived.
From the front porch to the rear covered areas, from the family room to the master suite, this floor plan has been thoughtfully organized to blend elegance, functionality, and comfort.
The upstairs bedrooms and bonus room add flexibility, ensuring the home can evolve with changing needs.
It’s a design that feels natural, allowing each space to serve a purpose while still being inviting and visually pleasing.
Every square foot is intentional, making it not only a home but also a long-term investment in comfort and lifestyle.
Designing your dream home? Make sure your financial and tech plans are just as solid as your layout. Review current mortgage rates, talk to a real estate agent, and stay on top of your credit score.
Don’t forget essentials like home insurance, warranty coverage, and future refinance options.
Boost your property value with additions like solar panels, smart home features, and energy-efficient appliances.
And when it’s time to visualize it all, let interior design software be your guide.








