4-Bedroom 1-Story Mountain Craftsman House with Social Area (Floor Plan)

Specifications:
- 3,402 Sq Ft
- 4 Beds
- 3.5 Baths
- 1 Stories
- 2 – 3 Cars
Have you ever walked into a home and instantly felt like it wrapped its arms around you?
Like it said, “Welcome, friend. Kick off your shoes and stay awhile.”
That’s exactly the vibe of this Mountain Craftsman beauty.
With 3,402 square feet of style and comfort, this isn’t just a house—it’s a daily retreat.
Whether you’re sipping coffee by the fire or sneaking midnight snacks from the kitchen island, every inch is designed to make life feel a little more magical.
Stay Tuned: Detailed Plan Video Awaits at the End of This Content!


A Porch That Sets the Tone
Let’s start at the very beginning (a very good place to start, as Julie Andrews once said).
You’re greeted by a covered, vaulted front porch, and not just the “barely big enough to wipe your feet” kind.
This porch has presence.

It’s practically begging for a pair of rocking chairs, a plaid throw blanket, and long chats while watching the sunset.
TIP: As you plan your dream home, don’t overlook essentials like comparing mortgage rates, securing home insurance, and checking your credit score. Smart tools like interior design software can help you visualize the layout, while upgrades like solar panels, smart home systems, and energy-efficient appliances can boost both comfort and property value.
Bonus points if you keep a seasonal wreath on the door—this place practically demands one.
The Vaulted Great Room
Step through the front door and you’re hit with a big ol’ breath of fresh air—vaulted ceilings soar overhead in the great room, giving the whole space a bright, open feel.

This is the kind of room where you can host Thanksgiving dinners, movie marathons, or the world’s most intense board game nights.
The back wall is mostly windows, so the sunlight spills in during the day, and at night?
Picture a cozy fire crackling while snow gently falls outside.
Yes, I’m romanticizing it.

But can you blame me?
The great room seamlessly connects to a rear screened porch, which is basically your all-weather MVP.
Rain?
No problem.

Bugs?
Not today, mosquitos.
Whether you’re enjoying quiet mornings with coffee or noisy evenings with friends, this porch has your back—literally.
Kitchen Goals
Now let’s talk about the heart of the home: the kitchen.

It’s tucked to the left of the great room and, spoiler alert, it’s everything.
The 6’ x 9’ island is so massive you might consider naming it. (I’m leaning toward “The Snack Peninsula.”)
There’s space for prepping, serving, or just hanging out with a laptop pretending to do work while eating string cheese.

And the pantry?
Not just any pantry.
It’s a walk-in.

So go ahead and buy that 20-pound bag of flour you saw at the warehouse store—you’ve got room.
Right beside the kitchen is the dining area, ideal for everything from candlelit dinners to pancakes in pajamas.
Master Suite Magic
Now let’s sneak off to the master suite, tucked in the back-left corner for max privacy and peace.

It’s basically a grown-up hideaway.
The ensuite bathroom is spa-worthy, with all the trimmings—double vanities, a big ol’ tub for soaking, and a walk-in shower for when you’re in a rush (or pretending to be).

Now here’s the mic-drop feature: direct access to the laundry room.
Yep, you can go straight from your walk-in closet to laundry without doing that awkward hallway dance in mismatched socks.
Honestly, this one detail might save marriages.

The Other Side
On the opposite wing of the house, things get even more interesting—especially if you’ve got kids, guests, or just enjoy hosting friends who conveniently “forget” to leave.

This side of the home features two bedrooms connected by a clever Jack and Jill bathroom.
Translation: they each get their own vanity space (goodbye toothpaste battles), but they share the shower and toilet area.
It’s a space-saving, harmony-keeping win.

Whether it’s for siblings, visiting family, or a home office that moonlights as a guest room, this layout just makes sense.
Everyone gets privacy, but nobody gets an entire unused bathroom sitting idle 350 days a year.
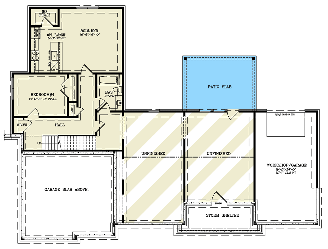
Downstairs Shenanigans
Now let’s head downstairs.

Yes, there’s a whole lower level waiting to be claimed—perfect for whatever phase of life you’re in.
This is where things get really fun.

You’ll find a fourth bedroom, which can be used for just about anything—think teenage hideout, guest suite, or even a dreamy home office with peace and quiet (finally).
But that’s just the beginning.
There’s also a social area, which might as well come with a “Good Times Ahead” sign.

Whether you’re into hosting game nights, movie marathons, or karaoke battles you’ll later regret, this space has your name on it.
Add the optional bar or kitchenette, and you’ve basically got a mini apartment down here.
Perfect for in-laws, adult kids, or that friend who just won’t leave your couch. (No judgment—we’ve all been there.)

Garage Life
Let’s not forget the 2- to 3-car garage, which is anything but an afterthought.
It offers plenty of space for your vehicles, bikes, seasonal decor, and maybe a workbench for your “weekend warrior” home improvement projects that always take three weekends.

If you’re the kind of person who needs a place for fishing gear, a snow blower, or your epic lawn tool collection—this is the spot.
And yes, there’s entry into the house through a mudroom, because muddy shoes and clean floors should never meet.
It’s one of those small touches that makes daily life just a bit more civilized.

So, let’s recap.
You’ve got vaulted everything, a great room that lives up to its name, a kitchen island so big you could host family dinner and a poker night, a private master suite with its own laundry access, a wing for guests or kids, and a lower level that’s ready to party, chill, or work—whatever your vibe.
All wrapped up in a warm, welcoming Craftsman-style exterior that looks right at home nestled in the mountains or perched on a wooded lot with stunning views.

It’s the kind of home that doesn’t just look good on paper—it works beautifully in real life.
It grows with you, adapts to your lifestyle, and gives you space to live, breathe, gather, and relax.
Whether you’re a host with the most, a family of five, or an empty-nester who wants space for the grandkids, this 3,402 sq. ft. mountain Craftsman plan isn’t just a house—it’s the forever home you didn’t know you were waiting for.
Now, where do I sign?
Designing your dream home? Make sure your financial and tech plans are just as solid as your layout. Review current mortgage rates, talk to a real estate agent, and stay on top of your credit score.
Don’t forget essentials like home insurance, warranty coverage, and future refinance options.
Boost your property value with additions like solar panels, smart home features, and energy-efficient appliances.
And when it’s time to visualize it all, let interior design software be your guide.








