4-Bedroom 1-Story Modern Farmhouse Barndo with Workshop Garage (Floor Plan)

Specifications:
- 2,500 Sq Ft
- 4 Beds
- 3 Baths
- 1 Stories
- 3 Cars
Some houses feel like they’re made to impress guests, while others are built for comfort.
This 4-bedroom modern farmhouse barndominium-style plan manages to do both.
At 2,500 square feet, with three bathrooms, an oversized garage, and a porch that practically begs you to sit down and stay a while, it’s the kind of design that balances everyday living with long-term investment value.
Let’s take a walk through the floor plan and see what makes it shine.
Stay Tuned: Detailed Plan Video Awaits at the End of This Content!







A Farmhouse Exterior with Barndo Flair
From the outside, the plan captures everything we love about farmhouse living but adds the bold lines and practicality of barndo style.
The wraparound porch creates a welcoming feel while also extending your living space outdoors.
Built with conventional wood framing and strong 2×6 exterior walls, the design is as durable as it is charming.
It’s the type of curb appeal that gets attention from neighbors and even a real estate agent who knows how much exterior design impacts property value.
Paired with the best home security system and smart home technology, you get a home that feels both inviting and secure.
TIP: As you plan your dream home, don’t overlook essentials like comparing mortgage rates, securing home insurance, and checking your credit score. Smart tools like interior design software can help you visualize the layout, while upgrades like solar panels, smart home systems, and energy-efficient appliances can boost both comfort and property value.

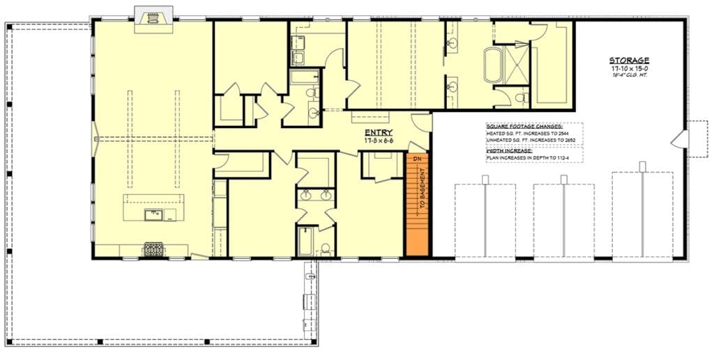
The Oversized 3-Car Garage and Workshop
One of the highlights of this plan is the oversized 1,260-square-foot garage.
Not only does it fit three cars, but it also includes a workshop space.
Whether you’re working on projects, storing outdoor gear, or simply appreciating the extra elbow room, this garage goes beyond basic function.
There’s also accessible storage above the living area, making it easy to keep clutter out of sight.
Holiday décor, keepsakes, or even items tied to future home remodeling contractor projects can all be stowed away.

And since this is a major purchase, it’s smart to think ahead about home insurance and home warranty options to protect such valuable space.
An Open-Concept Great Room
Step inside, and the great room steals the show.
With massive vaulted ceilings and large windows, the space feels open and bright.
The design makes it perfect for entertaining, but it also works for quiet evenings curled up with a book.
This is also the kind of area where smart home technology shines.
Imagine adjusting the lights, security, or temperature with a single tap while enjoying the view outside.
Features like these don’t just add convenience—they also increase property value and make the house a stronger investment overall.

A Kitchen Built for Everyday Life
At the heart of the home is a kitchen designed for both function and fun.
The oversized island doubles as a cooking station and casual dining spot, while the walk-in pantry provides all the storage you’ll ever need.
If you’ve ever tinkered with interior design software to visualize your dream kitchen, this one comes close to reality.
And the best part?
The layout is so functional that any upgrades—whether funded by a home equity loan or home improvement loans—will only add to the overall charm.
Should you ever decide to bring in a home remodeling contractor, they’d have an excellent foundation to work with.

Dining Space That Connects the Home
The dining area sits in the flow of the open-concept layout, creating easy access to both the kitchen and porch.
It’s practical for family dinners but also ideal for larger gatherings.
Imagine celebrating holidays here, or even hosting a refinance mortgage toast when you’ve locked in a better deal on your loan.
The dining space is also strategically placed to connect indoor and outdoor living, which makes it versatile and adds to the home’s overall appeal.
Four Bedrooms for Every Stage of Life
The floor plan includes four bedrooms, each designed to maximize comfort.
The primary suite is tucked away for privacy and includes its own spacious bathroom.

The other three bedrooms share two additional bathrooms, providing plenty of space for family or guests.
Since this is a single-story design, accessibility is built in.
Whether you’re raising kids, entertaining visitors, or planning for retirement, the layout supports your needs without compromise.
From a buyer’s perspective, a four-bedroom home is always a smart purchase and increases long-term property value.
Bathrooms That Work for Everyone
With three bathrooms, this plan makes life easier for busy mornings or big gatherings.
The primary bathroom provides a private retreat, while the other two bathrooms are conveniently located near bedrooms.

Down the line, if you ever choose to upgrade these spaces, you could finance changes with a refinance mortgage or even a home equity loan.
The beauty of this plan is that the layout is already optimized, so improvements would focus purely on style.
The Wraparound Porch for Outdoor Living
Few features sell a farmhouse plan like a wraparound porch.
This one stretches generously around the home, offering multiple spots to relax, entertain, or enjoy the view.
Picture rocking chairs, a porch swing, or maybe even outdoor dining.
This porch doesn’t just add charm—it adds measurable property value.

Outdoor living spaces are highly desirable, and when paired with smart home technology or the best home security system, it becomes both functional and safe.
Storage Above the Living Space
One clever feature is the storage above the main living space, accessible through the garage.
This is an ideal spot for off-season items, keepsakes, or anything you don’t want cluttering the main home.
This kind of thoughtful design makes daily life easier while also giving buyers confidence that the plan accounts for both big and small details.
It’s the type of storage solution that makes a home loan pre-approval process feel like money well spent once you move in.

The Practical Benefits of This Plan
Every element of this house plan serves a purpose.
The single-story design provides accessibility, the vaulted ceilings create openness, and the oversized garage adds functionality.
These details all contribute to making this home a strong investment for the future.
When factoring in mortgage rates, home insurance, or even the option to refinance mortgage down the line, it’s clear this house doesn’t just look good—it makes financial sense.
Combine that with the possibility of using a building cost estimator to plan upgrades, and you can see how this plan becomes more than just a dream—it’s a strategy for long-term value.

Why This House Works as an Investment
A home like this is more than walls and a roof—it’s an opportunity.
From the open-concept living to the wraparound porch, every feature is designed to blend lifestyle with practicality.
Whether you buy for family comfort, future resale, or simply the joy of living in a space that fits your life, this plan stands out.
With thoughtful planning, including home insurance, home warranty, and perhaps even tapping into home equity for upgrades, this house grows with you.
It’s the kind of purchase that isn’t just about today—it’s about building your future.
This 4-bed, 3-bath, single-story modern farmhouse barndo-style plan with its oversized garage workshop is the definition of smart design.

The vaulted ceilings, open-concept kitchen, and wraparound porch create the lifestyle we all dream about, while the storage and practicality ensure the investment makes sense for the long haul.
Sure, you’ll need to navigate mortgage rates, work with a real estate agent, and maybe even secure home loan pre-approval before making it yours.
But with everything this plan offers, the effort is worth it.
This isn’t just a floor plan—it’s a blueprint for living well, investing wisely, and making memories in a home that truly feels like your own.
Designing your dream home? Make sure your financial and tech plans are just as solid as your layout. Review current mortgage rates, talk to a real estate agent, and stay on top of your credit score.
Don’t forget essentials like home insurance, warranty coverage, and future refinance options.
Boost your property value with additions like solar panels, smart home features, and energy-efficient appliances.
And when it’s time to visualize it all, let interior design software be your guide.








