4-Bedroom 1-Story French Country House with Bonus Expansion (Floor Plan)

Specifications:
- 3,281 Sq Ft
- 1 – 4 Beds
- 1.5 – 2.5 Baths
- 1 Stories
- 1 – 3 Cars
There’s nothing quite like a home that blends elegant style with everyday livability—and this one-story French Country house plan does just that.
With 3,281 square feet, stunning curb appeal, a charming breezeway, and room for up to four bedrooms, it’s a design that feels luxurious without going over the top.
Let’s take a closer look at what makes this house plan such a standout.


European-Inspired Exterior with Storybook Charm
The exterior of this French Country home makes a strong first impression.
A graceful hip roof, detailed stonework, and decorative wooden shutters create a timeless look that feels lifted from a European countryside.
It’s classic and warm—exactly the kind of design that adds lasting curb appeal and supports long-term property value.
One unique and functional feature is the covered breezeway that connects the single-car garage to the main house.
It’s not just pretty—it’s practical.
Whether you’re bringing in groceries during a rainstorm or just strolling between spaces, this thoughtful detail adds charm and convenience.
Around back, the spacious three-car side-load garage adds significant value and versatility, whether you’re using it for vehicles, storage, or even future home improvement projects.
TIP: As you plan your dream home, don’t overlook essentials like comparing mortgage rates, securing home insurance, and checking your credit score. Smart tools like interior design software can help you visualize the layout, while upgrades like solar panels, smart home systems, and energy-efficient appliances can boost both comfort and property value.
Open Living Spaces with Seamless Flow
Inside, the house plan shines with an open layout that offers both connectivity and comfort.
From the foyer, you can see directly into the dining room and great room, creating an airy, welcoming environment.
It’s perfect for entertaining or just enjoying a quiet evening at home.
Natural light pours in, enhancing the open feel and creating a cozy, inviting space.
The kitchen is cleverly separated by a half wall—giving you the best of both worlds: open sightlines and just enough privacy to hide the prep mess.
Whether you’re cooking a big family meal or enjoying coffee on a quiet morning, this design keeps everything within reach.
This open-concept layout also makes future upgrades a breeze.
Planning with interior design software?
The options are endless.
And if you’re thinking about your long-term financial health, a space like this helps protect your investment and makes future resale easier—especially if you ever need to refinance your mortgage or apply for a home equity loan.
Vaulted Study with Fireplace and Bedroom Option
One of the most flexible areas in the house is the vaulted study, complete with a charming fireplace.
Whether you’re working from home, reading by the fire, or just enjoying some quiet time, it’s a space that adds both character and function.
But here’s where it gets exciting: this study can easily be converted into a fourth bedroom.
This flexibility is ideal for growing families, multigenerational households, or anyone planning ahead.
A savvy real estate agent would instantly recognize how this feature adds versatility and boosts the overall value of your home.
Luxurious Master Suite with Dual Walk-In Closets
When it comes to private retreats, the master suite in this French Country house plan goes above and beyond.
Tucked away from the rest of the house, it’s a true escape.
The elegant spa bathroom includes dual vanities, a soaking tub, and a separate shower, giving you that relaxing spa feel right at home.
But the real showstopper?
Two massive walk-in closets.
His and hers, hers and hers—whatever your needs, these closets have you covered.
And her closet is something else entirely: oversized, thoughtfully organized with shelves and hanging space, and large enough to make organizing actually enjoyable.
It’s this kind of thoughtful design that makes the home feel like an indulgence, but also a smart purchase.

A well-appointed master suite like this supports your home’s resale value and can be a game-changer when exploring refinancing options or reviewing your mortgage rates with a lender.
Secluded Bedrooms for Family and Guests
On the opposite side of the house, you’ll find two additional bedrooms—separated from the master suite to provide peace and privacy for family members or guests.
These bedrooms share a convenient bath and are perfect for kids, visiting relatives, or even a live-in nanny.
Having a dedicated wing for these rooms creates a comfortable setup, and it’s especially appealing for buyers with family in mind.
In a competitive housing market, features like this can make or break a sale—something to remember if you’re thinking of this home as an investment.
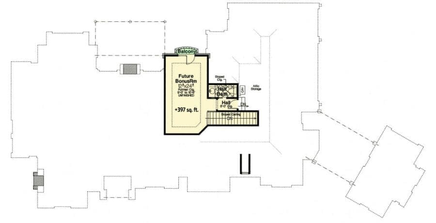
Bonus Room with Half Bath for Future Flexibility
Even though this home is a one-story plan, it still includes a spacious bonus room on the second floor.
Complete with a handy half bath, it’s a flexible area that could serve as a playroom, media space, home gym, or guest suite.
This extra space is ideal for adapting to your family’s changing needs.
And if you’re planning ahead financially, this kind of flexibility makes it easier to qualify for home improvement loans or justify the home’s higher appraisal during a refinance mortgage evaluation.
Thinking of adding tech upgrades?
It’s the perfect spot for smart home technology—whether that’s a surround sound system, lighting automation, or even a remote work setup.
Well-Designed Garages with Storage Potential
This house plan includes a single-car garage connected to the home via a breezeway and a larger three-car side-load garage tucked at the back.
Together, they offer generous space for vehicles, tools, and recreational gear.
Whether you’re a hobbyist, a collector, or just someone who appreciates extra storage, these garages deliver in spades.
And as anyone who has worked with a home remodeling contractor knows, great garage space is often the foundation for future upgrades—workshops, mudrooms, even bonus living space.
If you’re tracking your property’s value over time or considering how to use a home equity loan for additions, these garage features give you a serious head start.
A Practical Floor Plan That’s Easy to Love
Beyond the gorgeous details and bonus features, this home is simply well thought-out.
The single-story layout offers easy mobility, fewer stairs, and better energy efficiency—appealing to a wide range of buyers and making this house a long-term keeper.
Even the finer details, like the placement of bathrooms and utility areas, reflect a plan that was created for how people actually live.
Whether you’re buying with a mortgage loan now or planning to refinance down the road, this kind of practical design helps protect your investment and adds peace of mind.
This French Country house plan is the kind of design that looks good, feels great, and makes financial sense.
From its elegant exterior to its versatile interior, it’s a place you’ll love calling home—and one that supports your future goals.
So whether you’re checking out building cost estimators, getting your credit score ready for home loan pre-approval, or just dreaming of a home with real character, this plan is worth a long, admiring look.
Add in the potential for smart upgrades, low-maintenance design, and eligibility for competitive home insurance rates, and you’ve got a plan that’s as smart as it is stunning.
After all, when you’re ready to purchase a home, you want more than pretty finishes—you want a solid investment.
And with this French Country gem, that’s exactly what you’ll get.
Designing your dream home? Make sure your financial and tech plans are just as solid as your layout. Review current mortgage rates, talk to a real estate agent, and stay on top of your credit score.
Don’t forget essentials like home insurance, warranty coverage, and future refinance options.
Boost your property value with additions like solar panels, smart home features, and energy-efficient appliances.
And when it’s time to visualize it all, let interior design software be your guide.








