3-Bedroom 1-Story Farmhouse with Bonus Level Above Garage (Floor Plan)

Specifications:
- 2,564 Sq Ft
- 3 Beds
- 3.5 Baths
- 1 Stories
- 3 Cars
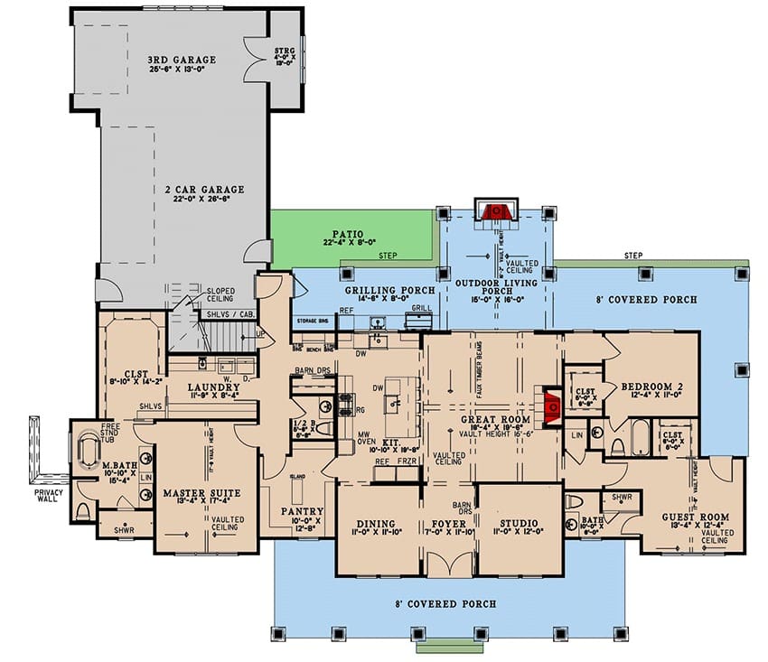
If you’ve ever dreamed of living in a farmhouse that blends rustic charm with modern amenities, buckle up — because this 3-bed beauty is about to steal your heart (and possibly your Pinterest board).
With 2,564 square feet of smartly designed living space, a split-bedroom layout, and a whopping 3-car garage, this plan is more than just a house — it’s your next adventure.
Let’s take a walk through this dream of a dwelling, shall we?




Welcome Home
From the moment you pull up to this country-style stunner, the charm is real.
A wide covered front porch with a standing seam metal roof practically begs for a pair of rocking chairs and a glass of sweet tea.

The six timber supports (set on sturdy stone bases) are a subtle nod to classic farmhouse design, but with an upscale twist.
It’s the kind of entryway that makes you want to come home—and stay there forever.

Step Inside
Open the front door and you’re greeted by a warm, inviting foyer.

On your right, a cozy dining room where you can host everything from Thanksgiving dinner to taco night.
To your left?
TIP: As you plan your dream home, don’t overlook essentials like comparing mortgage rates, securing home insurance, and checking your credit score. Smart tools like interior design software can help you visualize the layout, while upgrades like solar panels, smart home systems, and energy-efficient appliances can boost both comfort and property value.

A versatile studio space perfect for a home office, craft room, or even a spot to finally write that novel (or binge your latest true crime obsession in peace).
This layout is the perfect example of thoughtful design — where the entry makes a statement, but doesn’t smack you in the face with “too much.”

The Heart of the Home
Now, let’s talk about the real star of the show: the vaulted great room.
This space is chef’s kiss.

Exposed beams overhead?
Check.

A fireplace that practically yells “gather round, y’all”?
Check.

It’s open, airy, and gives off the kind of good vibes you only get when everything just fits.
Right off the great room is the kitchen — and oh, what a kitchen it is.

We’re talking a flat ceiling, a kitchen island with seating for FIVE (yes, five!), and sightlines that let you chat with the fam while whipping up pancakes or pasta.
And then there’s the pantry… sweet heavens, the pantry.

This isn’t just any pantry.
It’s a 12’ x 12’8” walk-in marvel, complete with its own island.
That’s right.

A pantry with an island.
Plus, additional storage tucked behind charming barn doors.
Honestly, it’s big enough to throw a small party in — or at least stash a Costco haul that could feed a small village.

Master Suite Magic
Tucked away for privacy, the master suite is a serene escape that’ll make you feel like royalty (or at least like someone who always has fresh sheets and zero laundry on the floor — hey, we can dream).
It’s vaulted.

It’s spacious.
And the best part?
It connects directly to the laundry room.

That means no more hauling baskets across the house like a gym workout you didn’t ask for.
The ensuite bathroom is equally dreamy, with a freestanding tub, double vanities (no elbow-bumping here), and a generous walk-in shower that’s practically spa-level.

Guest Quarters
On the opposite side of the house — because privacy matters — are Bedrooms 2 and 3.

Bedroom 2 comes with its own private bathroom, making it perfect for guests, teenagers, or your mother-in-law (who may never leave, fair warning).
Bedroom 3 steps up the game with a vaulted ceiling and direct outdoor access.

Imagine your guests stepping out onto the porch with their morning coffee.
It’s peaceful, it’s relaxing, and it’s definitely the kind of hospitality that wins you major brownie points.

Outdoor Living Done Right
If the inside of this farmhouse is like a warm hug, the outdoor living space is the high-five that seals the deal.

A vaulted outdoor living porch with a cozy fireplace gives you year-round options for relaxing or entertaining.
Whether you’re toasting marshmallows in the winter or sipping iced tea in the summer, this space brings the good life outside.

There’s even a grilling station with a sink, making it ideal for al fresco dining without the back-and-forth shuffle to the kitchen.
Plus, it’s connected to a patio that just screams BBQ weekends and sunset selfies.

More Than Just Car Storage
Let’s not forget the 3-car garage.

Tucked in the back, it offers 1,090 square feet of covered parking — perfect for vehicles, lawn equipment, or that dream woodworking shop you’ve been talking about since 2012.
It’s the kind of garage that actually fits real cars and your hobbies.

A rare find.
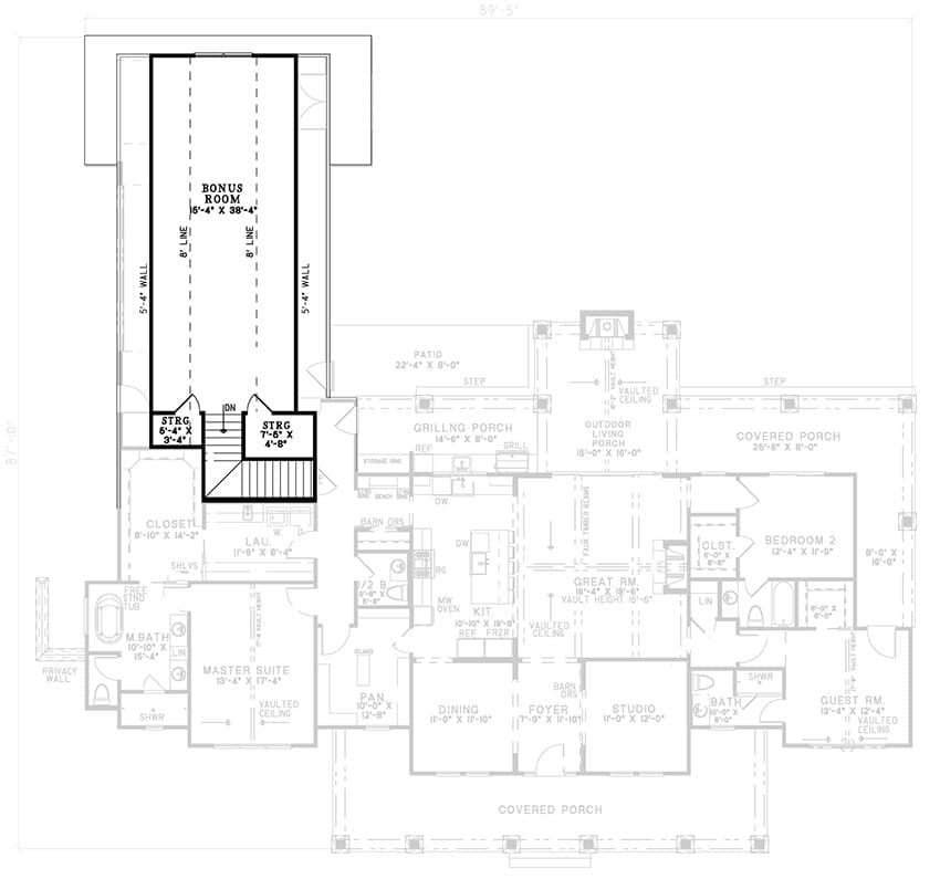
But wait — there’s more! (Insert infomercial voice here.)
Above the garage is a bonus level with 692 square feet of flexible living space.

Turn it into a guest suite, a media room, a gym, or the world’s most epic Lego room.
It’s your space.
Go wild.

Why This Plan Just Works
Here’s the thing — this house plan isn’t just beautiful.
It’s smart.

The split-bedroom layout means everyone gets their space.
The centralized living areas encourage togetherness (and epic movie nights).
The kitchen and pantry are absolute showstoppers.

And the bonus space gives you room to grow, adapt, and do life the way you want.
It’s one level of pure convenience with just enough extra flair to keep things interesting.
So if you’re looking for a home that blends country charm with practical elegance — that gives you room to breathe without feeling cavernous — this 3-bed farmhouse plan just might be your soulmate.

It’s a house that works hard and looks good doing it.
From porch to pantry, garage to grill, this place is ready to make memories with you.
Whether you’re chasing toddlers or chasing sunsets, it’s built for life — real life, with all the muddy boots, pancake breakfasts, and firepit chats that come with it.
Now, who’s bringing the lemonade?
Designing your dream home? Make sure your financial and tech plans are just as solid as your layout. Review current mortgage rates, talk to a real estate agent, and stay on top of your credit score.
Don’t forget essentials like home insurance, warranty coverage, and future refinance options.
Boost your property value with additions like solar panels, smart home features, and energy-efficient appliances.
And when it’s time to visualize it all, let interior design software be your guide.








