3-Bedroom 1-Story European House with Turreted Study (Floor Plan)

Specifications:
- 3,587 Sq Ft
- 3 Beds
- 2.5 – 3.5 Baths
- 1 Stories
- 4 Cars
Let’s face it—some house plans just hit different.
And this one?
This one hits like a velvet-wrapped grand piano dropping from a chandelier.
Welcome to a house plan that feels less like a building and more like a lifestyle upgrade.
If you’ve ever dreamt of sipping espresso while surrounded by vaulted ceilings and old-world charm, buckle up.
We’re diving into 3,587 square feet of pure European elegance—with a turret, no less.


Hello, Gorgeous!
Imagine pulling up to your future home and being greeted by a swoon-worthy silhouette: a sweeping roofline that makes the house look like it leaped out of a fairy tale, a stately turret that screams regal sophistication, and a porte-cochere that says, “Yes, I valet my own car—because I can.”
It’s the architectural equivalent of a tuxedo with personality.
And the best part?
It’s exclusive.
TIP: As you plan your dream home, don’t overlook essentials like comparing mortgage rates, securing home insurance, and checking your credit score. Smart tools like interior design software can help you visualize the layout, while upgrades like solar panels, smart home systems, and energy-efficient appliances can boost both comfort and property value.
This isn’t some cookie-cutter suburban box.
Nope.
This European-inspired masterpiece is available only through Architectural Designs, which basically makes it the Beyoncé of house plans.
Vaults, Beams, and a Whole Lot of Wow
Step inside and bam—you’re immediately struck by the grandeur of the vaulted and beamed ceiling in the great room.
If you’ve ever fantasized about hosting a dinner party where guests are so wowed they forget their own names, this is the room for you.
And thanks to its clever open layout, the great room is perfectly visible from the foyer, kitchen, and dining area.
So whether you’re making a dramatic entrance with a tray of hors d’oeuvres or just casually throwing together a sandwich, you’re always part of the action.
Also, beamed ceilings = instant character.
It’s science.
Countertops for Days and a Pantry That Deserves Its Own Zip Code
If kitchens are the heart of the home, this one is basically a five-star cardiologist.
We’re talking massive counter space, perfect for everything from gourmet cooking to late-night ice cream spreading.
Want to lay out a charcuterie board the size of a small nation?
Go for it.
There’s room.
And don’t even get me started on the walk-in pantry.
Calling it “storage” feels like an insult—it’s more of a food sanctuary.
Honestly, you could hide in there during a game of hide-and-seek and still have room to invite a friend.
Covered Patio Meets Grill Master Paradise
I firmly believe that every great home should have a space that encourages outdoor laziness—ideally with grilled meat involved.
This plan delivers with a covered patio that includes its very own grilling station.
Rain?
No problem.
Sun too intense?
The cover’s got you.
Want to become that neighbor who hosts legendary BBQs where everyone forgets their dietary restrictions?
Done and done.
Romance Meets Real Estate
Let’s talk about the master suite, a.k.a. your future favorite place in the world.
It has a fireplace.
Let me repeat that: A. Fireplace. In. The. Bedroom.
Picture it: a cool evening, a good book, and a roaring fire just steps from your bed.

It’s the kind of thing that makes you whisper “fancy” under your breath as you fall asleep.
The suite itself is spacious, elegant, and utterly indulgent—perfect for both romance and solo Netflix marathons.
The Music Room
This house has a music room.
Not a closet with a Bluetooth speaker—a real, honest-to-goodness room for music.
Whether you’re a concert pianist or just enjoy pretending to play the ukulele, this space is all about creativity and ambiance.
And if you’re not musically inclined, no judgment.
Call it a meditation room.
Or a library.
Or a gallery for your collection of ceramic frogs.
Whatever suits your vibe.
Channel Your Inner Royal
Now we arrive at what might be my personal favorite feature: the turreted study.
It’s like something out of a medieval novel—only with better Wi-Fi and central air.
Thanks to its location in the turret, the study has a circular bay window that’s just begging for a leather chair, a vintage desk, and a steaming mug of something intellectual.
Work from home?
You’ll be the most dramatic Zoom square anyone’s ever seen.
Trust me.
Plus, if you’ve ever wanted to mutter “To the turret!” for any reason, now you can do it and actually mean it.
Four Cars and a Porte-Cochere, Baby
Let’s not overlook the garage situation, which is basically a luxury car lover’s dream.
You’ve got a four-car setup, split into two double garages.
That means space for your daily driver, your weekend convertible, your project car, and—oh I don’t know—a vintage Vespa?
Accessed through the porte-cochere (which, let’s admit, is the classiest way to drive under a roof), the garage setup is practical and impressive.
It’s the kind of arrangement that makes you want to learn how to detail your car just so you have an excuse to spend time out there.
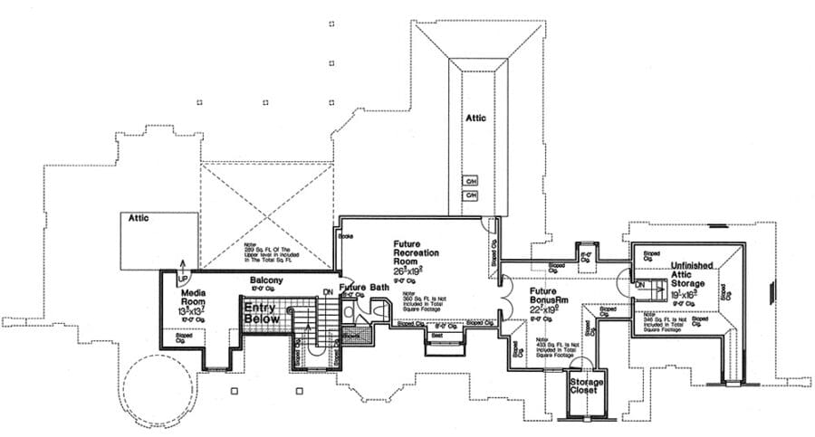
Upstairs Extras
Just when you think you’ve seen it all, there’s more.
Head upstairs and you’ll find even more space to play with.
Think guest quarters, home theater, crafting cave, or secret lair—whatever floats your boat.
Having that bonus upper level means the house can evolve with your needs.
Today it’s a game room, tomorrow it’s a second office, and in five years it’s where your teenagers hide out and pretend they don’t know you.
If you’re looking for a house that’s equal parts sophistication, charm, and wow, this exclusive European-style design is basically your dream wrapped in stone and stucco.
From the majestic turreted study to the grill-happy patio and four-car garage wonderland, every inch of this home screams intentional luxury.
It’s a place to host, to retreat, to live big and dream even bigger.
So if you need me, I’ll be over here sketching out where I’d put the wine fridge and pretending I totally know how to play piano in the music room.
How would you make this house your own?
Designing your dream home? Make sure your financial and tech plans are just as solid as your layout. Review current mortgage rates, talk to a real estate agent, and stay on top of your credit score.
Don’t forget essentials like home insurance, warranty coverage, and future refinance options.
Boost your property value with additions like solar panels, smart home features, and energy-efficient appliances.
And when it’s time to visualize it all, let interior design software be your guide.








