3-Bedroom 1-Story Country Farmhouse with Expansive Rear Porch and Bonus Space (Floor Plan)

- 2,496 sq. ft.
- 3 Beds
- 2.5 Baths
- 1 Stories
- 3 Cars
Okay, let me just say it—this house plan has me daydreaming about moving in before the ink is even dry.
You know that feeling when you walk into a model home and immediately start picturing your furniture in it?
Yep, that’s where I’m at. And this isn’t just any modern farmhouse—it’s the kind that makes you want to throw a backyard barbecue, invite the neighbors you barely know, and settle in for a cozy night by the fireplace all in the same week.
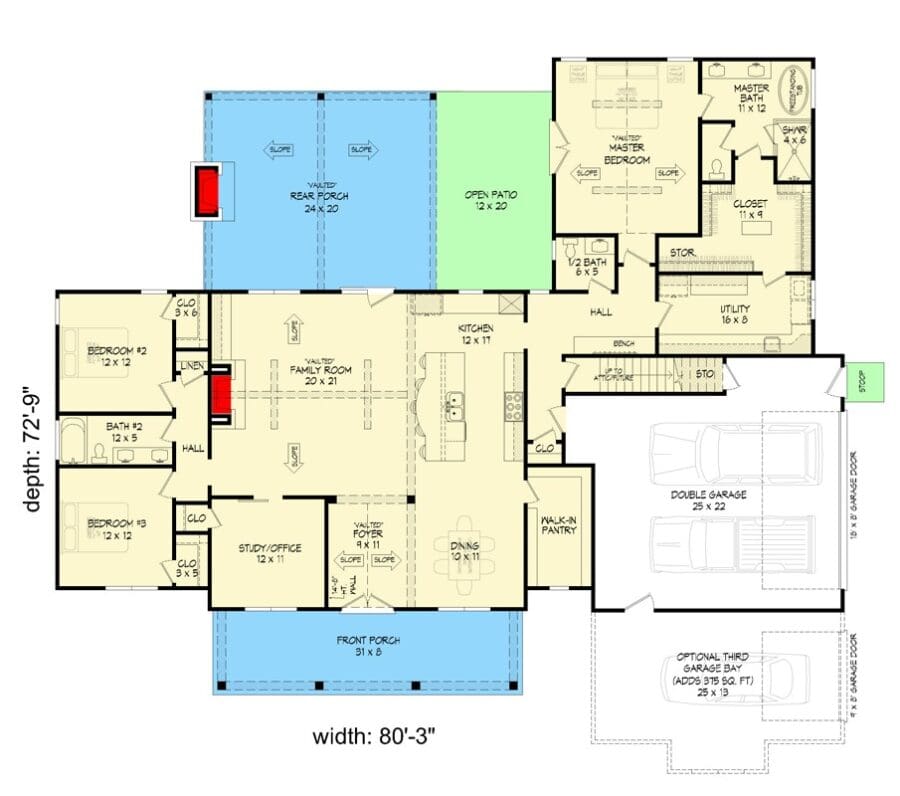
With 3 bedrooms, 2.5 baths, and a wide-open layout, this home strikes the perfect balance between charming farmhouse aesthetics and modern functionality.
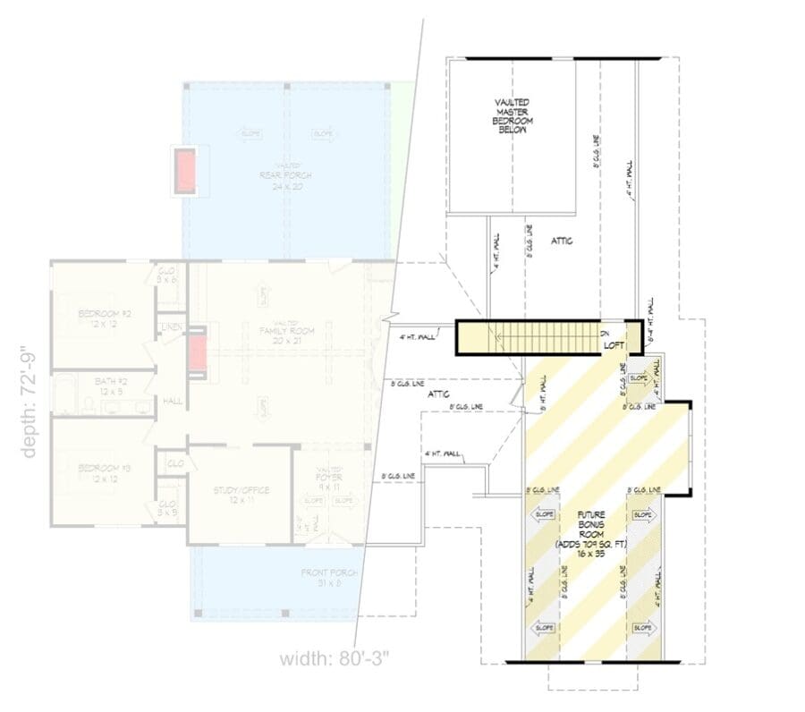
Oh, and let’s not forget about the bonus room upstairs that’s just waiting to become your game room, home theater, or “I finally have my own quiet space” sanctuary.
So, let’s dive into the details of this 2,470 sq. ft. slice of home heaven.


First Impressions Count—And This Exterior Delivers
When you pull up to this house, you’ll notice that the modern farmhouse charm hits you right away.
The welcoming porch up front is basically saying, “Come on in, we’ve got sweet tea ready.” And if you’re worried about where to stash the cars, the 2-car side-entry garage not only keeps things neat but also makes this plan corner-lot friendly.
Translation: the exterior looks polished, and your driveway won’t be the neighborhood traffic jam.
Now, here’s where the real estate agent in me wants to jump in—because let’s be honest, curb appeal isn’t just about good looks.
A home that makes a strong first impression instantly boosts property value.
TIP: As you plan your dream home, don’t overlook essentials like comparing mortgage rates, securing home insurance, and checking your credit score. Smart tools like interior design software can help you visualize the layout, while upgrades like solar panels, smart home systems, and energy-efficient appliances can boost both comfort and property value.
And if you ever decide to sell (or refinance mortgage), trust me, this type of exterior design pays you back.
The Foyer That Says “Welcome Home”
Step inside, and you’re greeted by a foyer that doesn’t just dump you into the living space—it actually gives you that breath-before-the-big-reveal moment.
On one side, you’ve got a study (perfect for working from home, or pretending to while you scroll through interior design software for your next home improvement project).
This office space is versatile, though. Don’t need it for work?
It could easily become a music room, craft room, or—if you’re like me—a “quiet corner” for coffee before the day explodes into chaos.

The Family Room: Vaulted, Bright, and Perfectly Cozy
Move forward and BAM—the vaulted family room opens up. There’s just something about a high ceiling that makes a space feel lighter, brighter, and grander without being stuffy.
Add in the fireplace, and suddenly you’ve got yourself a spot where holiday mornings and movie nights become lifelong memories.
And can we talk about the walls of glass? They don’t just let in natural light—they frame your backyard and rear porch views like living artwork.
Honestly, if you’ve been browsing mortgage rates and debating whether to buy or build, this view might be the tipping point.
A Kitchen That Deserves Its Own Applause
The kitchen is every bit the heart of this home, and boy, does it beat strong.
The island—complete with a forward-facing sink—means you can chop veggies while keeping an eye on the kids, guests, or even the flames dancing in the fireplace.
And let’s face it, cooking feels a whole lot less like a chore when you can stay connected to the family room.
But wait, it gets better. You’re not just getting one pantry—you’re getting TWO. A walk-in pantry for the everyday stuff and a butler’s pantry for when you’re feeling fancy or just want more storage.
If you’ve ever struggled to find space for your bulk warehouse haul, this setup is the answer to your prayers.
From a financial perspective, think about it this way: a well-designed kitchen like this is a solid investment in property value.

When it comes time to refinance or take out a home equity loan, you’ll be glad you went with a plan that nailed the kitchen layout.
Dining That Doesn’t Feel Stuffy
This plan gives you a formal dining area, but it doesn’t feel like the kind of place where you’d be afraid to spill your drink.
With its seamless connection to the kitchen and family room, it’s equal parts elegant and casual.
Whether you’re hosting a holiday dinner or grabbing takeout, this space adapts to the vibe you need.
And for those of us who like to crunch numbers, the building cost estimator in me has to add—multi-functional spaces like this save you from adding on later.
That means fewer home improvement loans down the road.
The Master Suite: Your Private Retreat
Now, let’s get to one of my favorite parts—the master suite. Tucked away on the main floor, it offers privacy while still being convenient.
The tray ceiling adds that touch of luxury without going over the top, and the private door to the back porch is basically an invitation to sneak out with a morning coffee or an evening glass of wine.
And the bathroom? Luxurious doesn’t even cut it. Dual vanities, a roomy shower, and a walk-in closet that connects to the laundry room (cue angels singing).
That’s not just smart—it’s life-changing. Forget dragging baskets down hallways; you’ve got seamless laundry access.

For the practical side: having such a well-thought-out master suite actually helps when you’re going through home loan pre-approval.
Why? Because homes with functional, luxurious master suites tend to appraise higher, boosting your purchase confidence.
Split Bedrooms for Maximum Privacy
On the other side of the home, you’ll find the additional bedrooms—each with its own walk-in closet. This isn’t just a nice touch; it’s a game-changer.
If you’ve ever had kids arguing over closet space, you’ll know exactly why this matters.
And for guests? Let’s just say they won’t feel like they got stuck with the “spare” room.
Again, this is where I start thinking about long-term investment. Split bedrooms with ample storage make this house appealing across generations—from families with kids to retirees who want space for visitors.
Outdoor Living That Extends the Home
If you’re the type who loves the outdoors but doesn’t always want to leave home, this rear porch and deck combo is calling your name.
The covered porch comes complete with an outdoor fireplace, so whether it’s a summer barbecue or a crisp fall evening, you’ve got a year-round hangout spot.
Add in the barbecue porch, and you’ll have the best excuse to invite people over.
Not to mention, outdoor living features like this are trending big-time in real estate. A good agent will tell you that buyers see them as high-value perks.

And if you’re considering home insurance or even a home warranty, outdoor features like fireplaces and decks are things you’ll want to cover properly to protect your investment.
Bonus Space: Because Who Doesn’t Love Options?
Above the garage, you’ve got a whopping 709 sq. ft. of optional bonus space. Think home theater, playroom, or even an extra guest suite.
This flexibility is golden because it means your home can adapt as your needs change.
I’ll also point out—when you buy or build a home with bonus space, you’re essentially giving yourself future expansion without new construction headaches.
No need to hire a home remodeling contractor later on for costly additions. Instead, you’ve got the space right there, ready when you are.
Exploring the Modern Farmhouse in Greater Detail
We’ve already covered the big highlights of this stunning 3-bedroom, 2.5-bath modern farmhouse—like the vaulted family room, dreamy kitchen, and that luxurious master suite.
Now let’s dive deeper into how every element of this plan ties together, making it not just a comfortable place to live but also a smart choice for long-term living.
Spacious Side-Load Garage with Bonus Potential
One of the most underrated features of this plan is the 2-car side-entry garage.
Not only does it keep the exterior clean and corner-lot friendly, but it also comes with a 709 sq. ft. bonus room above.
This space is incredibly versatile—you could finish it as a home theater, guest suite, or even a private office.

For homeowners thinking about future flexibility, this bonus area is a huge win. Instead of hiring a home remodeling contractor years down the road and dipping into home improvement loans, you’ve already got expansion space built in.
That makes this plan not just beautiful, but practical from a financial perspective as well.
Outdoor Living That Expands the Home
The rear porch is truly a showstopper, with its own outdoor fireplace and direct connection to the kitchen and family room.
Add the large deck and a dedicated barbecue porch, and you’ve got outdoor living that feels like an extension of the interior.
Features like this don’t just make life more enjoyable; they also add property value.
If you’re considering this house plan as an investment, it’s worth noting that outdoor fireplaces and entertainment-ready spaces are big draws when you eventually buy or sell.
Even your real estate agent will tell you that outdoor living areas make a home stand out instantly.
The Kitchen: Two Pantries, Endless Possibilities
Most kitchens stop at one pantry. This one? It spoils you with both a walk-in pantry and a butler’s pantry.
Imagine having one space for your day-to-day groceries and another for entertaining essentials.

If you’re hosting family holidays or even just a weekend dinner party, this setup keeps the main kitchen sleek and organized.
And when you consider the financial side of homeownership, this kitchen design adds long-term appeal.
Should you ever refinance mortgage or tap into a home equity loan, a kitchen with this much functionality strengthens your case. It’s the kind of feature appraisers and buyers alike take note of.
A Master Suite with Everyday Luxury
The master suite in this farmhouse is more than just a bedroom—it’s a retreat.
The tray ceiling gives it architectural flair, and the private door to the rear porch makes it feel connected to the outdoors.
The en-suite bathroom features dual vanities, a spacious shower, and direct access to the laundry room through the walk-in closet.
That closet-to-laundry connection is genius. Not only does it save you time (and back strain from hauling baskets), but it’s also one of those smart design choices that make a home easier to live in long-term.
And when it comes to home insurance or even a home warranty, having efficient layouts like this reduces wear and tear on the home overall.
Bedrooms with Privacy and Comfort
The split-bedroom design is one of the strongest features of this plan. With the master suite on one side and the secondary bedrooms on the other, everyone gets their own private space.

And since each bedroom has its own walk-in closet, no one feels shortchanged.
This layout is especially appealing for families with kids, frequent guests, or even multi-generational households.
And from an investment standpoint, it ensures the house appeals to a wide range of buyers—something that matters if you ever decide to sell or refinance mortgage.
The Study: Flexible Space for Today’s Lifestyle
Located just off the foyer, the study gives this farmhouse an edge for modern living.
Whether it’s used as a home office, a reading nook, or even a small guest room, this space adapts easily to changing needs.
And let’s be real—being able to work from home comfortably is more important than ever.
Adding smart home technology in this study could transform it into a fully functional office, complete with the best home security system and modern conveniences. It’s another layer of practicality that makes this house plan so forward-thinking.
Walls of Glass and Vaulted Ceilings
The family room is designed to impress, with its soaring vaulted ceiling and walls of glass that frame views of the backyard.
Natural light floods the interior, making the space feel larger, brighter, and more connected to the outdoors.

This kind of detail isn’t just about looks—it’s about creating an atmosphere that buyers and appraisers love.
If you’re considering home loan pre-approval or looking at mortgage rates to buy, features like vaulted ceilings and expansive windows make this home feel worth every penny of the purchase price.
Everyday Function That Saves Time
Practical design choices are sprinkled throughout this farmhouse. The laundry room connected to the master closet, the separate pantries, the side-load garage—all of these details save time and effort in daily living.
Over the years, little conveniences like these add up.
They reduce the need for costly remodeling, protect the home’s property value, and make the investment feel more secure.
And if you ever decide to use interior design software to plan upgrades, you’ll find that this layout is already set up for long-term success.
A Farmhouse Built for the Future
This house plan doesn’t just give you a place to live now—it prepares you for years to come.
With bonus space for future expansion, outdoor living for year-round enjoyment, and a design that appeals to multiple lifestyles, it’s an investment in both comfort and property value.
From a financial perspective, it’s the kind of house that works with you.

Whether you’re monitoring mortgage rates, considering a refinance mortgage, or thinking ahead about a home equity loan, this farmhouse gives you confidence in your purchase.
Pair it with the right home insurance, maybe a home warranty for peace of mind, and even some smart home technology, and you’ve got a package that’s as future-proof as it gets.
At 2,470 heated sq. ft., with 3 bedrooms, 2.5 baths, and a flexible bonus room, this plan is the definition of balanced design.
It blends farmhouse charm with modern practicality—vaulted ceilings, multiple porches, a side-entry garage, and details that make everyday living easier.
Whether you’re buying this home as your forever house or as an investment for the future, it’s the kind of purchase that pays off in more ways than one.
And honestly, that’s the beauty of this modern farmhouse—it doesn’t just give you a house.
It gives you a lifestyle, a smart investment, and a place that feels like home the moment you walk in.
Designing your dream home? Make sure your financial and tech plans are just as solid as your layout. Review current mortgage rates, talk to a real estate agent, and stay on top of your credit score.
Don’t forget essentials like home insurance, warranty coverage, and future refinance options.
Boost your property value with additions like solar panels, smart home features, and energy-efficient appliances.
And when it’s time to visualize it all, let interior design software be your guide.








