1-Story 4-Bedroom New American Craftsman Home With Finished Basement and Wet Bar (Floor Plan)

Specifications:
- 2,188 Sq Ft
- 2 – 4 Beds
- 2.5 – 4.5 Baths
- 1 Stories
- 3 Cars
Ah, there’s nothing quite like stepping foot into a brand-new home for the first time, especially when it’s a 2,188 Sq Ft slice of paradise like this New American Craftsman.
It’s not just about the numbers, folks!
This architectural marvel brings much more than just ‘room to move’ to the table.
Now, let’s put on our imaginary hardhats and take a guided tour of this beauty!



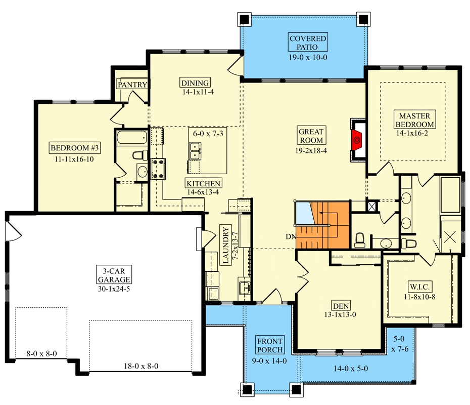
You know you’re in for a treat when even the entrance to your home is a conversation starter.
This isn’t just a doorway, this is a barrel-arched entry that seems to whisper, “Welcome, your majesty,” as you step through it.

Moving past the front porch, you’re immediately embraced by the inviting atmosphere of the open-concept living space.

Picture this: your loved ones gathered around, enjoying each other’s company, laughter echoing through the house, while the serene rearward views provide the perfect backdrop to your familial tableau.

And for those who cherish their outdoor living as much as their indoor, there’s a 10′-deep covered patio waiting for you.
TIP: As you plan your dream home, don’t overlook essentials like comparing mortgage rates, securing home insurance, and checking your credit score. Smart tools like interior design software can help you visualize the layout, while upgrades like solar panels, smart home systems, and energy-efficient appliances can boost both comfort and property value.
Think of all the barbecues, sunset toasts, or simply cozy afternoon reads that could happen there!

But wait, there’s more!
The kitchen.
Ah, the kitchen.
Calling all chefs, cooking enthusiasts, and even toast burners like me, this space will bring out your inner Gordon Ramsay (hopefully, minus the expletives).

The roomy kitchen boasts an oversized island that dreams are made of and a walk-in pantry big enough to potentially house your entire supermarket shopping spree.
This kitchen isn’t just a kitchen, it’s a statement!

Adjacent to the foyer, the quiet den is an entertainment haven.
It’s a sacred place where you can Netflix and chill, engage in epic gaming battles, or enjoy a casual TV dinner.
If you listen closely, you can almost hear the faint whispers of your favorite shows calling out to you.

As for the sleeping quarters, well, they’re something special.
The master bedroom claims its own royal territory on the right side of the main level.
Here, the world outside ceases to exist—it’s just you, your dreams, and possibly a snoring partner.
Across the domain, behind the three-car garage (that’s right, three cars!), there’s another bedroom waiting to wrap you in comfort.

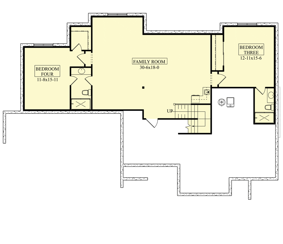
Now, let’s talk about the pièce de résistance—the finished basement.
This is not your average, spider-web-infested, forgotten part of the house.
Nope, it’s a space that adds the ‘extra’ to ‘extraordinary.’
This level hosts two sizable bedrooms that sit like sentinels on either side of the family room.
This communal hub comes equipped with a wet bar (yes, happy hour at home just got real), and a cold storage to keep those celebratory beverages at the perfect chill.

So, folks, that’s the grand tour of this New American Craftsman with a Finished Basement.
It’s not just about the 2, 3, or 4 bedrooms or the half a dozen bathrooms—it’s about a lifestyle, a home that oozes comfort, space, and style.
And while this tour is imaginary, the joy of living in such a house is very, very real.
So, who’s ready to move in?
I’ve got my bags packed already!
Designing your dream home? Make sure your financial and tech plans are just as solid as your layout. Review current mortgage rates, talk to a real estate agent, and stay on top of your credit score.
Don’t forget essentials like home insurance, warranty coverage, and future refinance options.
Boost your property value with additions like solar panels, smart home features, and energy-efficient appliances.
And when it’s time to visualize it all, let interior design software be your guide.








